| ID # | RLS20057649 |
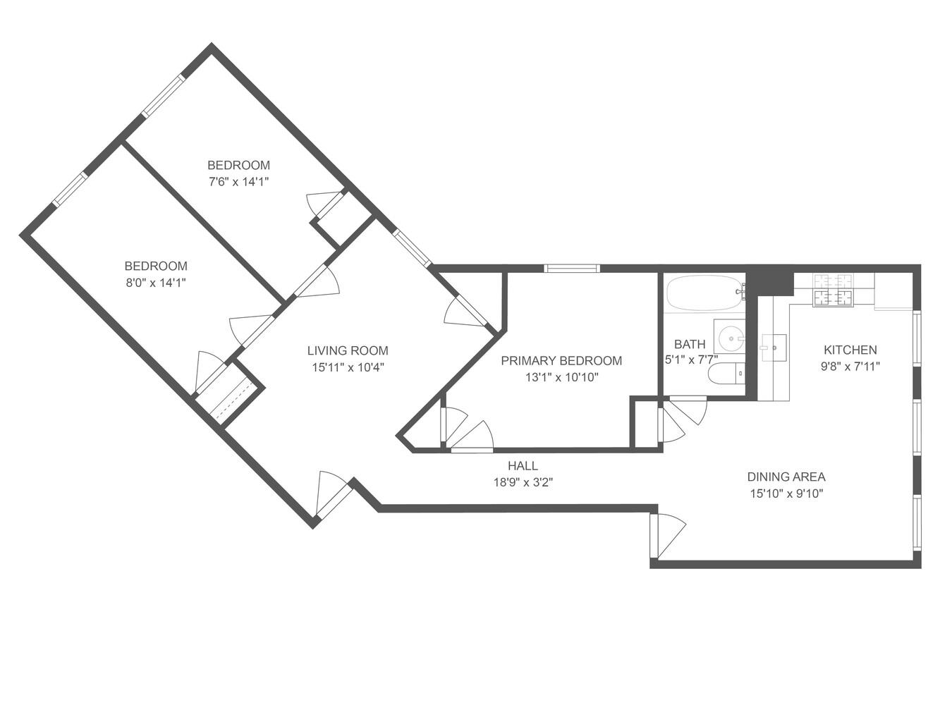
| 物件の詳細 | 3 寝室, 1 バスルーム, 内装: 1100 ft2, 102m2 (DOM): 1 days |
| 建築年 | 1931 |
| バス | 1 分: B43, B46 |
| 2 分: B57 | |
| 4 分: B15, B47 | |
| 5 分: B48 | |
| 7 分: B60 | |
| 8 分: B54 | |
| 地下鉄 | 4 分: J, M |
| 7 分: G | |
| 9 分: L | |
| LIRR | 1.7 マイル: "Nostrand Avenue" |
| 2.1 マイル: "Atlantic Terminal" | |
![]() |
この広々とした新しく改装された3ベッドルームの住居は、2つのリビングエリアと明るいクイーンサイズのベッドルームを備え、非常に広い居住スペースを提供します。天井が高く、硬木の床、自然光が豊富に入り、家は開放的で風通しが良く、居心地の良い印象を与えます。現代的な窓のあるキッチンはガスコンロを完備し、リビングスペースから離れて配置されており、日常生活や簡単なエンターテイメントに最適な環境を作り出しています。
8クックストリートは、フルタイムの監督者によるサポートを受けたプロフェッショナルに管理された建物で、快適さと安心を保証します。住民はL、G、J、M電車を利用した優れた交通アクセスを楽しむことができ、近くには複数のシティバイクステーションがあり、マンハッタンまで15分未満でアクセス可能です。ドアを出ると、人気のカフェ、エクレクティックなブティック、素晴らしいダイニングスポットが揃った活気ある近隣を探検できます。
公共料金に含まれるもの:本暖房と温水
入居者が支払うもの:電気、ガス、ケーブル/インターネット
追加の詳細:申請者一人あたり20ドルの申請料。契約署名時に最初の月の家賃と1ヶ月分の保証金が必要です。
This expansive, newly renovated three-bedroom residence offers an exceptional amount of living space, featuring two full living areas and bright, queen-sized bedrooms. With soaring ceilings, hardwood floors, and an abundance of natural light, the home feels open, airy, and inviting. The modern, windowed kitchen-complete with a gas stove-is thoughtfully set apart from the living spaces, creating an ideal setting for both everyday living and effortless entertaining.
8 Cook Street is a professionally managed building with the support of a full-time superintendent, ensuring comfort and peace of mind. Residents enjoy excellent access to transportation via the L, G, J, and M trains, along with multiple Citi Bike stations nearby-placing Manhattan less than 15 minutes away. Just outside your door, explore a vibrant neighborhood filled with beloved cafes, eclectic boutiques, and standout dining destinations.
Utilities included: Heat and hot water
Tenant pays: Electricity, gas, cable/internet
Additional details: $20 application fee per applicant. First month's rent and one month's security deposit due at lease signing.
This information is not verified for authenticity or accuracy and is not guaranteed and may not reflect all real estate activity in the market. ©2025 The Real Estate Board of New York, Inc., All rights reserved.







