| ID # | RLS20057636 |
| 物件の詳細 | 3 寝室, 3 バスルーム, 1 ハーフバス, ガレージ, 内装: 2236 ft2, 208m2 (DOM): 6 days |
| 建築年 | 2007 |
| 管理費 | $3,519 |
| 税金(年間) | $39,456 |
| 地下鉄 | 8 分: 1 |
| 9 分: A, B, C, D | |
![]() |
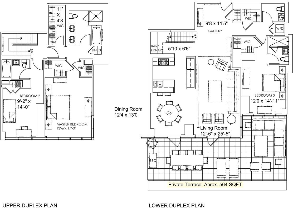
驚くべきミントコンディションのタウンハウススタイルのデュプレックスは、ラグジュアリーコンドミニアムタワーのアメニティ内に豪華に位置しています。南向きの大きなテラスは必見です!この非常に明るい南向きのタウンハウスは、2,235平方フィートの広さを持ち、3つのベッドルーム、3つのフルバスルーム、そしてパウダールームが完備されています。天井は最大10フィートの高さで、ウォールナットのハードウッドフロアが一面に敷かれており、この家では美しい体験が丁寧にデザインされています。プライベートテラスに面した床から天井までの窓があり、テラスの広さは564平方フィート、サウンドシステムを備えていますので、友人を招いてのエンターテインメントや、居住空間でのリラックスに最適です。
タウンハウス-3Cは素晴らしい状態に保たれており、最近イタリア製の新しいキッチンが追加されました。このトリプルミントキッチンは、カスタムポリッシュニッケルハードウェア、ロイヤルダンビーの大理石カウンタートップ、デュアル温度のワインクーラー、食器洗い機、30インチのオーブン、36インチのバーナー、36インチの冷蔵庫、コンビコンベクション、電子レンジが備わった最先端のガゲナウの家電製品で構成されています。フレンチライムストーンのマスターバスルームにはズーマのバスタブ、ドルンブラヒトの器具とアクセサリー、レインシャワー、そしてスペインから輸入された大理石のカウンタートップを備えたウォールナット製のカスタムダブルバニティがあります。マスタースイートには3つの大きなカスタムクローゼットと床から天井までの窓があります。さらに、住宅には最近のボッシュAxxis Plusの洗濯機/乾燥機が備えられています。すべてのベッドルームにはカスタムの遮光シェードがあります。この精緻に装飾された家は、家全体にカスタム照明が施されており、見逃せません。家の一部の設備や家具は販売もされています。
24時間体制のドアマン/コンシェルジュ、自転車保管、モーターコートの入口、付き添いのパーキングガレージ、年間を通じて天井が明るい55フィート長のラッププール、ジャグジー、子供用プール、マッサージおよびトリートメントルーム、サウナ、すべての最新の設備を備えた庭に面したフィットネスクラブ(ペロトンバイク、ヨガルーム、屋内バスケットボールコート、プロレベルのスカッシュコート、子供のプレイルーム)、バーカウンター、ビリヤードテーブル、そして友人や家族を楽しませるためのケータリングキッチンを備えた住人ラウンジを完備した、完全なサービスが行き届いたさりげない管理のラグジュアリーコンドミニアムビルをお楽しみください。12,000平方フィートを超える広大なプライベートランドスケープされた屋外スペースには、広い芝生、サンデッキ、中庭、そして屋外遊び場が含まれています。
Stunning mint condition townhouse-style duplex glamorously set within the amenities of a luxury condominium tower. Large south facing terrace is a must see! This extremely bright south facing townhouse spans 2,235 SqFt is complete with 3 bedrooms, 3 full bathrooms and a powder room. Featuring ceilings with up to ten feet in height and Walnut hardwood floors throughout, a beautiful experience has been thoughtfully crafted in this home. Floor to ceiling windows overlooking your private terrace which has 564 SQFT with sound system making it conducive for entertaining or relaxing in the comfort of your residence.
Townhouse-3C has been superbly maintained and recently added a new kitchen custom made in Italy. This triple mint kitchen is complete with, custom polished nickel hardware, Royal Danby marble countertops, top of the line Gaggenau appliances throughout including a dual-temperature wine cooler, dishwasher, 30" oven, 36" burner, 36" refrigerator, Combi convection, and microwave oven. The French limestone master bathroom contains a Zuma soaking tub, Dornbracht fixtures and accessories, rain shower and a custom double vanity made in walnut with a marble countertop imported from Spain. The Master suite has three large custom closets and floor to ceiling windows. Additionally, the residence features a resent Bosch Axxis Plus washer/dryer. Every bedroom has custom blackout shades. This finely appointed home has custom lighting throughout and is not to be missed. Some of the appointments and furnishing of the home are also available for sale.
Enjoy a full service impeccably managed luxury condominium building complete with a 24-hour doorman/concierge, bicycle storage, motor court entrance and attended parking garage, sky lit year round 55 foot long lap pool, whirlpool, kiddie pool, massage and treatment room, sauna, garden facing fitness club with all the latest equipment including Peloton bikes, yoga room, indoor basketball court and professional level squash court, kid's playroom and a residents' lounge equipped with a bar, billiards table and catering kitchen to entertain friends and family. Step outside into a massive private landscaped outdoor space sprawling over 12,000 SQFT including a great lawn, sundeck, a courtyard, and outdoor playground.
This information is not verified for authenticity or accuracy and is not guaranteed and may not reflect all real estate activity in the market. ©2025 The Real Estate Board of New York, Inc., All rights reserved.







