| ID # | RLS20057633 |
| 物件の詳細 | 1 寝室, 1 バスルーム (DOM): 1 days |
| 建築年 | 1955 |
| 管理費 | $2,344 |
| 地下鉄 | 6 分: 7 |
| 7 分: 4, 5, 6 | |
| 10 分: S | |
![]() |
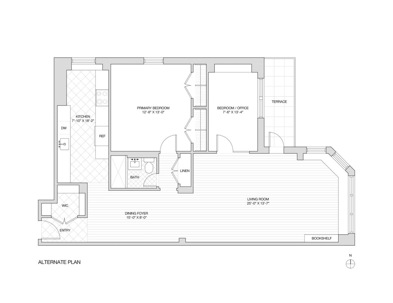
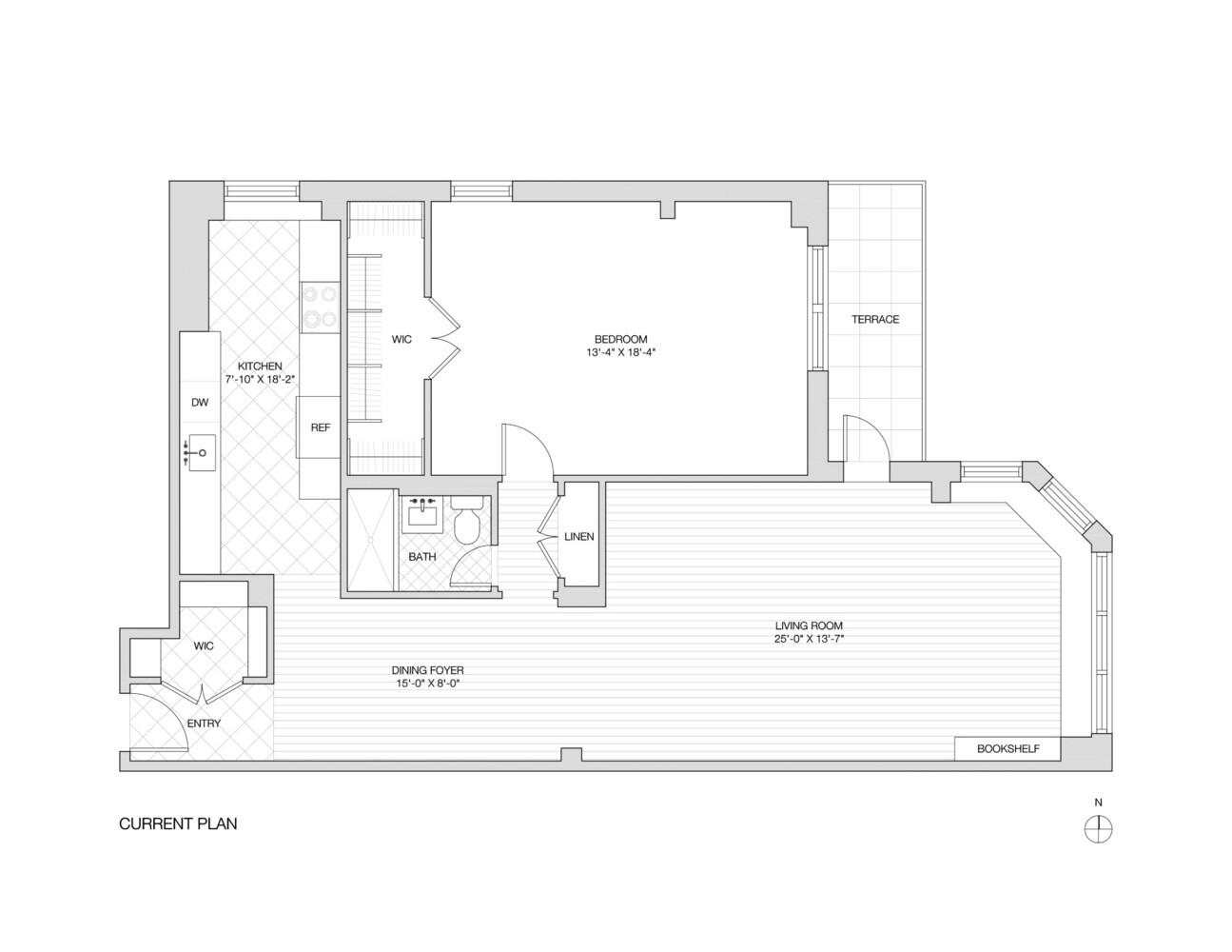
アパートメント14BSへようこそ - チューダーシティ上空のあなたのプライベートオアシス!
街の高台に位置するこの特別な住まいは、イーストリバーと象徴的なチューダーシティ歴史地区の sweeping views を提供し、あなた自身のテラスからその全貌を楽しむことができます。
入ると、広々とした foyer があり、十分な収納を提供する大型のウォークインクローゼットがあり、正式なダイニングエリアへと導かれます。アップデートされたキッチンには、カスタムキャビネット、グラナイトカウンタートップ、フルサイズの家電、そして朝のコーヒーを楽しんだり、一日の疲れを癒したりするのに最適なスナックバーがあります。
リビングルームは本当に家の中心です - 息をのむような川と街の景色に囲まれた魅力的なスペースで、リラックスしたりスタイリッシュにエンターテインメントを楽しんだりするのに理想的です。さらに、追加の収納ニーズに応えるために、ビルトインキャビネットや本棚も完備されています。
広々とした主寝室は、東と北の開口部からの自然光に満ち、大型のウォークインクローゼットにはカスタムビルトインが付いています。
改装された大理石のバスルームは、スパスタイルのシャワーとモダンな仕上げが自慢です。
朝のコーヒーを楽しんだり、屋外でのディナーを堪能したり、好きな本を持って日光浴を楽しむために、プライベートテラスに出てみてください。
このような機会はまれです。チューダーシティの最も羨ましい景色のひとつを楽しみながら、マンハッタン生活の最高を体験してください。
月々のメンテナンス費用は$2,344.13で、すべての公共料金が含まれています。2027年2月まで毎月$201.39の評価額があります。
2 Tudor City Placeは、24時間体制のドアマン、居住者マネージャー、中央ランドリー、居住者用ストレージルーム、自転車ストレージ、ロビーへの直通アクセスを持つ駐車場を備えたフルサービスの協同組合です。通り向かいにはフィットネスセンターがあり、居住者には割引会員資格が提供されています。
静かな樹木に囲まれた cul-de-sac に位置するランドマークのチューダーシティ地区では、2つの美しく手入れされた公園、遊び場、趣のある地域のショップがあり、グランドセントラル、国連、高級ダイニング、ショッピングに近接しています。建物はピエダテール、ギフティング、共同購入、最大70%の融資を許可しています。建物の土地リースは2150年まで延長されています。この家はバーチャルに家具が配置されたことをご了承ください。
Welcome to Apartment 14BS - Your Private Oasis in the sky above Tudor City!
Perched high above the city, this exceptional home offers sweeping views of the East River and the iconic Tudor City Historic District - all from your very own terrace.
Upon entering, a spacious foyer with a generous walk-in closet, providing abundant year-round storage, leads you to a formal dining area. The updated kitchen features custom cabinetry, granite countertops, full-sized appliances and a breakfast bar - the perfect spot to enjoy your morning coffee or unwind after a long day.
The living room is truly the heart of the home - an inviting space framed by breathtaking river and city views, ideal for relaxing or entertaining in style. The space also features built-in cabinetry and bookshelves to cater to your additional storage needs.
The expansive primary bedroom is bathed in natural light from its eastern and northern and exposures and includes a massive walk-in closet with custom built-ins.
The renovated marble bathroom boasts a spa-style shower and modern finishes.
Step outside to your private terrace to savor morning coffee, al fresco dinners, or simply bask in the sun with your favorite book.
Opportunities like this are rare. Experience the best of Manhattan living with one of Tudor City's most enviable views and your very own private outdoor escape!
The low monthly maintenance of $2,344.13 includes all utilities. There is a monthly assessment of $201.39 in place until February 2027.
2 Tudor City Place is a full-service cooperative with a 24-hour doorman, resident manager, central laundry, resident storage rooms, bike storage, and a parking garage with direct access to the Lobby. A fitness center located across the street is available to residents for discounted membership.
Located on a quiet, tree-lined cul-de-sac, the Landmarked Tudor City district offers two beautifully manicured parks, playgrounds and quaint neighborhood shops all within close proximity to Grand Central, the United Nations, fine dining, and shopping. The building permits Pied-a-terres, gifting, co-purchasing, and up to 70% financing. The building's land lease has been extended to 2150. Please note that this home has been virtually furnished.
This information is not verified for authenticity or accuracy and is not guaranteed and may not reflect all real estate activity in the market. ©2025 The Real Estate Board of New York, Inc., All rights reserved.







