| MLS # | 931034 |
| 物件の詳細 | 4 寝室, 4 バスルーム, 1 ハーフバス, 食器洗い機, 洗濯機, 乾燥機, ガレージ, エアコン, 外装: 0.39 エーカー, 内装: 4433 ft2, 412m2 (DOM): 1 days |
| 建築年 | 2025 |
| 税金(年間) | $2,322 |
| 燃料の種類 | 天然ガス Gas |
| 暖房タイプ | 温風 Hot air |
| エアコン | セントラルエアコン Central Air |
| LIRR | 0.7 マイル: "Greenvale" |
| 0.9 マイル: "Glen Head" | |
![]() |
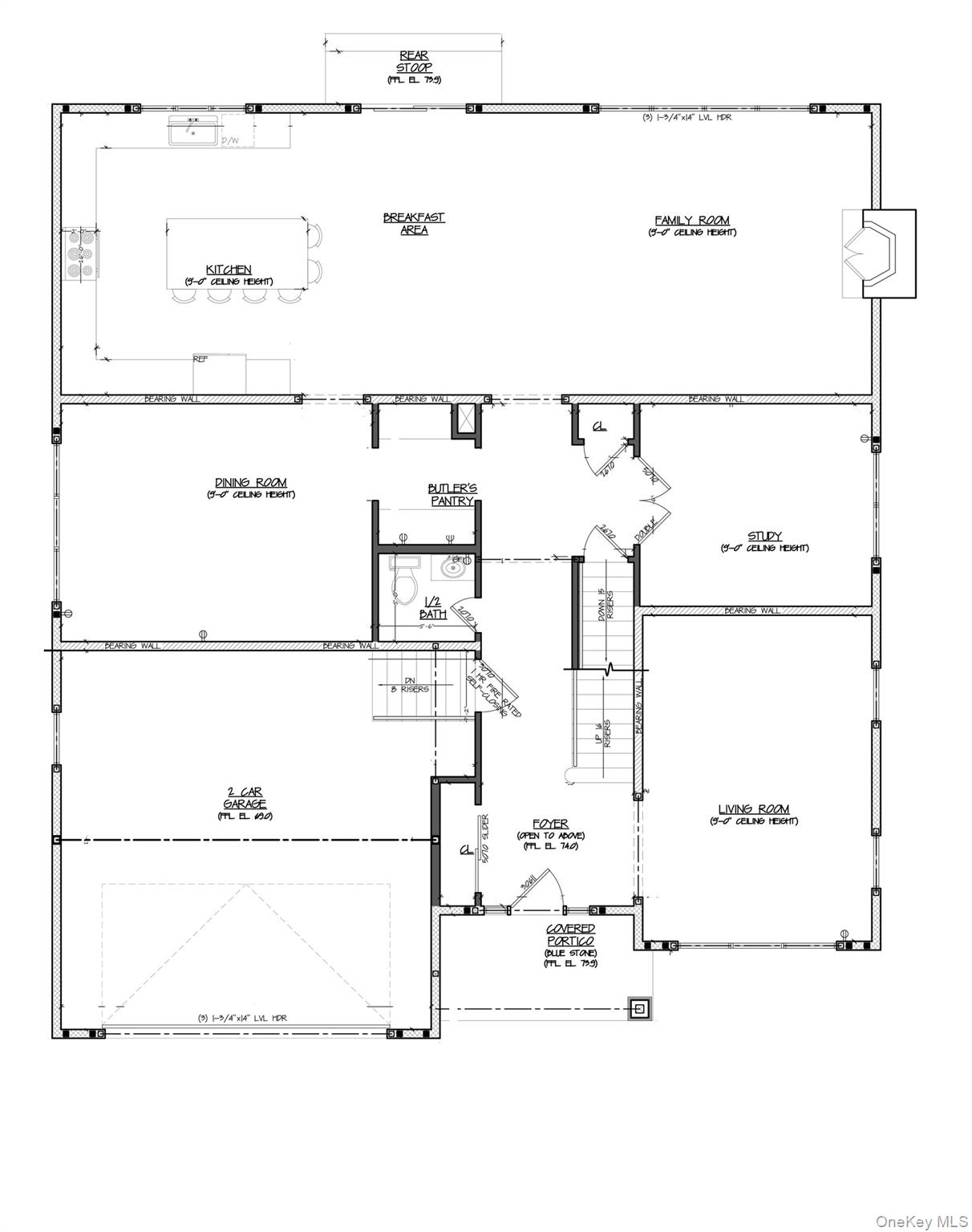
洗練さと現代的な快適さが完璧に融合したこの驚くべき新築モダンファームハウスコロニアルは、エンジニアズゴルフコースに隣接する排他的な通りに位置しています。息を呑むようなゴルフコースの景色を誇るこの丁寧にデザインされた家は、4つの広々としたベッドルームを提供し、それぞれに専用バスルームが完備されており、すべての人にプライバシーと便利さを提供します。豪華なプライマリースイートは、大きなウォークインシャワー、浴槽、デュアル洗面台、広いウォークインクローゼットを備えたスパのような隠れ家を特徴としています。エンターテインメントを容易にするために設計されたオープンコンセプトのレイアウトは、シェフのキッチン、朝食エリア、コージーな暖炉のあるファミリールームをシームレスに結びつけています。キッチンは、広いアイランド、最上級の家電製品、カルチャーストーンのカウンタートップを備えた料理の傑作です。1階の主な特徴には、全体にオークフロア、フォーマルダイニングルーム、バトラーパントリー、リビングルーム、スタディ、パウダールーム、2台用ガレージが含まれます。外に出ると、専門的に造園された庭に設けられた地面と同じ高さの裏のパティオがあり、屋外の集まりに最適です。上の階には、さらに便利な2階のランドリールームがあります。家は1階が9フィート、2階が8フィートの天井を誇り、開放感と明るさを高めています。9フィートの天井の未完成の地下室は、カスタマイズの無限の可能性を提供します。比類のない景色と一流の立地を誇るこの優れた新築住宅で、最高の贅沢な生活を体験してください。現在の税金は土地の評価のみを反映しています。
Discover the perfect blend of elegance and modern comfort in this stunning new construction Modern Farmhouse Colonial situated on an exclusive street adjacent to Engineer’s Golf Course. Boasting breathtaking golf course views, this meticulously designed home offers 4 spacious bedrooms, each with its own en-suite bathroom, ensuring privacy and convenience for all. The luxurious primary suite features a spa-like retreat with a large walk-in shower, soaking tub, dual vanities, and large walk-in closets. Designed for effortless entertaining, the open-concept layout seamlessly connects the chef’s kitchen, breakfast area, and family room with a cozy fireplace. The kitchen is a culinary masterpiece, complete with a large island, top-of-the-line appliances, and cultured stone countertops. Additional main-level highlights include oak floors throughout, a formal dining room, butler’s pantry, living room, study, powder room and a two-car garage. Step outside to the on-grade rear patio, set within a professionally landscaped yard, perfect for outdoor gatherings. Upstairs, you’ll find a second-floor laundry room for added convenience. The home boasts 9-foot ceilings on the first floor and 8-foot ceilings on the second, enhancing the sense of space and light. The unfinished basement with 9-foot ceilings offers endless potential for customization. Experience luxury living at its finest in this exceptional new construction home with unrivaled views and a premier location. Existing taxes reflect land evaluation only. © 2025 OneKey™ MLS, LLC







