| MLS # | 931033 |
| 物件の詳細 | 4 寝室, 4 バスルーム, 1 ハーフバス, 食器洗い機, 洗濯機, 乾燥機, ガレージ, エアコン, 外装: 0.41 エーカー, 内装: 4365 ft2, 406m2 (DOM): 151 days |
| 建築年 | 2025 |
| 税金(年間) | $2,322 |
| 燃料の種類 | 天然ガス Gas |
| 暖房タイプ | 温風 Hot air |
| エアコン | セントラルエアコン Central Air |
| LIRR | 0.7 マイル: "Greenvale" |
| 0.9 マイル: "Glen Head" | |
![]() |
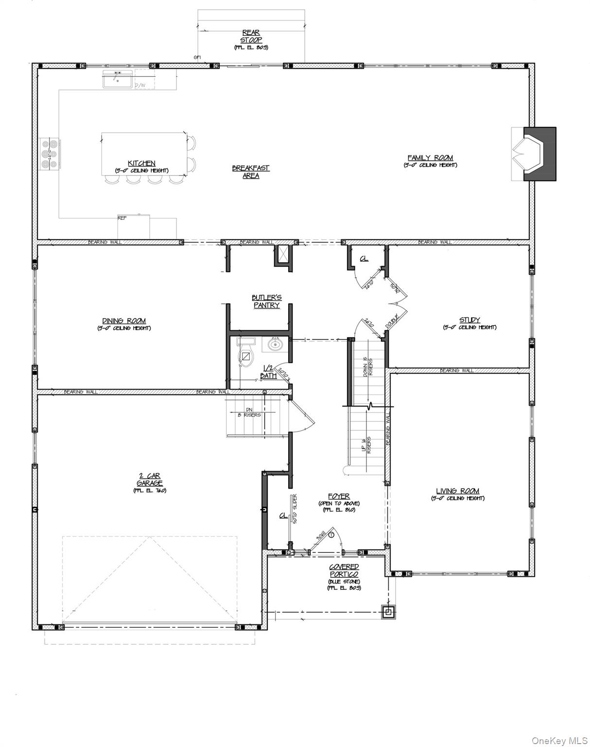
エレガンスと現代的な快適さが完璧に融合したこの驚くべき新築モダンファームハウスコロニアルは、エンジニアズゴルフコースに隣接する独占的な通りに位置しています。息をのむようなゴルフコースの景色を誇るこの慎重にデザインされた家は、4つの広々とした寝室を備えており、それぞれに専用バスルームが付いているため、皆にプライバシーと利便性を提供しています。豪華な主寝室には、大きなウォークインシャワー、浴槽、デュアル洗面台、大きなウォークインクローゼットを備えたスパのような隠れ家があります。楽々としたエンターテインメントのために設計されたオープンコンセプトのレイアウトは、シェフのキッチン、朝食エリア、居間と快適な暖炉をシームレスに接続しています。キッチンは、広い島、最高級の家電、培養石のカウンタートップを備えた料理の傑作です。1階の追加のハイライトには、オークの床が全体に施され、フォーマルダイニングルーム、バターパントリー、リビングルーム、書斎、トイレ、2台用ガレージが含まれています。プロの手による造園された庭の中に設けられた地面と同じ高さの裏庭のパティオへと外に出ます。上階には便利な2階のランドリールームがあります。この家は1階に9フィートの天井、2階に8フィートの天井を持ち、広がりと明るさを感じさせます。9フィートの天井を持つ未完成の地下室は、カスタマイズの無限の可能性を提供します。この比類のない景色と一流の場所に位置する優れた新築住宅で、最高の贅沢な生活を体験してください。現存の税金は土地の評価のみを反映しています。
Discover the perfect blend of elegance and modern comfort in this stunning new construction Modern Farmhouse Colonial situated on an exclusive street adjacent to Engineer’s Golf Course. Boasting breathtaking golf course views, this meticulously designed home offers 4 spacious bedrooms, each with its own en-suite bathroom, ensuring privacy and convenience for all. The luxurious primary suite features a spa-like retreat with a large walk-in shower, soaking tub, dual vanities, and large walk-in closets. Designed for effortless entertaining, the open-concept layout seamlessly connects the chef’s kitchen, breakfast area, and family room with a cozy fireplace. The kitchen is a culinary masterpiece, complete with a large island, top-of-the-line appliances, and cultured stone countertops. Additional main-level highlights include oak floors throughout, a formal dining room, butler’s pantry, living room, study, powder room and a two-car garage. Step outside to the on-grade rear patio, set within a professionally landscaped yard, perfect for outdoor gatherings. Upstairs, you’ll find a second-floor laundry room for added convenience. The home boasts 9-foot ceilings on the first floor and 8-foot ceilings on the second, enhancing the sense of space and light. The unfinished basement with 9-foot ceilings offers endless potential for customization. Experience luxury living at its finest in this exceptional new construction home with unrivaled views and a premier location. Existing taxes reflect land evaluation only.
This information is not verified for authenticity or accuracy and is not guaranteed and may not reflect all real estate activity in the market. Listing courtesy of Marc B Underberg © 2026







