| ID # | 950185 |
| 物件の詳細 | 1 寝室, 1 バスルーム, エアコン, 内装: 705 ft2, 65m2 (DOM): 23 days |
| 建築年 | 1963 |
| 管理費 | $1,162 |
| 暖房タイプ | 床/壁暖房 Radiant (Floor/Wall) |
| エアコン | 壁掛けエアコン Wall Unit AC |
![]() |
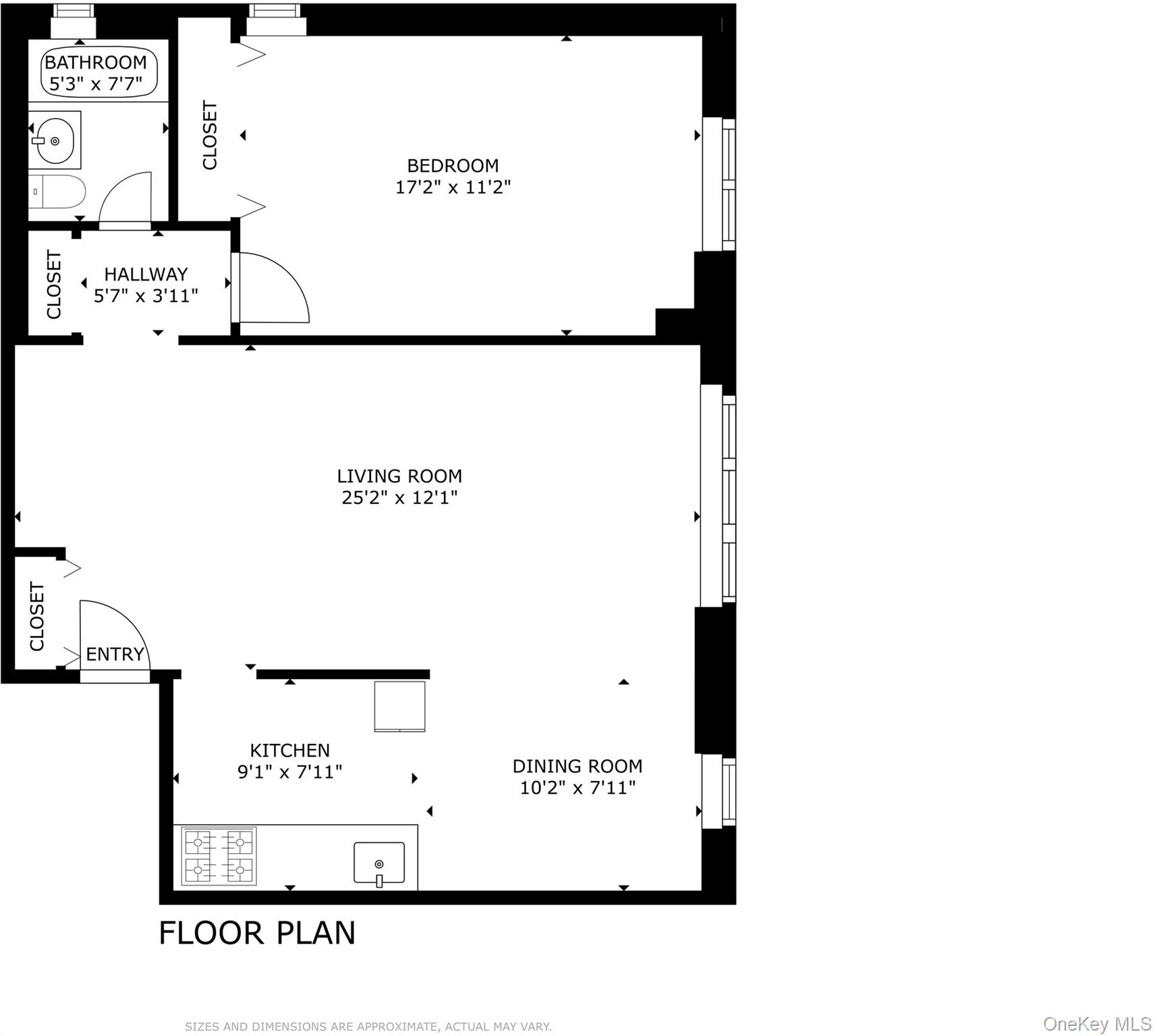
5730 Mosholu Avenue, Unit 5Fへようこそ!この魅力的な1ベッドルームのコープは、魅力的なノースリバーデール近隣にあり、整備の行き届いた戦後の低層ビルの5階に位置する快適な都市の隠れ家です。南向きの窓がある明るい空間に足を踏み入れると、部屋は自然光にあふれ、ユニット全体に広がる豊かなハードウッドフロアが引き立ちます。招かれるようなL字型のリビングエリアは、ダイニングにぴったりなスペースを提供し、別のキッチンと隣接して快適さとスペースの調和を創り出しています。寝室は広々としており、クイーンサイズまたはキングサイズのベッドとさらなる家具を楽に収容できます。ペデスタルシンクとバスタブがある完全に機能する窓付きのバスルームもお楽しみください。大きなクローゼットが3つ、この広々としたユニットを完成させています。
このペットフレンドリーなビルには便利なエレベーター、居住者用スーパー、ガレージ駐車場(待機リストあり)があります。ノースリバーデールの静かでありながら活気のあるコミュニティは、多くの便利さとレクリエーションを提供しています。あなたは、屋外アクティビティや美しい風景で知られるヴァンコートランドパークの広大な空間から数分の距離にいます。通勤者のために、#1トレインや地元のバス、急行バスがニューヨーク市の中心部への簡単な交通手段を提供しています。Beccofino、Frida's Tacos、Emiliano'sなどの近くのダイニング体験を楽しんだり、さまざまなショップであなたのすべてのニーズに応えたりできます。また、ホレースマンや他の私立大学も近くにあります。この素敵なスペースをあなた自身のものにする機会をお見逃しなく。内見を予約し、5730 Mosholu Avenueで待っている特別なライフスタイルを発見してください!
Read the English version or choose another language







