| ID # | RLS20080056 |
| 物件の詳細 | 2 寝室, 2 バスルーム, ガレージ, 内装: 1000 ft2, 93m2 (DOM): 4 days |
| 建築年 | 2004 |
| バス | 2 分: B67, B69 |
| 3 分: B63 | |
| 6 分: B61 | |
| 10 分: B68 | |
| 地下鉄 | 7 分: R |
| 10 分: F, G | |
| LIRR | 1.7 マイル: "Atlantic Terminal" |
| 2.4 マイル: "Nostrand Avenue" | |
![]() |
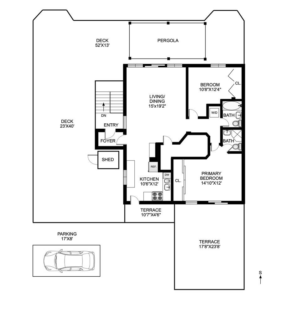
真のペントハウスで、850平方フィート以上のプライベートスペースを持ち、パークスロープサウス/グリーンウッドハイツにある5階建てのブティックコンドミニアムの最上階に位置しています。魅力的な日差しが差し込む1000平方フィートの2ベッド2バスのアパートメントは、広々としたオープンなリビング/ダイニングエリアを特徴としており、ガラスのドアが大きな東南向きのプライベートルーフデッキへとつながっています。そこにはパーゴラがあり、素晴らしい港の景色を楽しめます。デザイナーによる設備の整ったシェフのキッチンは、自宅での食事を楽しむための隠れ家です。特に、きらめく港の灯りやパノラマの赤とオレンジのサンセットをバックにデッキでサーブされると、一層魅力的です。5階には唯一のアパートメントであり、他のユニットとの接する壁がないという特別な特徴があります。これはNYCでは珍しいことです。プライバシーをさらに高めるために、所有者は建設中にペントハウスと下のアパートメントの間に追加の防音材を取り付けました。マスターベッドルームには専用バスがあり、大きなクローゼットとスカイラインビューの広々としたデッキがあります。かなりの広さのセカンドベッドルームは、素晴らしい光を取り入れ、中央のマスターバスルームの近くに位置しています。高い天井、ハードウッドフロア、全体にエアコンが完備され、フルサイズの洗濯機と乾燥機もあります。この優れた住居スペースを完成させるのは、以前の居住者がとうもろこしを育てていたという広大なルーフガーデンで、現在はプランターで飾られています。近隣には歴史的なグリーンウッド墓地と壮大なプロスペクトパークという、世界でも最高のビクトリア朝のオアシスがあります。5丁目、6丁目、7丁目には、流行のレストラン、コーヒーバー、ブリューパブ、魅力的な商品を提供するショップやブティックが常に進化しています。これがブルックリン生活の最高の形です。建物内にプライベート指定駐車場が含まれています……保証人の入居も歓迎……申し訳ありませんが、ペットは不可です。
A true penthouse with 850+sq ft of private space set atop a five-story boutique thirteen-unit condo with a parking garage in Park Slope South/Greenwood Heights. This stunning sun-filled 1,000 sf two bed two bath apartment features a grand, open living/dining area with glass doors leading onto a large ESW-facing private roof deck with pergola, providing outstanding harbor views. The designer, well-appointed chef's kitchen makes eating-in a pleasure. Especially when served on the deck with a backdrop of twinkling harbor lights or a panoramic red & orange sunset. As the only apartment on the 5th floor, it has the distinction of having no adjoining walls with other units, a rarity in NYC. Enhancing the privacy even more, the owners had extra sound proofing installed between the PH and the apartment below during its construction. The master bedroom has an ensuite bath, large closets & its own spacious deck with skyline views. The substantial second bed features great light and location near the central master bath. High ceilings, hardwood floors, AC throughout and there's also a full-sized washer & dryer. Completing this exceptional dwelling space is a grand roof garden that prior tenants have used to even grown corn! It's now adorned with planters. The neighborhood borders glorious, historic Greenwood Cemetery and spectacular Prospect Park, two of the greatest Victorian oases in the world. 5th, 6th, and 7th Avenues provide an ever-evolving choice of hip restaurants, coffee bars, brew pubs as well as shops and boutiques offering goods edible and incredible. This is Brooklyn living at its best. PRIVATE DESIGNATED PARKING IN BLDG INCLUDED .......GARANTORS WELCOME.......... SORRY...NO PETS.
This information is not verified for authenticity or accuracy and is not guaranteed and may not reflect all real estate activity in the market. © 2026 The Real Estate Board of New York, Inc., All rights reserved.







