| ID # | RLS20080422 |
| 物件の詳細 | 2 寝室, 2 バスルーム, 洗濯機, 乾燥機, 内装: 1000 ft2, 93m2 (DOM): 0 days |
| 建築年 | 1931 |
| 管理費 | $250 |
| 税金(年間) | $2,904 |
| バス | 0 分: B44 |
| 2 分: B54 | |
| 3 分: B38 | |
| 5 分: B44+ | |
| 6 分: B48 | |
| 7 分: B43 | |
| 8 分: B57 | |
| 10 分: B52 | |
| 地下鉄 | 4 分: G |
| LIRR | 1.1 マイル: "Nostrand Avenue" |
| 1.4 マイル: "Atlantic Terminal" | |
![]() |
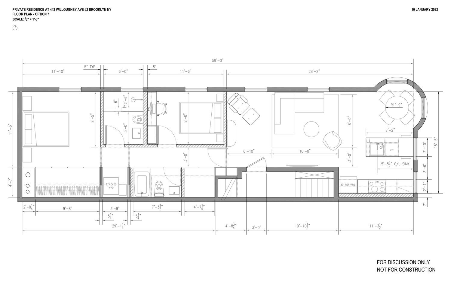
自分の仕上げを選びたいですか?解体とそれに伴う費用を経たロフトコンドミニアムを購入する珍しい機会です。床は平らに整えられ、プランが描かれて提出され、いくつかの請負業者のクレジットがあります。この美しい空間はあなたの個人的なタッチを受け入れる準備が整っています。このユニットは、かつてバス運転手組合の社交ホールであった1931年に建てられたトランジットホールという角の建物内の3つのコンドミニアムの1つです。クラシックな建築の詳細には、10フィートの天井、露出したレンガ、ベイ窓のコーナーが含まれています。このユニットは、9つの窓から流れ込む素晴らしい光を受け取ります。
型にはまったコンドミニアムに疲れて、自分のデザインをしたい方には、これがチャンスです!非常に低い共益費は月額250ドル、税金は月額242ドルです。クリントンヒル、ベッドフォード・スタイヴサント、ウィリアムズバーグの交差点に位置し、このエリアのホットスポットにはコジウスコプール、ハーバート・フォン・キングパーク、C'Mon Everybody、数多くのバー、カフェ、レストランがあります。Gトレインから数ブロックなので、他のブルックリンの地区やマンハッタンへの乗り換えも簡単です。
Want to choose your own finishes? Rare opportunity to buy a loft condo that has already gone through demolition, and the expense that goes with it. The floors have been leveled, the plans have been drawn and filed, there are a couple contractor credits, and this gorgeous space is ready for your personal touch. The unit is one of three condos in a corner building that was formerly a bus drivers union social hall called Transit Hall, built in 1931. The classic architectural details include 10' ceilings, exposed brick, and bayed corner. The unit gets great light that streams in through nine windows.
If you're tired of cookie cutter condos, and want to design your own, here's your chance! Exceptionally low common charges of $250/month and taxes of $242/month. Located at the confluence of Clinton Hill, Bed-Stuy, and Williamsburg, neighborhood hotspots include the Kosciuszko Pool, Herbert Von King Park, C'Mon Everybody, numerous bars, cafe's and restaurants. It is just a few blocks from the G train, so it's easy to get to other Brooklyn neighborhoods, and transfer to Manhattan.
This information is not verified for authenticity or accuracy and is not guaranteed and may not reflect all real estate activity in the market. © 2026 The Real Estate Board of New York, Inc., All rights reserved.







