| ID # | RLS20080368 |
| 物件の詳細 | 1 寝室, 1 バスルーム, 内装: 902 ft2, 84m2 (DOM): 210 days |
| 管理費 | $1,060 |
| バス | 1 分: B12 |
| 2 分: B41, B49 | |
| 3 分: B35 | |
| 4 分: B16 | |
| 6 分: B44+ | |
| 9 分: B43, B44, B48 | |
| 地下鉄 | 3 分: B, Q |
| 9 分: 2, 5 | |
| LIRR | 1.7 マイル: "Nostrand Avenue" |
| 2.2 マイル: "Atlantic Terminal" | |
![]() |
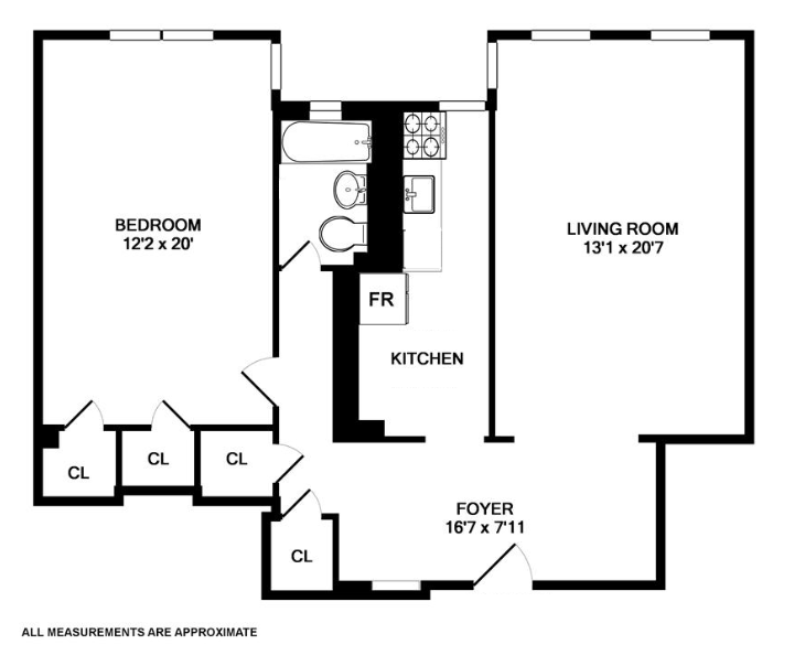
アールデコの魅力を取り入れたこの902平方フィート、南向き角部屋の1BRレジデンスを体験してください。広々としたエントリーフォイヤーは、あらゆるアクセサリーのスペースを提供し、オフィススペースとしても簡単に利用可能です。ギャラリーキッチンは広く、リビングスペースに簡単に開放できる可能性があります(別の間取り図を参照)、隣接するリビングルームは、座席とダイニングエリアに十分な広さがあります。フォイヤーからは、2つの大きなクローゼットのある廊下が巨大な寝室と窓のあるバスルームへと続いています。これほど広い1BRユニットは珍しいです!
40クラークソンアベニューは、優れた管理と活発なボードの恩恵を受けており、新しく改修されたエントランス、建築家によるデザインの裏庭エリアには庭とグリルがあり、バーチャルパッケージルーム、オートメーション化されたインターホン、新しいランドリールームと自転車ルームがあります。ペットに優しいコープには住み込みのスーパーバイザーがあり、プロスペクトパークとパークサイドQトレインから2ブロック、ウィンタロップの2/5から4ブロック、素晴らしい食事やエンターテインメントオプションから数分の便利な場所に位置しています。
Embrace the Art-Deco charm in this 902SF, South-facing corner 1BR residence. A large entry foyer provides space for any and all accoutrements, and can easily double as office space. The galley kitchen is spacious, and could easily be opened to the living space (see alternate floor plan), while the adjacent living room is large enough for seating and a dining area. Off the foyer, a hallway with two large closets leads to an enormous bedroom and a windowed bathroom. It is rare to find a 1BR unit with this much space!
40 Clarkson Avenue has benefited from exceptional management and an active board, with a newly restored entryway, an architect redesigned backyard area with garden and a grill, a virtual package room, automated intercom, new laundry room and bike room. The pet-friendly co-op has a live-in super, and is conveniently located two blocks from Prospect Park and the Parkside Q train, four blocks from the 2/5 at Winthrop and minutes from many wonderful dining and entertainment options.
This information is not verified for authenticity or accuracy and is not guaranteed and may not reflect all real estate activity in the market. © 2026 The Real Estate Board of New York, Inc., All rights reserved.







