| ID # | RLS11032322 |
| 物件の詳細 | 2 寝室, 1 バスルーム, 内装: 3200 ft2, 297m2 (DOM): 271 days |
| 建築年 | 1910 |
| 管理費 | $2,000 |
| 地下鉄 | 1 分: 6 |
| 3 分: B, D, F, M | |
| 5 分: R, W | |
| 8 分: J, Z | |
![]() |
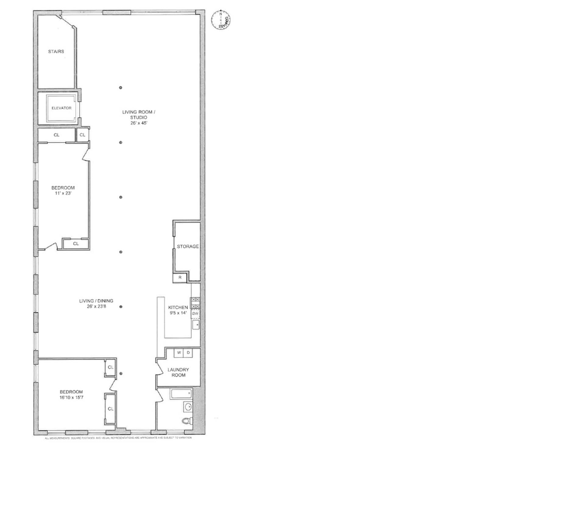
ノーホーで最も coveted なブロックに位置するこの典型的なロフトは、約3,200平方フィートの広さを誇り、15の窓に囲まれ、天井が高く開放的です。エレベーターは、北端の非常にプライベートな階に直接開き、ボンドストリートを見渡す特徴的なアーチ型の窓に沿った大きなオープンエンターテイメントスペースへと導きます。
このエリアは、大規模な集まりを楽しむための理想的な場所であり、アーティストのスタジオやパフォーマンススペースとしても機能します。
三方向に面したこの広々としたロフトは、夜明けから日没までの間、独特に太陽の光を享受します!
ロフトの最南部に移ると、より親密で日差しの差し込む広々としたリビングルーム、ダイニングエリア、オープンでありながらも独立したキッチン、コーナーに位置するメインベッドルーム、セカンドベッドルーム、大きな窓のあるバスルームがあります。
重要な実用的要素には、洗濯室、全体にわたる広々としたクローゼット、手入れが簡単な設計、地下にあるストレージが含まれます。世界的に有名なアーティストやエンターテイナーの居住がある歴史ある文化的メッカとして、35ボンドはロフト生活の本物です! コンパスとの共同専属です。
Located on Noho's most coveted blocks, this quintessential loft offers approximately 3,200-square feet, surrounded by 15 windows graced by soaring ceilings. The elevator opens to your exceptionally private floor at the northernmost section and beckons you forward into a large open entertaining space lined by distinctive arched windows overlooking Bond Street.
This area is ideal for entertaining larger gatherings, or as an artist studio/performance space.
With three exposures, this grand scaled loft uniquely benefits from sunlight from dawn to dusk!
Turning to the southernmost section of the loft, one enjoys the more intimate (and sun kissed) generous sized living room, dining area, an open but separate kitchen, a corner primary bedroom, a second bedroom, and a large windowed bathroom.
Important practical elements include a laundry room, generous closets throughout, a fabulously low maintenance, and storage in the basement. A chic cultural mecca par excellence, with a storied history of world renowned artists and entertainers in residence through the years, 35 Bond is the real deal in loft living! Co-exclusive with Compass.
This information is not verified for authenticity or accuracy and is not guaranteed and may not reflect all real estate activity in the market. ©2025 The Real Estate Board of New York, Inc., All rights reserved.







