| ID # | RLS20010548 |
| 物件の詳細 | 5 寝室, 3 バスルーム, 2 ハーフバス, 洗濯機, 乾燥機, ガレージ, 内装: 3300 ft2, 307m2 |
| 税金(年間) | $11,196 |
| バス | 0 分: B52 |
| 1 分: B48 | |
| 2 分: B38 | |
| 6 分: B26, B44, B44+ | |
| 7 分: B25 | |
| 9 分: B54, B69 | |
| 10 分: B45, B49 | |
| 地下鉄 | 2 分: G |
| 8 分: C | |
| 10 分: S | |
| LIRR | 0.9 マイル: "Atlantic Terminal" |
| 0.9 マイル: "Nostrand Avenue" | |
![]() |
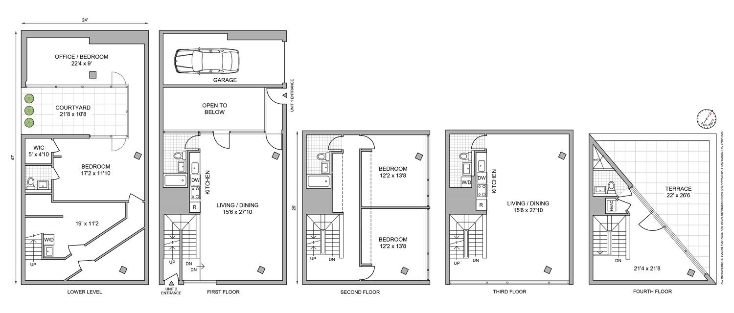
クライントンヒルのプライムエリアにある新しいタウンハウス、駐車場付き。この見事な5階建て2世帯用タウンハウス+ガレージは、評価の高いスイスの建築家イネス・ラムニエールによって設計され、3300平方フィートを超える現代的な居住スペースを提供し、クラスン通りとグリーン通りのダイナミックな街並みに美しく調和しています。上層のトリプレックスに住んで下層のデュープレックスを賃貸収入として利用するか、家全体を1世帯として住むことができます。
このユニークな住居は、各階に広がる大きな窓を持つ印象的なオールホワイトのスタッコファサードが特徴で、ミニマリストな内装に自然光を取り入れます。家はコンクリートの床と白いエポキシ仕上げの階段でデザインされており、白い漆喰の壁と天井までの窓が組み合わされ、新鮮なギャラリーのような空間を作り出しています。
1900平方フィートの上層トリプレックスユニットは、クラスン通りに入り口があり、3つの寝室と3つのバスルームを備えています。最初の階には、グリーン通りの景色が見える2つの寝室とフルバスルームがあります。次の階には、クラスン通りの都市景観をフレームにした窓の壁を持つ広々としたリビングエリア、ミニマリストキッチン、ハーフバス、洗濯機/乾燥機が備わっています。最上階には、彫刻的でユニークな三角形の寝室とフルバスルームがあり、プライベートルーフトップテラスに通じています。
1400平方フィートの下層デュープレックスユニットは、グリーン通りからアクセス可能で、プライベートコートヤードを持つ静かな隠れ家を提供します。この2ベッドルーム、2.5バスのユニットは、コートヤードを見渡す28フィート×15フィートのリビングエリア、スリムなキッチン、フルバスルームを備えています。下の階には、天井までの窓があるため、寝るための柔軟なスペースやホームスタジオ/オフィスとして最適で、ウォークインクローゼット、ハーフバス、洗濯機/乾燥機が揃っています。
このエネルギー効率の良いタウンハウスには、セントラルエアとヒーティングを備えたオール電化のスプリットシステムがあります。トリプルグレージングの窓は効率を高め、優れた音の減衰効果を持っています。グリーン通りの入り口に隣接するガレージは、便利な駐車場または追加のストレージを提供します。2つのユニットは組み合わせて広々とした一戸建てにすることができ、ニーズに応じた柔軟性を提供します。
272グリーン通りで現代的なデザインと都市生活の完璧な融合を発見してください。すべての要素が特別な生活体験を提供するために考慮されています。
272グリーン通りは、クライントンヒルの魅力的な街路交差点の角に位置しています。タウンハウスは、トレンディなレストラン、カフェ、バー、ショップ、プラット・インスティチュートに囲まれており、G線とC線の地下鉄も数ブロック先にあります。この美しい21世紀のブルックリンのブラウンストーンを最初に手に入れましょう。
Brand New townhouse in Prime Clinton Hill with parking. This stunning 5-story, 2-family townhouse + garage, designed by the acclaimed Swiss architect Inès Lamunière, offers over 3,300 square feet of modern living space, beautifully integrating with the dynamic streetscape of Classon and Greene Avenues. Live in the upper triplex and rent out the lower duplex for income, or live in the whole house as a 1-family.
This unique residence has a striking all-white stucco facade featuring expansive windows spanning across each floor, inviting natural light into the minimalist interiors. The home is designed with concrete floors and stairs finished in sleek white epoxy, complemented by white plaster walls and floor-to-ceiling windows, creating fresh gallery-like spaces.
The 1900sf upper triplex unit, with its entrance on Classon Avenue, comprises 3 bedrooms and 3 baths. The first level features two bedrooms with views over Greene Avenue and a full bath. The next floor offers a large living area with a wall of windows framing the cityscape of Classon Avenue, a minimalist kitchen, half bath, and washer/dryer. The top floor presents a sculptural and unique triangular bedroom and full bath, leading to a private rooftop terrace.
The 1400sf lower duplex unit, accessible from Greene Avenue, offers a serene retreat with its own private courtyard. This 2-bedroom, 2.5-bath unit features a 28’ x 15’ living area with a streamlined kitchen and a full bathroom, all overlooking the courtyard. The lower level, with its floor-to-ceiling windows, provides versatile spaces perfect for sleeping or a home studio/office, complete with a walk-in closet, half bath, and washer/dryer.
This energy efficient townhouse has an all-electric split system with central air and heat. Triple glazed windows enhance the efficiency and add excellent sound reduction. The garage adjacent to the Greene Avenue entrance provides convenient parking or additional storage. The two units can be combined to create a spacious single-family home, offering versatility to meet your needs.
Discover the perfect blend of modern design and urban living at 272 Greene Avenue, where every element has been thoughtfully crafted to offer an exceptional living experience.
272 Greene Avenue anchors a corner position on a charming tree-lined intersection in Clinton Hill. The townhouse is surrounded by trendy restaurants, cafes, bars, shops, Pratt Institute and the G and C subway lines are a few blocks away. Be the first to own this stunning 21st century addition to brownstone Brooklyn.
This information is not verified for authenticity or accuracy and is not guaranteed and may not reflect all real estate activity in the market. © 2026 The Real Estate Board of New York, Inc., All rights reserved.







