| ID # | RLS20010828 |
| 物件の詳細 | 5 寝室, 5 バスルーム, 1 ハーフバス, 内装: 7200 ft2, 669m2 (DOM): 245 days |
| 建築年 | 1920 |
| 管理費 | $20,520 |
| 税金(年間) | $137,736 |
| 地下鉄 | 2 分: 6 |
| 7 分: Q | |
![]() |
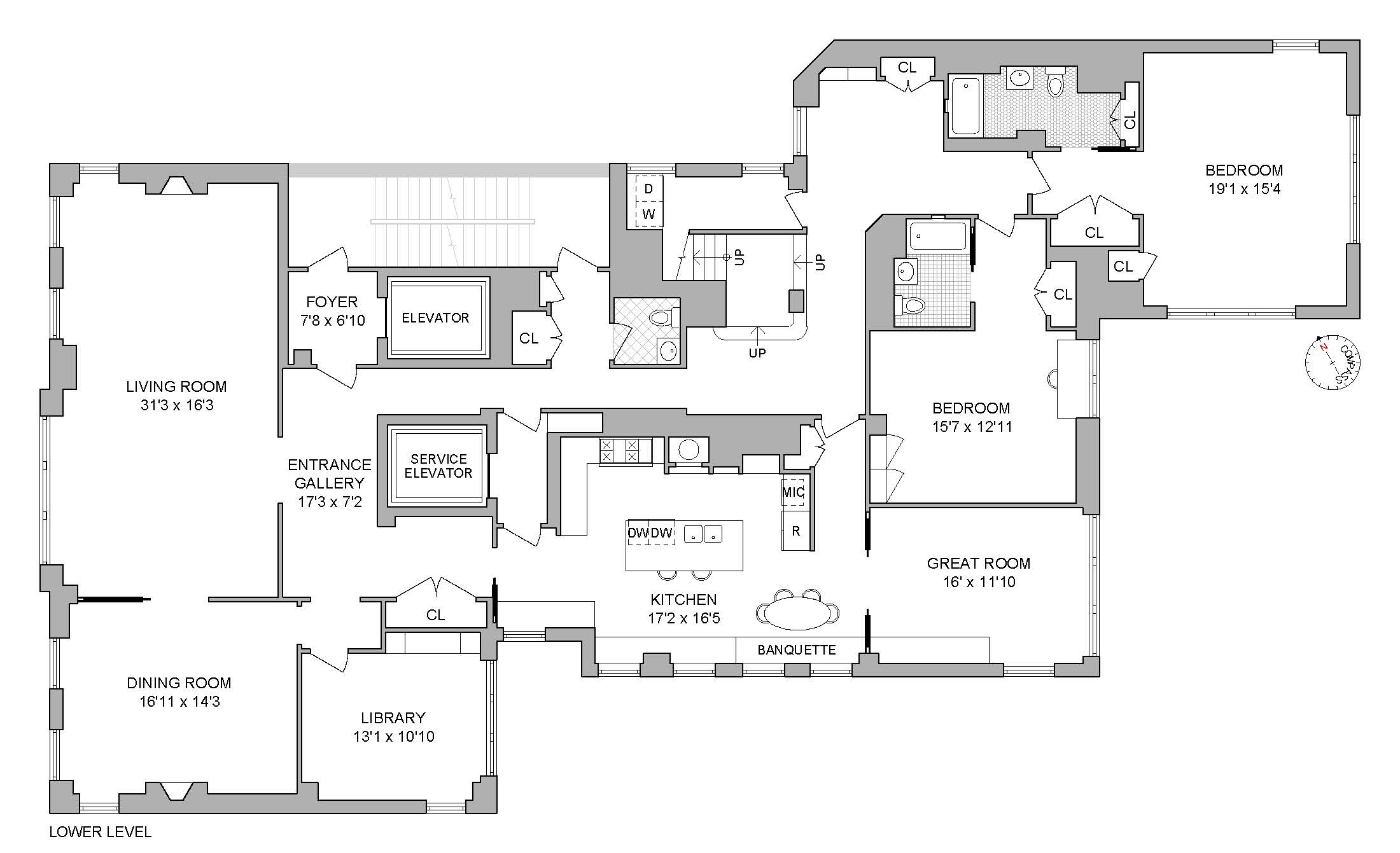
フルサービスのブティックプレウォーコンドミニアム内に位置する、この特別な12室のペントハウスレジデンスは、3つの素晴らしい庭園テラスによってユニークに補完されています。プライベートエレベーターの到着口は、優雅な入口のギャラリーへとつながり、広々とした二重サイズのリビングルーム(31' x 16')は、天井が10フィートのコファー仕上げ、ハードウッドのヘリンボーンフロア、石灰岩のガス暖炉を備えています。立派な形式的ダイニングルーム、特徴的な木製パネルの図書室もあります。眩しく日差しが差し込むグルメイートインシェフのキッチンは、エレガントな銅の装飾が施された豊富なオーダーメイドキャビネット、花崗岩のカウンタートップ、アン・サックスのタイル張りのバックスプラッシュ、6バーナーのラ・コルニューガスレンジとフード、サブゼロの冷蔵庫、2台のボッシュ食洗機を備え、シェフの夢が実現しました!キッチンのそばにありポケットドアで仕切られた明るいファミリールームは、カジュアルな集まりに最適です。このフロアには、それぞれに(美しく改装された)バスルームが付属する2つの大きなベッドルーム、魅力的な子供用ライブラリー/プレイルームがあり、すべてが広々とした青空の都市ビューを楽しめます。
上の階の前室に上がると、見事に造園された(48' x 17.5')テラスがあり、素晴らしいカリフォルニアスタイルのアウトドアリビングを提供します!3つのテラスのうちの1つは、ガス暖炉付きの居心地の良いリビングエリアと、広い独立したダイニングエリア、そして内蔵のウルフガスグリルを備えた特別なアウトドアキッチンがあります。このテラスの角にさりげなく配置されたユニークなアメニティは、南向きの開けた空と都市の景色を楽しむことができる、6人用の内蔵ホットタブです。また、この上のレベルには、贅沢なプライベートテラスを持つ広々とした主寝室スイート、床暖房付きのスパのようなサイドバイサイドバスルーム、サウナ、別の書斎またはホームオフィス、大きなウォークインクローゼット、バスルーム付きの4番目のベッドルーム、テラスに向かう魅力的な西向きの景色を持つ素敵な第2の書斎(または第2のホームオフィス)があります。
最上階には、ホームシアターと小規模な集まりや大規模なエンターテインメント、または必要ならばボードミーティングも開催できる、壮大で完全に造園されたテラスがあります。
重要な建築的ディテールには、360度の青空の景色、約7,200平方フィートの内部スペースと3,000平方フィートの外部スペース、10フィートのコファー天井、18世紀の石灰岩のマントルを持つ2つのガス暖炉、全体に広がるハードウッドのヘリンボーンフロア、マホガニーベイウィンドウ、堂々としたマホガニーポケットドア、マルチゾーン中央空調、バスルームにニッケル仕上げ、最上級の音響システム、すべてのテラスに灌漑システム、ランドリールーム、静寂で日差しがふり注ぐ、セントラルパーク、世界クラスの文化機関やアートギャラリー、学校、近くの高級ダイニング、マディソンアベニューの最も洗練されたシグネチャーブティックに近いトリプルAのロケーションがあります。
フルサービスのホワイトグローブブティックコンドミニアムは、アッパーイーストサイドのプライムブロックに位置し、よく整備されたフィットネスセンター、追加のストレージ、フルタイムのドアマン、ポーター、住み込みの管理者を含む attentive なスタッフを備えています。
ダウンタウン、アップタウン、東、西どちらの方向を見ても、このユニークで特別なプロパティはスターのような品質を放ち、あなたの心を奪います!
見学は月曜日から金曜日の午前9時から午後4時まで、祝日や週末を除きます。
Located within a full service boutique pre-war condominium, this exceptional 12 room penthouse residence is uniquely complemented by 3 magnificent landscaped terraces. The private elevator landing leads to a gracious entrance gallery, a grand double sized living room (31’ x 16’) with soaring 10’ coffered ceilings, hardwood herringbone floors, and a limestone gas-burning fireplace, a stately formal dining room, a distinguished wood paneled library. The dazzling, sun flooded gourmet eat-in-chef’s kitchen is appointed with copious bespoke cabinetry detailed with elegant copper finishes, granite countertops, Ann Sacks tiled backsplash, 6 burner La Cornue gas range and hood, Subzero refrigerator, and 2 Bosch dishwashers is a chef’s dream come true! Nestled by the kitchen and separated by pocket doors the cheerful family room is ideal for casual gatherings. Also on this floor resides two large bedrooms each with ensuite (beautifully renovated) bathrooms, a charming children’s library/playroom, and all enjoy big blue skied open city views.
Ascend to the upper floor vestibule and behold a masterfully landscaped (48’ x 17.5’) terrace that offers glorious California-styled outdoor living! The first of three terraces has an inviting living room area with gas fireplace, and larger separate dining area and an extraordinary outdoor kitchen with a built-in Wolf gas grill. A unique amenity, discreetly located around the corner of this terrace, is a 6 person built-in hot tub that enjoys wonderful southern open sky and city views. Also on this upper level, a generously sized primary bedroom suite has its own seductively private terrace, side by side spa-like bathrooms with radiant heated floors, a sauna, and separate study or home office and a large walk-in closet, the fourth bedroom with ensuite bath, and a lovely second study (or second home office) with enchanting western views onto the terrace and open sky beyond.
The uppermost floor has a home theatre and the most spectacular Zen-like, fully landscaped terrace large enough to comfortably host small gatherings or larger scaled entertaining or if need be, a board meeting or two!
Important architectural details include: 360 degrees open blue sky views, approximately 7,200 SF interior and 3,000 SF exterior, soaring 10’ coffered ceilings, 2 gas-burning fireplaces with 18th century limestone mantels, hardwood herringbone floors throughout, mahogany bay windows, commanding mahogany pocket doors, multi-zone central air conditioning, nickel finishes in the bathrooms, top of the line sound system, irrigation system on all terraces, laundry room, pin-drop quiet, sun-flooded, triple A location in proximity to Central Park, world-class cultural institutions and art galleries, schools, nearby fine dining and Madison Avenue’s most exquisite signature boutiques.
Full service white gloved boutique condominium located on a prime block of the Upper East Side has a well appointed fitness center, additional storage, an attentive full staff that includes full-time doorman, porters and live-in superintendent.
Whether looking downtown, uptown, east or west, this one-of-a-kind trophy property radiates star quality and will steal your heart!
Showings 9am-4pm M-F, excluding holidays and weekends.
This information is not verified for authenticity or accuracy and is not guaranteed and may not reflect all real estate activity in the market. ©2025 The Real Estate Board of New York, Inc., All rights reserved.






