| ID # | RLS20010826 |
| 物件の詳細 | 2 寝室, 2 バスルーム, 食器洗い機, 内装: 1163 ft2, 108m2 |
| 建築年 | 1931 |
| 管理費 | $529 |
| 税金(年間) | $4,644 |
| バス | 0 分: B46 |
| 1 分: B52 | |
| 4 分: B38 | |
| 5 分: B47, Q24 | |
| 6 分: B15 | |
| 7 分: B26 | |
| 地下鉄 | 6 分: J |
| 8 分: Z | |
| LIRR | 1.2 マイル: "Nostrand Avenue" |
| 1.7 マイル: "East New York" | |
![]() |
クラシックなブラウンストーンを洗練された現代的な魅力で再想像する。
マルコムXブルバードにある歴史的なブラウンストーンに装備されたこの建物は、クラシックなディテールと現代的な快適さを融合させています。高い天井、オーバーサイズの窓、エレガントなキッチン、最先端の気候制御システムなど、思慮深いデザインが、復元された世紀の転換期の壁の中に隠されています。すべて新しい電気、配管、床、水道本管、スプリンクラーシステムなどで、安心してお過ごしいただけます。
ブルックリンの新しい開発のほとんどとは異なり、この建物は高級なカスタム仕上げと著名な建築事務所アレックスアレンスタジオによる卓越したデザインで際立っています。すべてのディテールは、あなたのライフスタイルに特化した空間の創造のために思慮深く作られています。このレベルの品質とクラフトマンシップを持つ物件は、市場のどこにも他に見つけることができません。
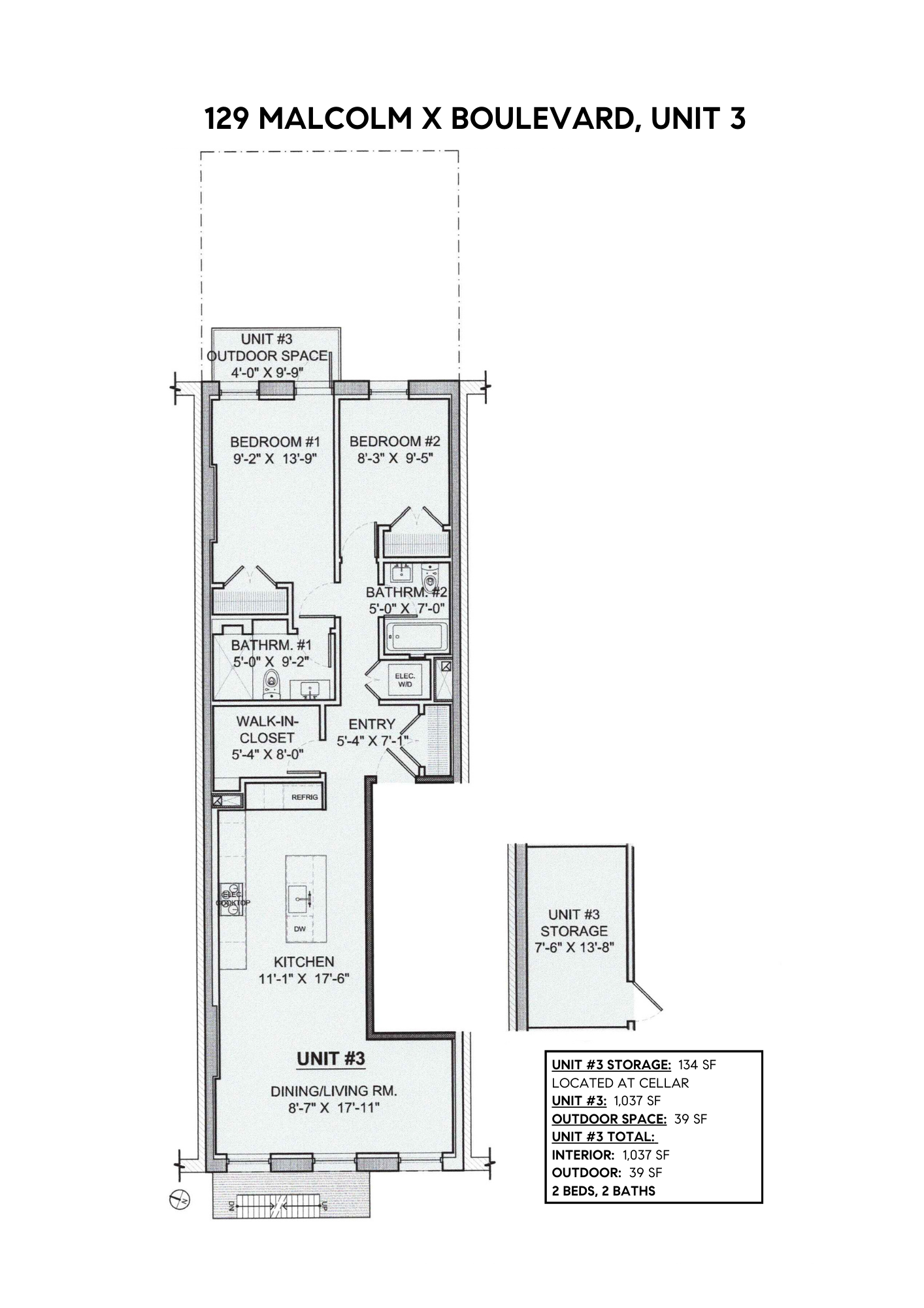
ユニット#3は、2つの寝室、2つのフルバス、ホームオフィスを備えた広々としたリビングスペースを提供し、さらに39平方フィートのプライベートバルコニーがあります。さらに、共用ホールを通ってアクセスできる107平方フィートのプライベートベースメント収納室もあります。
ユニットには、暖房された石灰岩の床があるバスルーム、広々とした収納、室内洗濯機、高効率の暖房と冷房など、機能的で便利な要素が備わっています。デザインは、カスタム木工やモールディング、ヘリンボーン床、ヨーロッパで特注された三重窓の開閉式窓で妥協されることはありません。
活気あるベッドフォード・スティーヴェサントの近隣に位置し、ブッシュウィックの境界に近いです。日が沈むと、レストランやバーの扉が開きます:ダイナコでのカクテル、ピーチズ・ホットハウスでのナッシュビルスタイルのフライドチキン、サラギーナでのナポリ風ピザ。ウィノナで自然派ワインを味わい、サンコファ・アバン・ベッド&ブレックファストでジャズを楽しむか、ベッド・スタイの緑地の一つでアウトドア映画を鑑賞してください。あなたの欲しいものが何であれ、ベッド・スタイには誰にでも楽しめるものがあります。
近くのJ線と複数のバスも、マンハッタンやあなたのお気に入りのブルックリンの他のエリアへの迅速で簡単なアクセスを提供します。
その優れた立地と現代的な設備を考慮すると、129マルコムXブルバードはユニークな建物であり、未来への素晴らしい投資です。
閉鎖は2025年夏を予定しています。
完全な提供条件は、提供計画に記載されており、スポンサーから入手可能です。ファイル番号CD24-0096。スポンサー:ATELIER MALCOLM X LLC、170 TILLARY STREET, SUITE 704、BROOKLYN, NY 11201
Reimagining a classic brownstone with sophistication and modern charm.
Outfitted in a historic brownstone on Malcolm X Boulevard, the building blends classic details with modern comfort. Thoughtful designs such as high ceilings, oversized windows, elegant kitchens and state-of-the-art climate control systems are all tucked inside the restored turn-of-the-century walls. Experience peace of mind with all-new electrical, plumbing, flooring, water main, sprinkler system and more.
Unlike most Brooklyn new development, this building stands out with high-end custom finishes and exceptional design by the renowned architecture firm AlexAllen Studio. Every detail has been thoughtfully crafted to create a space that feels tailored specifically to your lifestyle. With this level of quality and craftsmanship, you won’t find a better value anywhere else on the market.
Unit #3 offers an expansive living space with 2 bedrooms, 2 full baths, and a home office, plus an additional 39 square-foot private balcony. Additionally, there is a 107SF private basement storage room accessible through the common hall.
Units feature functional and convenient elements such as bathrooms with heated limestone floors, generous storage, in-unit laundry, and high-efficiency heating and cooling. Design is never compromised with custom millwork and moldings, herringbone floors and triple-paned, tilt-and-turn windows custom made in Europe.
Located in the vibrant neighborhood of Bedford Stuyvesant, close to the Bushwick border. As the sun sets, restaurant and bar doors open: cocktails at Dynaco, Nashville-style fried chicken at Peaches Hot House, Neapolitan pizza at Saraghina. Sip on a natural wine at Winona’s. Catch some jazz at the Sankofa Aban Bed & Breakfast, or an outdoor movie screened in one of Bed-Stuy’s green spaces. Whatever you're craving, Bed-Stuy has something for everyone.
The nearby J train and multiple buses also offer quick and easy access to Manhattan and your other favorite Brooklyn neighborhoods.
With its prime location and modern amenities, 129 Malcolm X Blvd is a unique building and fantastic investment in the future.
Expected closings summer 2025.
THE COMPLETE OFFERING TERMS ARE IN AN OFFERING PLAN AVAILABLE FROM SPONSOR. FILE NO. CD24-0096. SPONSOR: ATELIER MALCOLM X LLC, 170 TILLARY STREET, SUITE 704, BROOKLYN, NY 11201
This information is not verified for authenticity or accuracy and is not guaranteed and may not reflect all real estate activity in the market. ©2025 The Real Estate Board of New York, Inc., All rights reserved.







