| ID # | RLS20031938 |
| 物件の詳細 | 6 寝室, 3 バスルーム, 内装: 4488 ft2, 417m2 (DOM): 322 days |
| 建築年 | 1899 |
| 税金(年間) | $5,400 |
| バス | 1 分: B15 |
| 3 分: B26, B52 | |
| 5 分: B43 | |
| 7 分: B46 | |
| 8 分: B25, B38 | |
| 地下鉄 | 9 分: C |
| LIRR | 0.8 マイル: "Nostrand Avenue" |
| 1.9 マイル: "East New York" | |
![]() |
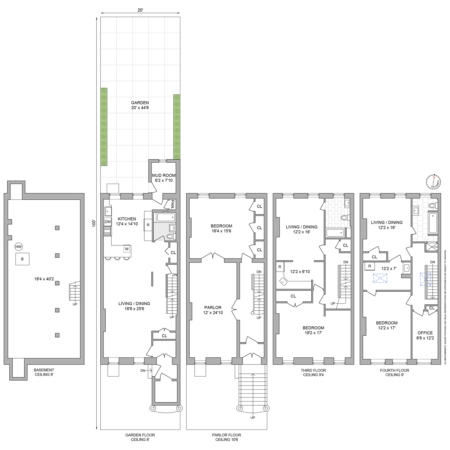
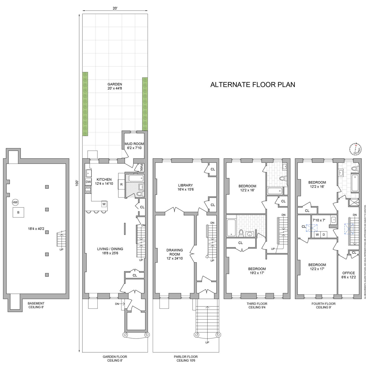
この特別なタウンハウスは621 Putnam Aveにあり、本当に素晴らしい物件です。家は美しい並木道にあるタウンハウスのブロックに位置し、歴史的で間もなく改装されるMarcus Garvey Armoryの向かいにあります。この見事なブラウンストーンは3600平方フィートの広さを持ち、多くのオリジナルのディテールがそのまま残っています。20フィートの広さを持つこの家は、夢の家を作るための完璧な機会です。現在、この家には四つの寝室と三つのフルバスルームがありますが、代替の間取り図に示されているように、スペースをカスタマイズする可能性は無限大です。
ガーデンレベルは改装されており、広々としたリビング/ダイニングと開放的なキッチンがあり、巨大な裏庭への直接アクセスがあります。また、この階に改装されたフルバスルームもあります。パーラー階には高い天井、暖炉、オリジナルのパーケットフロア、美しい木工が窓やドアの周囲に施されています。立派なフレンチドアとトランサムが、空間を前の部屋と後ろの部屋に優雅に分けています。
上の2階には高い天井、ピクチャーレールモールディング、ヘリンボーンとモザイクのパーケットフロアが混在しています。大きな窓が明るく快適な部屋を作り、装飾的な暖炉、アーチ状のドアウェイ、ピクチャーレールモールディングがあります。各階のバスルームはリフォーム済みです。
Stuyvesant Heightsに隣接した理想的なロケーションで、多くの素晴らしいレストランやバーにも近いです。ブロックの一端にあるFrogには、雰囲気のある屋外座席と素晴らしいワインのセレクションがあります。反対の方向にはSaraghinaの最高のコールオーブンピザや、Peachesの美味しいコンフォートフードがあります。訪問中にコーヒーを手に取り、Black Star Vinylで本やレコードを閲覧してみてください。急行Aトレインに乗ればすぐに到着できます。お見逃しなく!
This exceptional townhouse located at 621 Putnam Ave is a true gem. The house is situated on a beautiful tree-lined townhouse block, across from the historic, and soon-to-be revamped, Marcus Garvey Armory. This stunning brownstone spans 3,600 square feet with many of its original details intact. The 20’ wide house is a perfect opportunity to create your dream home. Currently, the house has four bedrooms and three full bathrooms but, as seen on the alternate floor plan, the possibilities to customize the space are endless.
The garden level has been renovated featuring a spacious living/dining with an open kitchen that has direct access to the enormous backyard. It also has a renovated full bathroom on this floor. The parlor level has high ceilings, a fireplace, original parquet floors, and beautiful woodwork surrounding the windows and doorways. Handsome french doors with a transom elegantly divide the space into front and back rooms.
The top two floors have high ceilings, picture rail moldings, and a mix of herringbone and mosaic parquet floors. Oversized windows create bright, cheery rooms with decorative fireplaces, arched doorways, and picture rail moldings. The bathrooms on each floor have been remodeled.
Ideal location adjacent to Stuyvesant Heights, and close to many amazing restaurants and bars. Frog, at one end of the block, has ambient outdoor seating and a great selection of wines. In the other direction, you can find the best coal oven pizza at Saraghina and delicious comfort food at Peaches. While you’re visiting, grab a coffee and browse the selection of books and records at Black Star Vinyl. You’ll be here in a flash if you catch the express A train. Don’t wait!
This information is not verified for authenticity or accuracy and is not guaranteed and may not reflect all real estate activity in the market. © 2026 The Real Estate Board of New York, Inc., All rights reserved.







