| ID # | 879166 |
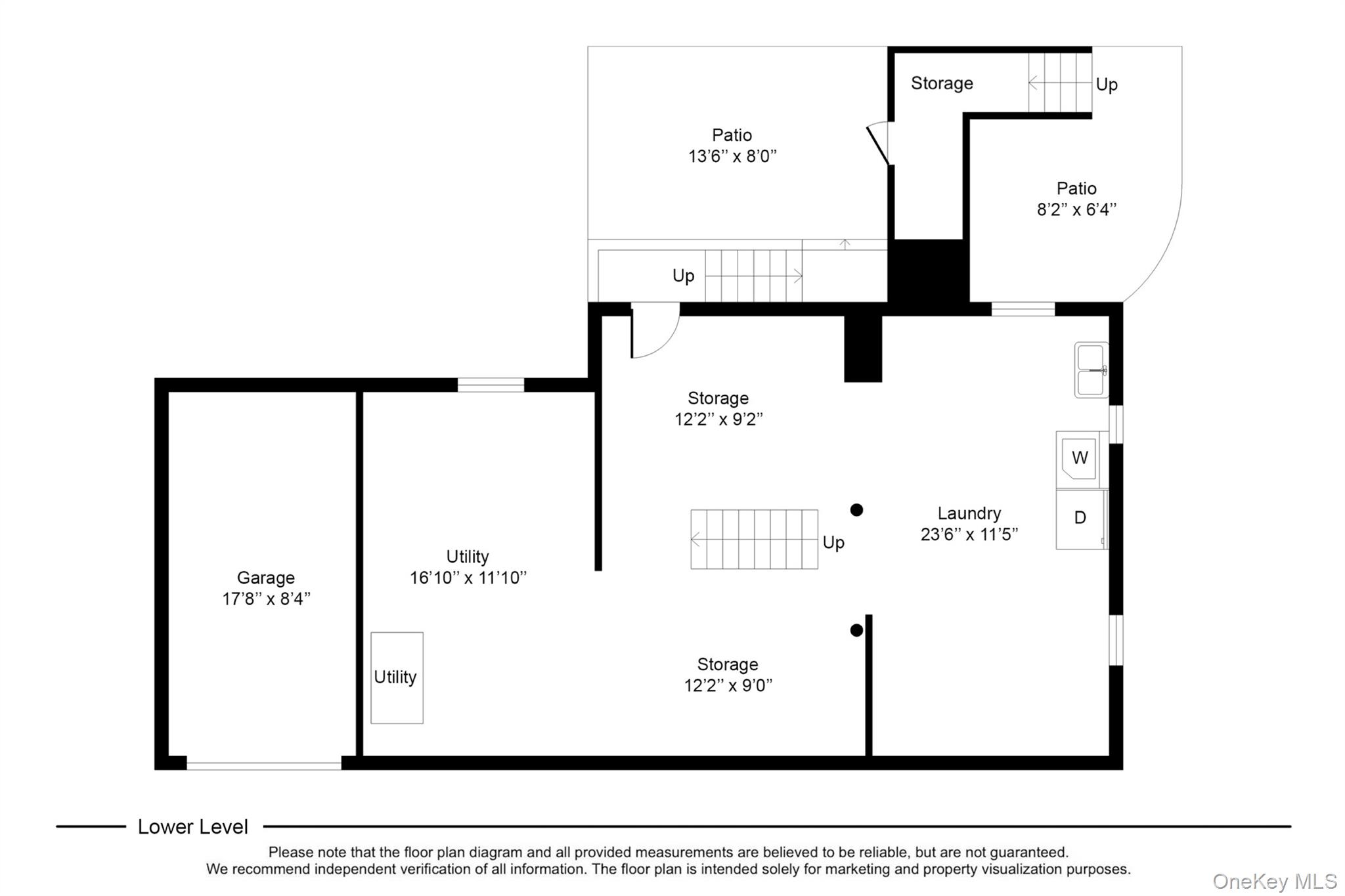
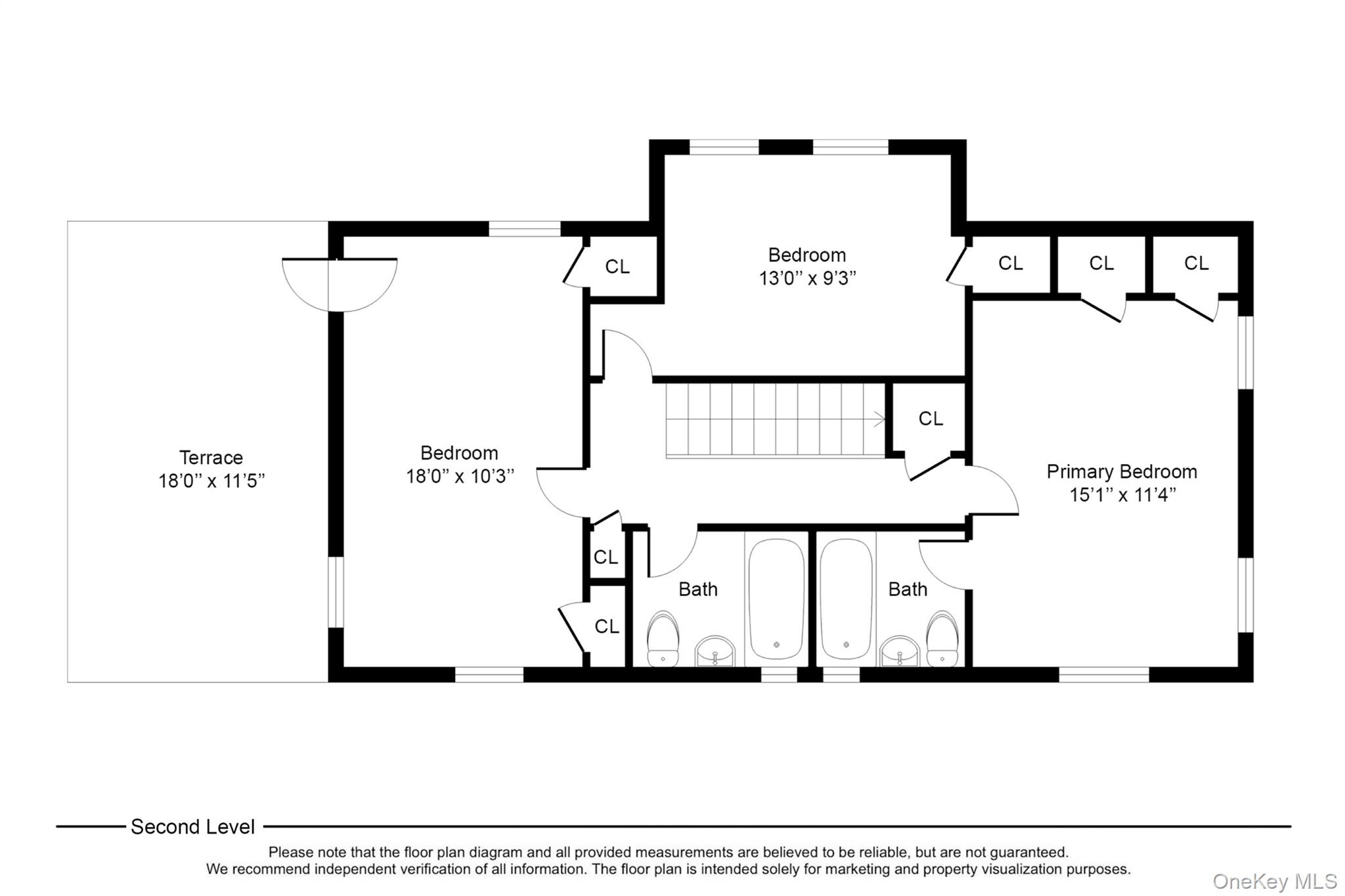
| 物件の詳細 | 4 寝室, 3 バスルーム, 食器洗い機, 洗濯機, 乾燥機, ガレージ, エアコン, 内装: 1952 ft2, 181m2 (DOM): 123 days |
| 建築年 | 1925 |
| 税金(年間) | $14,900 |
| 燃料の種類 | 天然ガス Gas |
| 暖房タイプ | 温水 Hot water |
| エアコン | 壁掛けエアコン Wall Unit AC |
| 地下室 | 全面地下室 Full basement |
| ガレージタイプ | ビルトイン Attached |
![]() |
この魅力的なレンガ造りのコロニアルは、ニューロシェルの人気のサンヘイブン地区にあり、あなたのクリエイティブな手を待っています! このクラシックな4ベッドルーム、3バスルームの家は、広々とした部屋とエンターテイメントに最適な素敵な庭を特徴としています。この家は、あなたの個性を引き立てる無限の可能性を提供します。ゆったりとした間取りには、居心地の良い暖炉のある明るいリビングルーム、ダイニングルーム、そしてカスタマイズの準備ができたフレキシブルな間取りが含まれています。交通、公園、ショップに便利な場所にあり、このクラシックなコロニアルをあなたの夢の家に変える刺激的なチャンスです。元々は4つ目のベッドルームだった部屋は、現在はオフィススペースとして使用されており、キッチンのすぐ横にあり、フルバスルームもあり、素晴らしいオペアやゲストスイート、マッドルーム/パントリー、またはホームオフィスとして利用できます。地下室にはたくさんの収納スペースと新しい機械設備が備わっています。敷地はよく手入れされており、プライバシーを提供し、印象的な成熟した植栽、果樹、ハーブ庭園が含まれています。石のパティオは、バーベキューや集まりを楽しむ美しい場所です。ビニール製のプライバシーフェンスと広々とした前庭、裏庭、側庭は、遊び、エンターテインメント、またはガーデニングのための素晴らしいスペースを提供します。あなたが思い描いた空間を創造し、この物件をあなたの夢の家にしてください。
This charming brick colonial nestled in the desirable Sunhaven neighborhood of New Rochelle awaits your creative touch! This classic 4 bedroom 3 full bath home features spacious rooms and a lovely yard perfect for entertaining. This home offers endless potential to showcase your personal style. The generous layout includes a bright living room with a cozy fireplace, a dining room and a flexible floor plan ready for your customization. Conveniently located near transportation, parks and shops this is an exciting opportunity to transform this classic colonial into your dream home. Originally the fourth bedroom, now used as office space is located just off the kitchen and offers a full bathroom and can be a great au pair or guest suite, mudroom/pantry or home office. The basement provides tons of storage space and newer mechanicals. The grounds are well maintained and offer privacy, impressive mature plantings including fruit trees and herb gardens. The stone patio is a lovely place to enjoy a bbq or host a get-together The vinyl privacy fencing and expansive front, back and side yards all offer great space for play, entertaining or gardening. Create the space you've envisioned and make this property your dream home. © 2025 OneKey™ MLS, LLC







