| ID # | RLS20038773 |
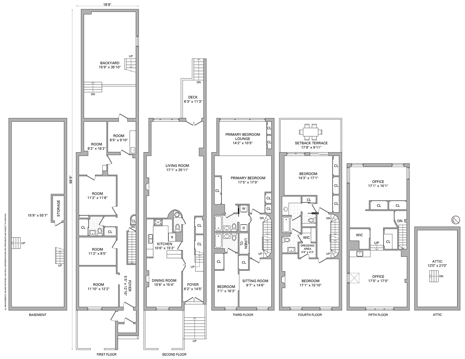
| 物件の詳細 | 4 寝室, 4 バスルーム, 2 ハーフバス, 洗濯機, 乾燥機, 内装: 5625 ft2, 523m2 (DOM): 101 days |
| 建築年 | 1858 |
| 税金(年間) | $48,000 |
| 地下鉄 | 5 分: 6 |
| 10 分: R, W | |
![]() |
マンハッタンの中心にある静かで穏やかなオアシス
206 East 30th Streetは、5階建てで5600平方フィート以上を占める唯一無二の歴史的かつ象徴的なタウンハウスです。幅18.75フィート、長さ60フィートで、18.75フィート x 98.75フィートの敷地に位置しています。
1858年に建設されたこの建物の特徴には、すべての部屋に素晴らしい光と空が入り、10フィートのパーラー天井、900平方フィートの屋外庭園、2つのテラス、壁面エアコン、赤いベルベットのリビングルーム、大理石の暖炉、洗濯機/乾燥機、チェッカーボードタイルのバスルーム、オーバーヘッド照明、珍しい屋根裏部屋と全高の地下室を備えた信じられないほどの収納スペース、防火階段などがあります。最も素晴らしい特徴は、ダイニングルームのドアとリビングルームのバール木材が1930年代のクナード・ライナーRMSカロニアからのものであることです。
静かで魅力的な並木通りに位置し、ローズヒルに完璧に位置し、交通機関、レストラン、ブティック、ショップに近いです。北にはマレー・ヒル、南にはグラマシー・パーク、東にはキップス・ベイ、南西にはフラットアイロン地区、西北にはノマドと、周囲の5つの近隣エリアまで数秒の距離です。
50年以上同じ家族に大切にされてきたこの家は、空室で提供されます。現在の4階建ての住宅とオフィス/店舗(最後に医療オフィスとして賃貸されていました)の構成を維持するか、一戸建てまたは二世帯住宅に変更することができます。他人の夢に住む理由はありません、自分自身の夢をデザインしましょう。
Calm & Tranquil Oasis in the Heart of Manhattan
206 East 30th Street is a one-of-a-kind, historic & iconic townhouse, spanning 5 stories, encompassing over 5600+ sq ft, approximately 18.75' wide x 60' long, located on a 18.75' x 98.75' lot.
Built in 1858, building highlights include spectacular light and sky in every room,10 ft parlor level ceilings, 900 sq ft outdoor garden, two terraces, through wall-AC, red velvet sitting room, marble fireplaces, washer/dryer, checkerboard tile bathrooms, overhead lighting, incredible storage with rare attic and full-height basement, and fire-escape. Perhaps the most incredible feature of the home, the dining room doors and burled wood in the living room, are from the Cunard liner RMS Caronia, a shipliner from the 1930s.
Located on a quiet & charming tree-lined block, perfectly situated in Rose Hill, close to transportation, restaurants, boutiques, and shops. You are seconds from five nearby neighborhoods including Murray Hill to the north and Gramercy Park to the south, Kips Bay to the east, the Flatiron District to the southwest, and NoMad to the northwest.
Lovingly owned by the same family for over 50 years, this home will be delivered vacant. Keep the home's current configuration of a four-story home on top of an office/store (last rented as medical offices) or transform into a single- or two-family house. Why live in someone else's dream, when you can design your own?
This information is not verified for authenticity or accuracy and is not guaranteed and may not reflect all real estate activity in the market. ©2025 The Real Estate Board of New York, Inc., All rights reserved.







