| ID # | RLS20042848 |
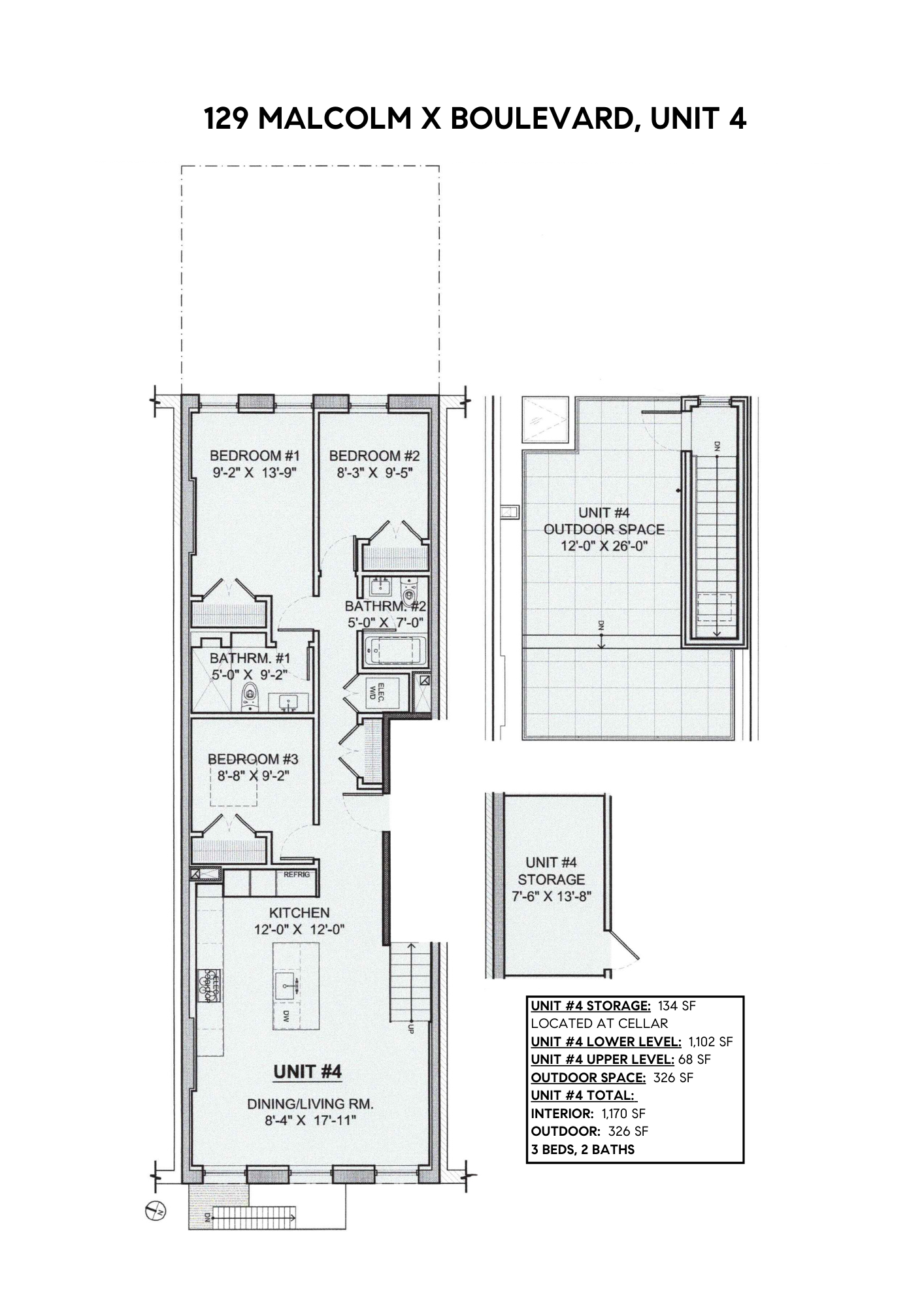
| 物件の詳細 | 3 寝室, 2 バスルーム, 食器洗い機, 内装: 1170 ft2, 109m2 |
| 建築年 | 1931 |
| 管理費 | $613 |
| 税金(年間) | $5,388 |
| バス | 0 分: B46 |
| 1 分: B52 | |
| 4 分: B38 | |
| 5 分: B47, Q24 | |
| 6 分: B15 | |
| 7 分: B26 | |
| 地下鉄 | 6 分: J |
| 8 分: Z | |
| LIRR | 1.2 マイル: "Nostrand Avenue" |
| 1.7 マイル: "East New York" | |
![]() |
新しいデベロップメントPHはプライベートルーフトップと素晴らしい眺めを提供します!
洗練された現代的な魅力とクラシックなブラウンストーンを再構築。
マルコムXブルバードの歴史的なブラウンストーンに装備されたこの建物は、クラシックなディテールと現代の快適さを融合させています。高い天井、オーバーサイズの窓、気品あるキッチン、最新の気候制御システムなど、思慮深いデザインが、復元された世紀の転換期の壁の中に収められています。すべてが新しい電気、配管、床、水道本管、スプリンクラーシステムなどで、心の平安を体験できます。
ほとんどのブルックリンの新しい開発とは異なり、この建物は高級カスタムフィニッシュと著名な建築事務所アレックスアレンスタジオによる卓越したデザインで際立っています。すべてのディテールは、あなたのライフスタイルに特化された空間を作るために注意深く設計されています。このレベルの品質と職人技で、マーケットの他のどこにもこのような価値は見つかりません。
ユニット#4、ペントハウスは、3つの寝室、2つのフルバスルーム、内部階段を通じてアクセス可能なプライベートルーフトップを備えた広々としたリビングスペースを提供します。さらに、共用ホールを通じてアクセス可能な134SFのプライベート地下収納室があります。
ユニットには、床暖房付きのバスルーム、広々とした収納、ユニット内ランドリー、高効率の暖房および冷却など、機能的かつ便利な要素が備わっています。デザインは妥協されることなく、カスタムミルワークやモールディング、ヘリンボーンフロア、ヨーロッパ製の三重窓が使用されています。
活気に満ちたベッドフォード・スタイヴサントの近隣に位置し、ブッシュウィックとの境界にも近いです。日が沈むと、レストランやバーのドアが開きます:ダイナコでカクテルを、ピーチズ・ホットハウスでナッシュビルスタイルのフライドチキンを、サラギーナでナポリピザを楽しんでください。ウィノナの自然派ワインを味わったり、サンコファ・アバン・ベッド&ブレックファーストでジャズを楽しんだり、ベッド・スタイの緑地帯でアウトドア映画を観たりすることができます。あなたが求めるものは何であれ、ベッド・スタイには誰もが楽しめる何かがあります。
近くのJ線と複数のバスは、マンハッタンや他のお気に入りのブルックリンの地区への迅速かつ簡単なアクセスを提供します。
この主要なロケーションと現代的なアメニティを備えた129マルコムXブルバードは、ユニークな建物であり、将来の素晴らしい投資です。
予想されるクロージングは2025年です。
完全なオファリング条件は、スポンサーから入手可能なオファリングプランに記載されています。ファイル番号CD24-0096。スポンサ-:アトリエ・マルコムX LLC、170ティラリー・ストリート、スイート704、ブルックリン、NY 11201
NEW DEV PH with private rooftop and amazing views!
Reimagining a classic brownstone with sophistication and modern charm.
Outfitted in a historic brownstone on Malcolm X Boulevard, the building blends classic details with modern comfort. Thoughtful designs such as high ceilings, oversized windows, elegant kitchens and state-of-the-art climate control systems are all tucked inside the restored turn-of-the-century walls. Experience peace of mind with all-new electrical, plumbing, flooring, water main, sprinkler system and more.
Unlike most Brooklyn new development, this building stands out with high-end custom finishes and exceptional design by the renowned architecture firm AlexAllen Studio. Every detail has been thoughtfully crafted to create a space that feels tailored specifically to your lifestyle. With this level of quality and craftsmanship, you won’t find a better value anywhere else on the market.
Unit #4, the Penthouse, offers an expansive living space with 3 bedrooms, 2 full baths, and the private rooftop, accessible through an internal staircase. Additionally, there is a 134SF private basement storage room accessible through the common hall.
Units feature functional and convenient elements such as bathrooms with heated limestone floors, generous storage, in-unit laundry, and high-efficiency heating and cooling. Design is never compromised with custom millwork and moldings, herringbone floors and triple-paned, tilt-and-turn windows custom made in Europe.
Located in the vibrant neighborhood of Bedford Stuyvesant, close to the Bushwick border. As the sun sets, restaurant and bar doors open: cocktails at Dynaco, Nashville-style fried chicken at Peaches Hot House, Neapolitan pizza at Saraghina. Sip on a natural wine at Winona’s. Catch some jazz at the Sankofa Aban Bed & Breakfast, or an outdoor movie screened in one of Bed-Stuy’s green spaces. Whatever you're craving, Bed-Stuy has something for everyone.
The nearby J train and multiple buses also offer quick and easy access to Manhattan and your other favorite Brooklyn neighborhoods.
With its prime location and modern amenities, 129 Malcolm X Blvd is a unique building and fantastic investment in the future.
Expected closings fall 2025.
THE COMPLETE OFFERING TERMS ARE IN AN OFFERING PLAN AVAILABLE FROM SPONSOR. FILE NO. CD24-0096. SPONSOR: ATELIER MALCOLM X LLC, 170 TILLARY STREET, SUITE 704, BROOKLYN, NY 11201
This information is not verified for authenticity or accuracy and is not guaranteed and may not reflect all real estate activity in the market. © 2026 The Real Estate Board of New York, Inc., All rights reserved.







