| ID # | H6334420 |
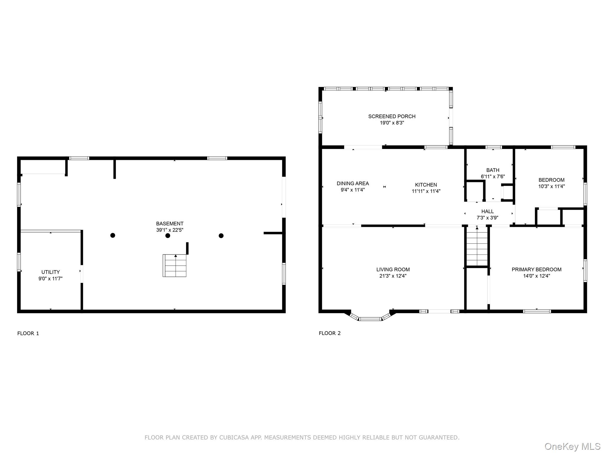
| 物件の詳細 | 2 寝室, 1 バスルーム, 外装: 3.9 エーカー, 内装: 2016 ft2, 187m2 (DOM): 66 days |
| 建築年 | 1979 |
| 税金(年間) | $5,783 |
| 地下室 | 全面地下室 Full basement |
![]() |
機会が待っているこの2ベッドルーム、1バスのランチは大きな可能性を秘めています!静かな近所に位置するこの家は、朝のコーヒーや夕方のリラックスにぴったりなスクリーン付きの裏ポーチを備えています。広々とした平坦な庭は、アウトドアの集まりやガーデニング、または穏やかな環境でリラックスするのに最適です。この家は少し手入れが必要ですが、自分の好みに合わせてカスタマイズする素晴らしい機会を提供します。間取りは初めての購入者、ダウンサイザー、または素晴らしい場所でやりがいのあるプロジェクトを求めている方に理想的です。地元のワイナリー、ハイキングコース、醸造所に近く、釣り、カヤック、カヌーに最適なシャワングンクキルの近くにあります。通勤アクセスのためにRt.17にも近いです。あなたのビジョンを持って、この家をあなたのホームにしましょう!可能性を確認するために今日内覧のスケジュールを立ててください。パインバッシュ学区。
Opportunity awaits at this 2-bedroom, 1-bath ranch brimming with potential! Nestled in a peaceful neighborhood, this home offers a screened back porch—for morning coffee or evening relaxation. The spacious, level yard invites outdoor gatherings, gardening, or simply unwinding in a tranquil setting. While this home needs some TLC, it provides a fantastic opportunity to customize and make it your own. The layout is ideal for first-time buyers, downsizers, or those looking for a rewarding project in a great location. Close to local wineries, hiking trails, breweries, and borders the Shawangunk Kill for fishing, kayaking, or canoeing. Close to Rt. 17 for commuter access. Bring your vision and make this house a home! Schedule a showing today to see the possibilities that await. Pine Bush School District © 2025 OneKey™ MLS, LLC







