| ID # | RLS20046926 |
| 物件の詳細 | 1 寝室, 1 バスルーム, 内装: 700 ft2, 65m2 (DOM): 102 days |
| 管理費 | $980 |
| 地下鉄 | 6 分: 6 |
| 8 分: 4, 5 | |
![]() |
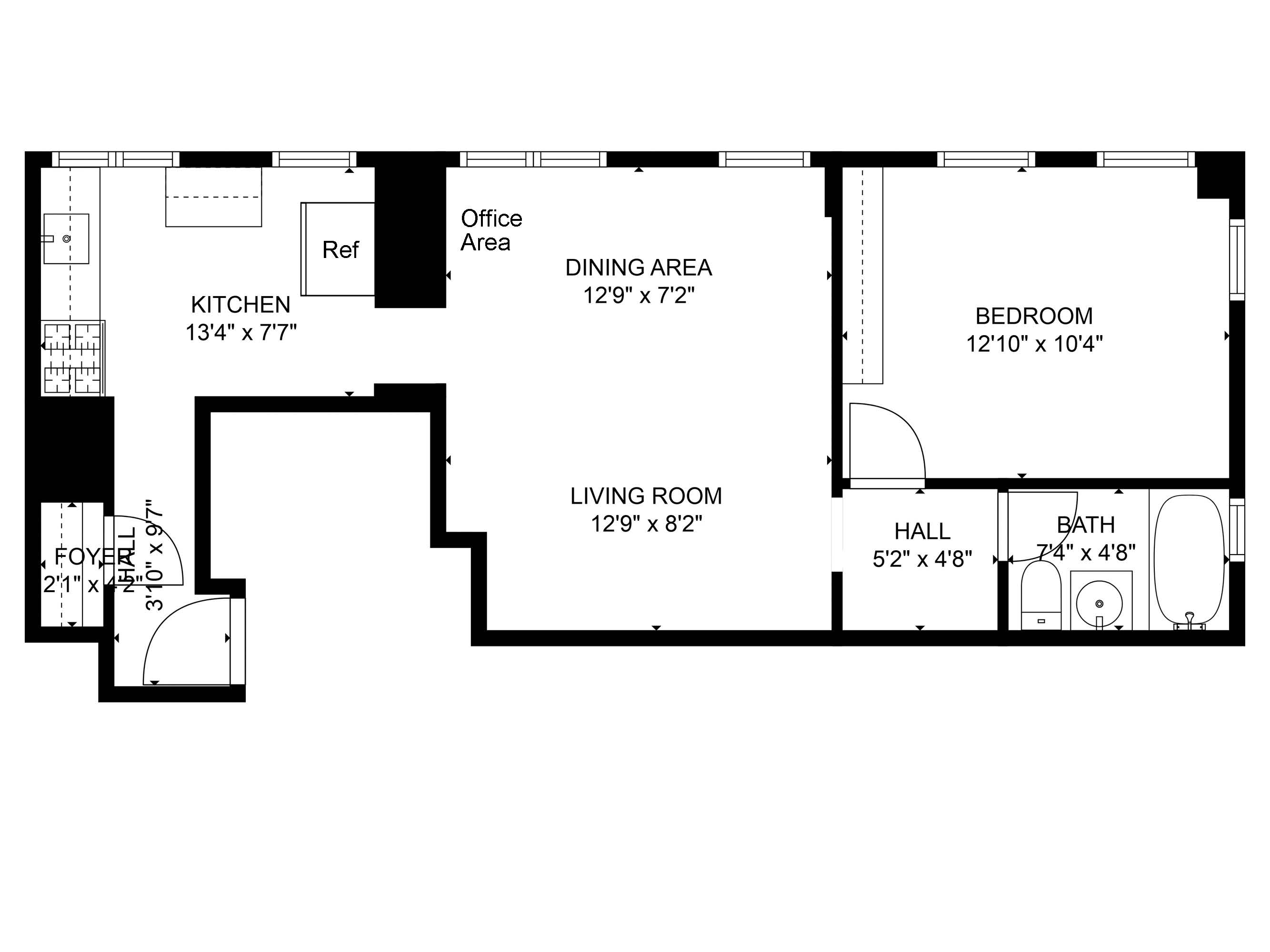
市場に新登場! -- 300-302 E 119th Streetへようこそ — イーストハーレムの木々に囲まれた魅力的なHDFCコープです。この完全に改装された角部屋の1ベッドルームアパートメントは、戦前の特徴と現代的なアップデートが調和した、温かく招待する空間です。
最近改装されたキッチンには、現代的な家電、白いタイルのバックスプラッシュ、現代的でボヘミアンな雰囲気のアーストーンのキャビネットがあります。ハードウッドフロアが家全体を流れ、高い天井と二重窓の防音窓が北西向きの望ましい光を家に取り込みます。
広々としたリビングエリアには、大きなソファ、コーヒーテーブル、ダイニングコーナー、メディアのセットアップ、ホームオフィスが余裕を持って配置できます。更新された窓のあるバスルームは、家の現代的な快適さを増しており、音声インターホンとセキュリティゲートを備えたエレベーター付きの建物は、便利さと安心感を提供します。 この建物には常駐のスーパーバイザー/ポーターがおり、管理代理人の承認と理事会の承認が必要です。
HDFC セクション 576 - 所得制限: $100,882 (世帯数 1~2)
サブリースは理事会の承認が条件となります。主な居住者のみ、投資家は不可
再販時の利益に基づく30%のフリップ税
イーストリバープラザ(Aldi、Costco、Planet Fitness)からほんの数分の距離に住み、Super Nice Coffee、La Tropezienne Bakery、Patsy’s Pizzeriaなどの近所の人気スポットを楽しんでください。公園、コミュニティガーデン、優れた交通オプションに囲まれています:4/5/6番地下鉄、MTAセレクトバス、メトロノース、シティバイクのステーション。
写真提供:Jehovy - EmpireOptix
NEW to Market! -- Welcome to 300-302 E 119th Street — a charming HDFC Co-op nestled on a tree-lined block in East Harlem. This fully renovated corner 1-bedroom apartment blends pre-war character with modern updates in a warm, inviting space.
The recently renovated kitchen features modern appliances, white tile backsplash, and earthy-toned cabinetry with a contemporary, bohemian flair. Hardwood floors flow throughout, complemented by high ceilings and dual-pane, soundproof windows that flood the home with natural light from its desirable northwest exposure.
The spacious living area easily accommodates a large couch with coffee table, dining nook, media setup, and home office. The updated windowed bathroom adds to the home’s modern comfort while the elevator building with voice intercom and security gate provides both convenience and peace of mind. The building has a live in Super/Porter, managing agent and board approval is required.
HDFC Section 576 - Income Cap: $100,882 (household of 1–2)
Subletting is conditional with Board approval. Primary residents only, no investors
30% Flip Tax based on profit upon resale
Live just moments from East River Plaza (Aldi, Costco, Planet Fitness), and enjoy neighborhood favorites like Super Nice Coffee, La Tropezienne Bakery, and Patsy’s Pizzeria. Surrounded by parks, community gardens, and excellent transit options: 4/5/6 subways, MTA Select buses, Metro-North, and Citi Bike stations.
Photography by Jehovy - EmpireOptix
This information is not verified for authenticity or accuracy and is not guaranteed and may not reflect all real estate activity in the market. ©2025 The Real Estate Board of New York, Inc., All rights reserved.







