| ID # | RLS20050985 |
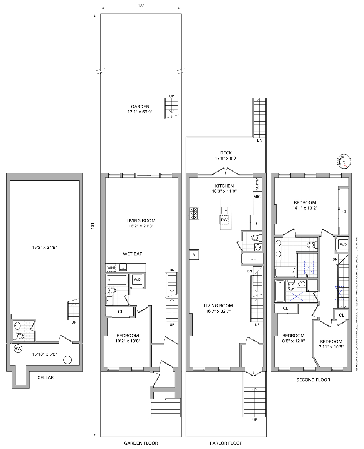
| 物件の詳細 | 4 寝室, 3 バスルーム, 2 ハーフバス, 食器洗い機, 洗濯機, 乾燥機, 内装: 3240 ft2, 301m2 (DOM): 59 days |
| 建築年 | 1901 |
| 税金(年間) | $4,692 |
| バス | 1 分: B48 |
| 2 分: B49 | |
| 3 分: B45, B65 | |
| 5 分: B44+ | |
| 6 分: B44 | |
| 9 分: B25 | |
| 10 分: B26 | |
| 地下鉄 | 2 分: S |
| 6 分: 2, 3, 4, 5 | |
| 9 分: C | |
| 10 分: A | |
| LIRR | 0.5 マイル: "Nostrand Avenue" |
| 1.2 マイル: "Atlantic Terminal" | |
![]() |
640プロスペクトプレイスへようこそ - クラウンハイツの中心にある美しい一戸建てタウンハウスを所有する珍しい機会です。
1901年に建設されたこの優雅なタウンハウスは、クラウンハイツの中心にある並木道に位置しています。3階建てに仕上げられた地下室を加え、保存された歴史的な詳細と現代の快適さの完璧なバランスを提供し、現代の居住者にとって魅力的な空間を創出しています。
パーラー階では、オリジナルのダブルドアを通って、天井が高く、装飾的な暖炉がある優雅なリビングルームにお迎えします。リビングスペースから流れるように続く正式なダイニングエリアは、家族の集まりやエンターテインメントに最適です。背面には、統合された家電、カスタムキャビネット、広々とした大理石のカウンタースペースを特徴とする、慎重に改装されたキッチンがあります。ガラスのドアは緑豊かで奥行きのある裏庭を見渡すプライベートデッキにつながっており、夏の食事や遊び、静かなひとときを楽しむのに最適です。
上階には、各々が独自の特徴と柔軟性を持つ3つの寝室があります。主寝室は庭を見下ろし、自然光が差し込む明るい空間で、十分なクローゼットと専用バスルームがあります。追加の寝室は家族、ゲスト、またはホームオフィスとして利用でき、芸術的でスタイリッシュなデザインのフルバスルームが補完しています。
ガーデン階には、ウェットバー、快適なリビングエリア、裏庭への直接アクセスを備えた1つの寝室があり、家の魅力的な拡張を提供します。この階はカジュアルなエンターテインメントやメディアルーム、プライベートゲストスイートに最適です。
仕上げられた地下室は、レクリエーションルーム、ホームジム、またはオフィスとして機能する多目的スペースを提供します。高い天井、パウダールーム、収納があり、家のレイアウトに快適さと便利さを加えています。
プロスペクトプレイスに位置するこの家は、近隣の最高の飲食店、カフェ、文化施設に囲まれています。メイフィールド、RAS Plant Based、チャベラズなどの地元の人気店がすぐ近くにあり、プロスペクトパーク、ブルックリン美術館、植物園も手の届く範囲です。フランクリンアベニューからの2、3、4、5、およびSラインの電車で、マンハッタンやその先への通勤が簡単にできます。
640プロスペクトプレイスは、時代を超えた建築の詳細、現代のアップデート、柔軟なレイアウトを兼ね備えた歴史的なブルックリンのタウンハウスを所有する珍しい機会を提供します - ブルックリンの最も活気のある地区の一つでの洗練された生活に理想的な環境です。
Welcome to 640 Prospect Place – a rare opportunity to own a stunning single family townhouse in the heart of Crown Heights.
Originally built in 1901, this elegant townhouse sits on a tree-lined block in the heart of Crown Heights. Spanning three stories plus a finished cellar, the home offers a perfect balance of preserved historic detail and modern comfort, creating an inviting space for today’s homeowner.
The parlor level welcomes you through original double doors into a gracious living room adorned with soaring ceilings, ornate crown moldings, and a decorative fireplace that speaks to the home’s historic charm. Flowing seamlessly from the living space, the formal dining area is ideal for family gatherings and entertaining. At the rear, a thoughtfully renovated kitchen features integrated appliances, custom cabinetry, and generous marble counter space. A glass door opens to a private deck that overlooks the lush, extra-deep backyard—perfect for summer dining, play, or quiet retreat.
Upstairs, you will find three bedrooms, each offering its own character and flexibility. The primary bedroom overlooks the garden and is bathed in natural light, with ample closet space and an ensuite bathroom. Additional bedrooms provide room for family, guests, or a home office, and are complemented by a full bathroom with artistic stylish design.
The garden floor offers an inviting extension of the home, with one bedroom, complete with a wet bar, comfortable living area, and direct access to the backyard. This level is perfect for casual entertaining, a media room, or a private guest suite.
The finished cellar offers a versatile space that can function as a recreation room, home gym, or office. With its tall ceilings, powder room, and storage, it adds comfort and convenience to the home’s layout.
Located on Prospect Place, the home is surrounded by the neighborhood’s best dining, cafés, and cultural attractions. Local favorites such as Mayfield, RAS Plant based and Chavela’s are just moments away, and Prospect Park, the Brooklyn Museum, and the Botanic Garden are within easy reach. The 2, 3, 4, 5 and S trains at Franklin Avenue provide a quick commute to Manhattan and beyond.
640 Prospect Place offers the rare opportunity to own a historic Brooklyn townhouse that combines timeless architectural detail, modern updates, and a flexible layout—an ideal setting for refined living in one of Brooklyn’s most vibrant neighborhoods.
This information is not verified for authenticity or accuracy and is not guaranteed and may not reflect all real estate activity in the market. ©2025 The Real Estate Board of New York, Inc., All rights reserved.







