| MLS # | 922242 |
| 建築年 | 1967 |
| 税金(年間) | $1 |
| 燃料の種類 | 電気 Electric |
| 暖房タイプ | 電気 Electric |
| エアコン | セントラルエアコン Central Air |
| LIRR | 0.5 マイル: "Smithtown" |
| 3 マイル: "St. James" | |
![]() |
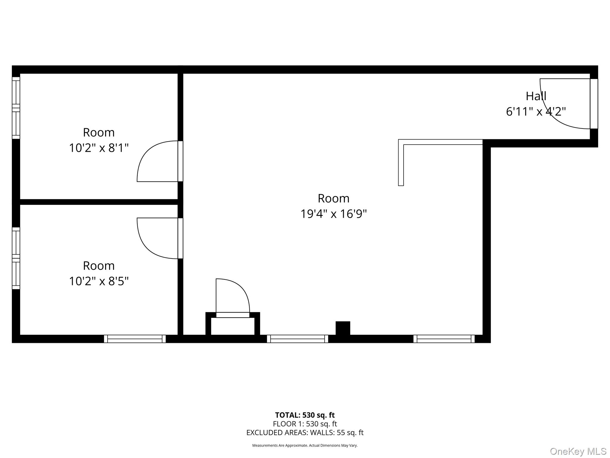
スイート204 – ニューヨーク州スミスダウンの中心にある538平方フィートのオフィススペース
スイート204は現在利用可能で、スミスダウンのダウンタウン中心部に理想的に位置する538平方フィートのよく設計されたプロフェッショナルオフィススペースを提供します。このスイートは、プロフェッショナル、医療、テクノロジー、法律、行政、またはクリエイティブな用途に適した効率的なレイアウトを提供します。
物件のハイライト:
サイズ:538平方フィート
レイアウト:2つのプライベートオフィス、作業スペースに最適な広いオープンルーム、そして歓迎するレセプションエリア
自然光:明るく魅力的なスペースで、大きな窓が作業環境を向上させます
場所:メインストリート、レストラン、小売店、重要なアメニティに近い一流のスミスダウンの住所
アクセス:25、347、111などの主要ルートへの便利なアクセス
駐車場:テナントとゲストのための十分な敷地内駐車場あり
建物:プロフェッショナルに維持管理された物件で、清潔でモダンな外観と簡単なアクセスが特徴
スイート204は、プライバシー、機能性、ロケーションの完璧なバランスを提供します。ロングアイランドで最も魅力的な商業エリアの一つにプロフェッショナルな存在感を確立したい企業に最適です。
Suite 204 – 538 Sq. Ft. Office Space in the Heart of Smithtown, NY
Now available, Suite 204 offers 538 sq. ft. of well-designed professional office space ideally located in the heart of downtown Smithtown. This suite provides an efficient layout suitable for professional, medical, tech, legal, administrative or creative use.
Property Highlights:
Size: 538 sq. ft.
Layout: Two private offices, one large open room ideal for workstations, and a welcoming reception area
Natural Light: Bright and inviting space with large windows enhancing the work environment
Location: Prime Smithtown address close to Main Street, restaurants, retail, and essential amenities
Accessibility: Convenient access to major routes including 25, 347, and 111
Parking: Ample on-site parking available for tenants and guests
Building: Professionally maintained property with a clean, modern appearance and easy access
Suite 204 offers the perfect balance of privacy, functionality, and location—ideal for businesses looking to establish a professional presence in one of Long Island’s most sought-after commercial areas. © 2025 OneKey™ MLS, LLC







