| ID # | RLS20053567 |
| 物件の詳細 | 2 寝室, 1 バスルーム, 1 ハーフバス, 内装: 1465 ft2, 136m2 (DOM): 297 days |
| 建築年 | 2014 |
| 管理費 | $150 |
| 税金(年間) | $4,020 |
| バス | 1 分: B26, B48 |
| 2 分: B52 | |
| 3 分: B25, B44 | |
| 5 分: B44+, B49 | |
| 7 分: B38 | |
| 8 分: B65 | |
| 9 分: B45 | |
| 地下鉄 | 3 分: C |
| 5 分: S | |
| 8 分: G, A | |
| LIRR | 0.6 マイル: "Nostrand Avenue" |
| 1 マイル: "Atlantic Terminal" | |
![]() |
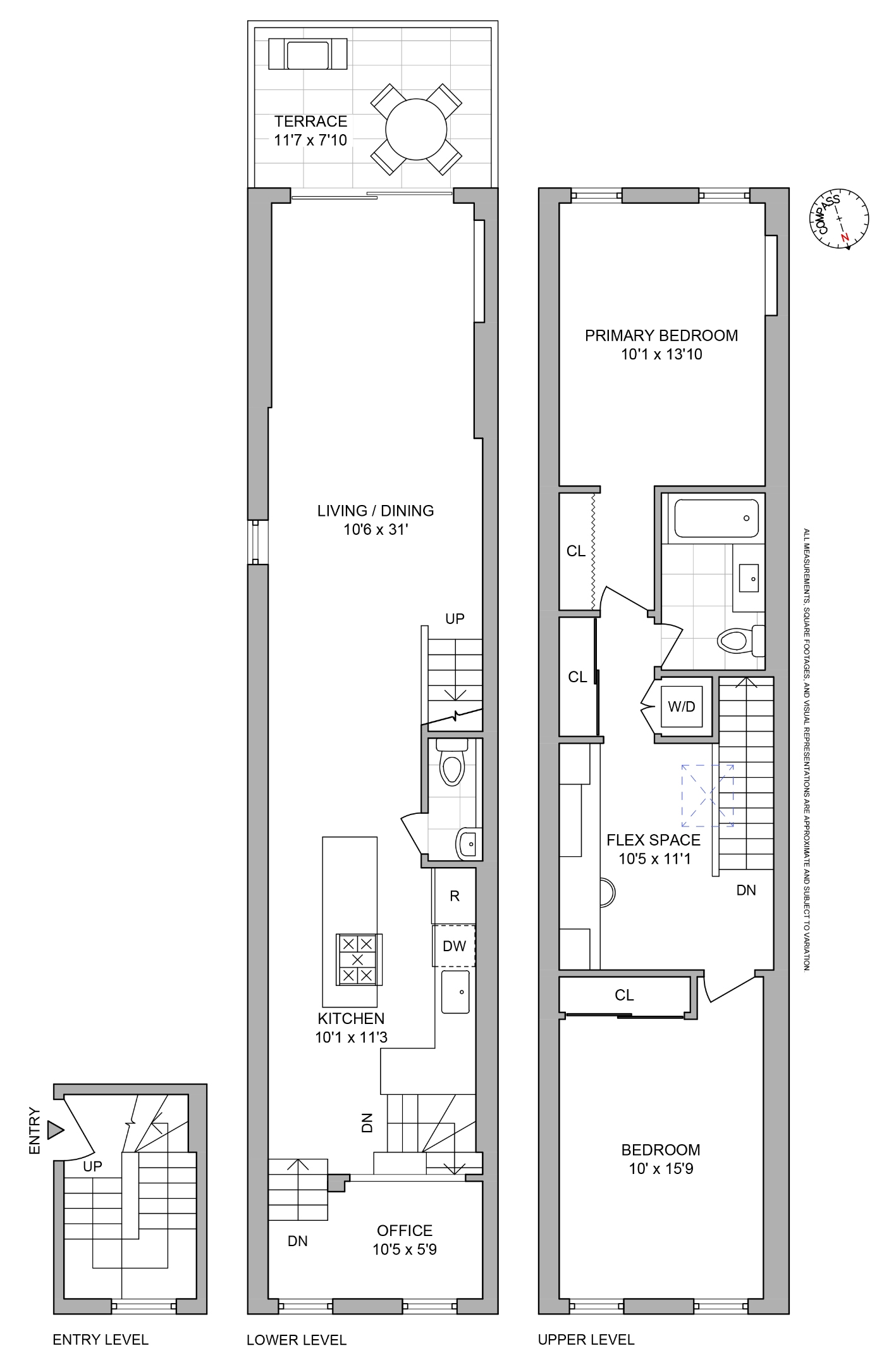
クレイトンヒルとベッドスタイの境界に位置するこの完全に改装された2ベッド1.5バスの二世帯住宅は、日当たりの良い空間と開放的な眺望、南向きのプライベテラスを提供します。
内部には高い天井と美しいハードウッドフロアがあります。キッチンにはビルトインのBosch食器洗い機、Samsungのストーブと冷蔵庫といった最新の家電が備わっており、Cedar + MossやSchoolhouseの照明器具が全体に配置されています。ロフト型のオフィススペースは窓付きでプライベート感があり、広々としています。2階には別のダイニングエリアとワークスペースがあり、ビルトインの棚、キャビネット、デスクも完備されています。このアパートメントは、豊富な収納スペース、広々としたクローゼット、便利な泥部屋の入り口を備えています。この二世帯住宅は、リモコン操作可能な三菱のエアコンとヒートポンプ式のミニスプリットユニットで年間を通じて快適さを提供し、さらにユニット内にはMieleの洗濯機/乾燥機があり、非常に低い管理費が魅力です。
公共交通機関(A、C、G線)へのアクセスが容易な活気ある近隣をお楽しみください。近くにはトレンディなレストラン、カクテルバー、カフェが多数あり、Otway、Smør、Speedy Romeo、Locanda Vini e Olii、Calaca、The Fly、Hart's、For All Things Good、Greenberg's Bagels、Coffee Land、Fan Fan Doughnutsなどがあります。
This fully renovated, 2-bed, 1.5-bath duplex on the border of Clinton Hill and Bed-Stuy offers a sun-drenched space with open views and a south-facing private terrace.
Inside, you will find high ceilings and beautiful hardwood floors. The kitchen features brand new appliances (Bosch dishwasher, Samsung stove, and fridge) and Cedar + Moss and Schoolhouse light fixtures throughout. The lofted office space is windowed, private, and spacious. There is a separate dining area and an additional workspace on the second floor, complete with built-in shelving, cabinets, and a desk. The apartment features ample storage, generous closets, and a convenient mudroom entry. This duplex offers year-round comfort with newly installed remote-controlled Mitsubishi AC and heat pump-enabled mini-split units, plus the convenience of an in-unit Miele washer/dryer and very low monthlies.
Enjoy a vibrant neighborhood with easy access to public transportation (A, C, and G trains). Nearby are various trendy restaurants, cocktail bars, and cafes, including Otway, Smør, Speedy Romeo, Locanda Vini e Olii, Calaca, The Fly, Hart’s, For All Things Good, Greenberg’s Bagels, Coffee Land, and Fan Fan Doughnuts.
This information is not verified for authenticity or accuracy and is not guaranteed and may not reflect all real estate activity in the market. ©2025 The Real Estate Board of New York, Inc., All rights reserved.







