| ID # | 927847 |
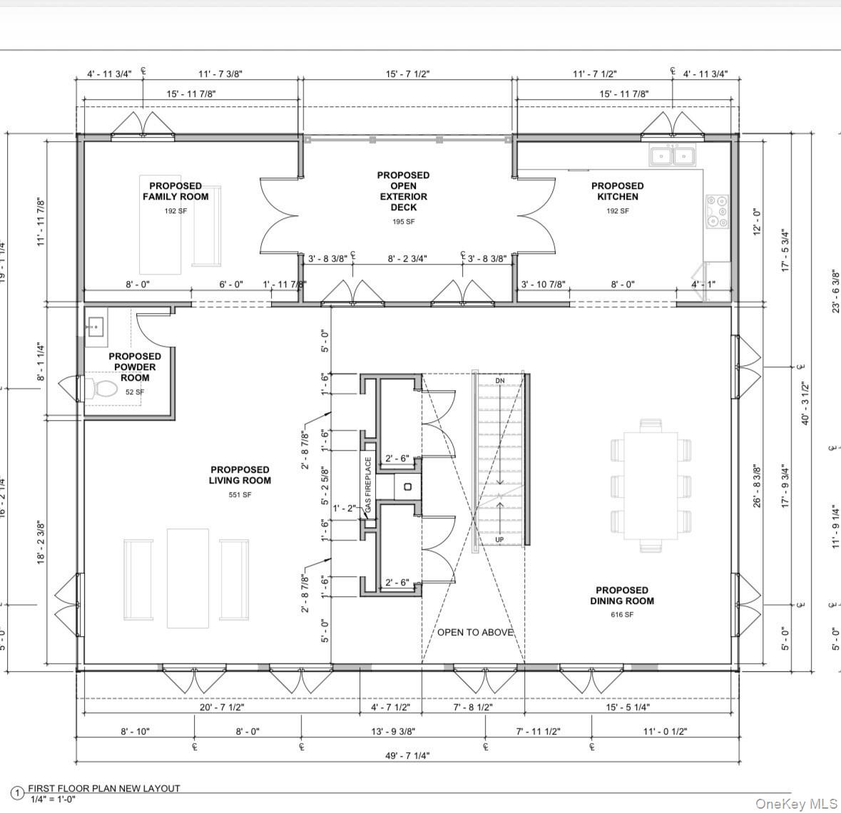
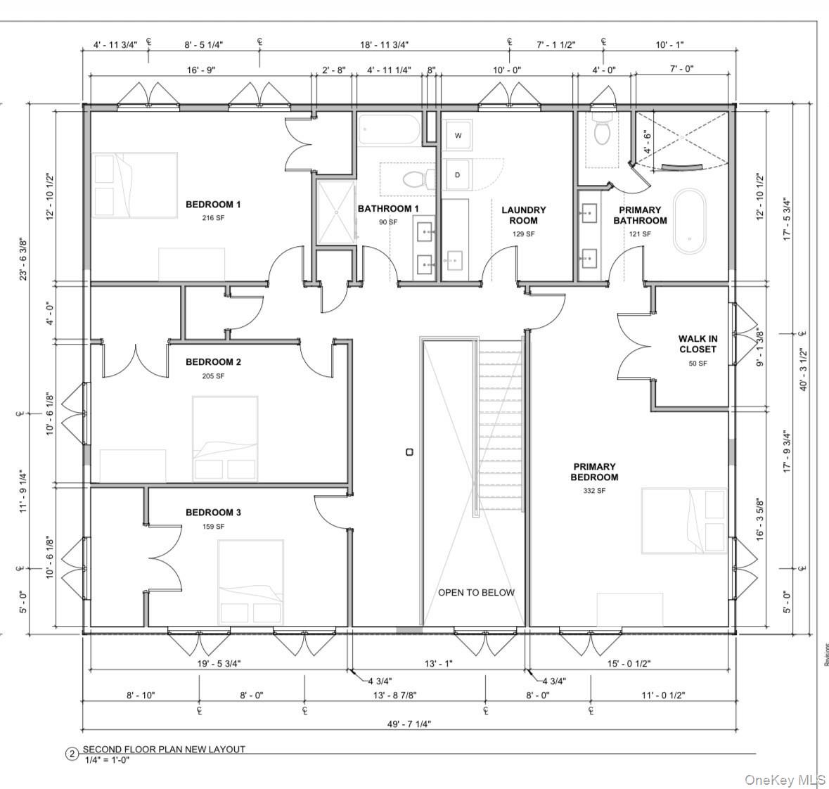
| 物件の詳細 | 4 寝室, 3 バスルーム, 1 ハーフバス, ガレージ, 外装: 3.89 エーカー, 内装: 3920 ft2, 364m2 (DOM): 10 days |
| 建築年 | 2026 |
| 税金(年間) | $5,554 |
![]() |
建設予定 – 8.01エーカーのカスタムホーム
約3,920平方フィートの提案された一戸建て住宅は、美しいラウンドレイクロード沿いの2つの合計8.01エーカーの区画に位置しています。エレガントな石のエントリーコラムと長く曲がりくねったドライブウェイを通ってアクセスできるこの物件は、プライバシーと印象的なアプローチを提供します。ラインベック村まで12分、レッドフック村まで11分、ラインクリフ駅まで15分(この土地に隣接する追加の区画も購入でき、8.01エーカーに3.046エーカーを加えることができます。MLS#927801を参照してください)。
提案されているデザインは、4つのベッドルーム、2~3のフルバスルーム、1つのハーフバスルームを備えたオープンフロアプランを特徴としており、現代的な快適さと柔軟性を提供します。プランは買い手の好みに合わせてカスタマイズ可能です。また、ご自身のデザインを持ち込むことも可能で、ビルダーはあなたのプランをレビューし、建設することにも応じています。
美しいハドソンバレーの環境にあなたの夢の家を作る希少な機会です。
To Be Built – Custom Home on 8.01 Acres
Proposed single-family home of approximately 3,920 sq. ft., situated on two combined lots totaling 8.01 acres along scenic Round Lake Road. Accessed through elegant stone entry columns and a long, winding driveway, this property offers both privacy and an impressive approach. 12 Minutes to Rhinebeck Village, 11 Minutes to Red Hook Village and 15 Minutes to the Rhinecliff Train Station (additional lot boarding this land can be purchased as well to add 3.046 acres to the 8.01, see MLS#927801)
The proposed design features an open floor plan with 4 bedrooms, 2–3 full baths, and 1 half bath, offering modern comfort and flexibility. Plans can be customized to suit the buyer’s preferences, or bring your own design — the builder is open to reviewing and building from your plans as well.
A rare opportunity to create your dream home in a beautiful Hudson Valley setting. © 2025 OneKey™ MLS, LLC







