| ID # | RLS20056349 |
| 物件の詳細 | 3 寝室, 3 バスルーム, 2 ハーフバス, 食器洗い機, 洗濯機, 乾燥機, 内装: 2648 ft2, 246m2 (DOM): 298 days |
| 建築年 | 1920 |
| 税金(年間) | $6,912 |
| バス | 1 分: B44 |
| 2 分: B49 | |
| 4 分: B44+ | |
| 5 分: B43 | |
| 7 分: B12 | |
| 10 分: B41 | |
| 地下鉄 | 3 分: 2, 5 |
| LIRR | 1.3 マイル: "Nostrand Avenue" |
| 2.1 マイル: "Atlantic Terminal" | |
![]() |
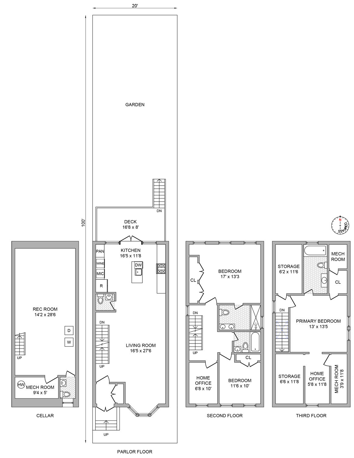
元々1910年に建設された287ミッドウッドストリートは、歴史的な魅力と現代的な贅沢を見事に融合させる形で注意深く改装されました。この特別な3階建ての一戸建て住宅は、3つの寝室、2つのホームオフィス、3つのフルバスルーム、そして2つのパウダールームを備え、高品質な仕上げと最新鋭のテクノロジーが施されています。
オリジナルの前ドアを通り抜けると、広さ20フィートの一階は、壮大なリビングルーム、パウダールーム、中央のダイニングエリアのための十分なスペースに魅了され、ヘリンボーンのオーク材の床が際立っています。奥には、アイランド、カスタムキャビネット、ダンビー製の大理石カウンタートップ、最高級の家電を備えたグルメキッチンが待ち受けています。料理愛好家には、6つのバーナーを持つウルフのストーブ、ボッシュ製の統合冷蔵庫、ボッシュ製の統合食器洗浄機、ワインクーラー、電子レンジドロワーが重宝されるでしょう。床の奥には全面ガラスの壁があり、アイペ木のデッキと広々とした芝生の裏庭へとつながっています。
2階には、後方に位置する主寝室があり、静かな裏庭を見渡し、深いクローゼットが2つあって十分な収納スペースを提供しています。主バスルームは聖域のようで、タイル張りの床、ダブルバニティ、ガラスで囲まれたスパのようなシャワーを備えています。前方には追加の寝室、柔軟なオフィススペース、セカンダリフルバスルームがあり、この階を完成させています。
最上階には、プライベートなエンスイートバスルームを備えた追加の寝室、用途の広いオフィススペース、広々とした3つの収納スペース、そして息を呑むような近隣の景色があります。
地下室には仕上げが施され、タイル張りの床、2つの窓があり、ハーフバスルームを含むため、プレイルームやメディアデンに最適です。この階には便利な洗濯機/乾燥機クローゼットも完備されています。
プロスペクト・レファーツ・ガーデンズの美しい並木道に佇むこの巧みに再構想されたタウンハウスは、地元の飲食店や緑豊かなプロスペクトパーク、いくつかの小さな公園に囲まれています。住民は、カミロ、ネームス、ジョンジョン、ハニーバジャーなどの著名な飲食店までわずか数分の距離です。公共交通機関には、2/5系統の地下鉄とB44/B49系統のバスが便利にアクセスできます。
Originally constructed in 1910, 287 Midwood Street has been meticulously transformed to seamlessly blend historic charm with modern luxury. This distinguished three-story single-family residence offers 3 bedrooms with 2 home offices, 3 full bathrooms, and 2 powder rooms, all complemented by high-end finishes and state-of-the-art technology.
As you enter through the original front doors, the expansive 20-foot wide first floor captivates with its ample space for a grand living room, powder room, and a central dining area, highlighted by herringbone oak wood floors. Toward the rear, a gourmet kitchen awaits, featuring an island, custom cabinetry, Danby marble countertops, and top-of-the-line appliances. Culinary enthusiasts will appreciate the six-burner Wolf stove, Bosch integrated refrigerator, integrated Bosch dishwasher, wine cooler, and microwave drawer. The back of the floor unveils a full glass wall, leading to an Ipe wood deck and sprawling backyard with grass.
On the second level, the primary bedroom, positioned at the back, overlooks the serene backyard and offers substantial storage with two deep closets. The primary bath is a sanctuary, featuring tiled floors, a double vanity, and a glass-enclosed spa-like shower. At the front, an additional bedroom, a flexible office space, and a secondary full bathroom complete this level.
The top floor features an additional bedroom with a private en suite bathroom, a versatile office space, three spacious storage spaces, and breathtaking neighborhood views.
Downstairs, the finished basement features tiled floors, two windows and includes a half bathroom, making it ideal for a playroom or media den. A convenient washer/dryer closet completes this level.
Nestled on a picturesque, tree-lined street in Prospect Lefferts Gardens, this masterfully reimagined townhouse is surrounded by local dining hotspots and the lush expanses of Prospect Park, along with several smaller parks. Residents are mere moments away from acclaimed dining establishments like Camillo, Names, DjonDjon, and Honey Badger. Convenient access to public transportation includes the 2/5 trains and B44/B49 buses.
This information is not verified for authenticity or accuracy and is not guaranteed and may not reflect all real estate activity in the market. © 2026 The Real Estate Board of New York, Inc., All rights reserved.







