| ID # | RLS20055965 |
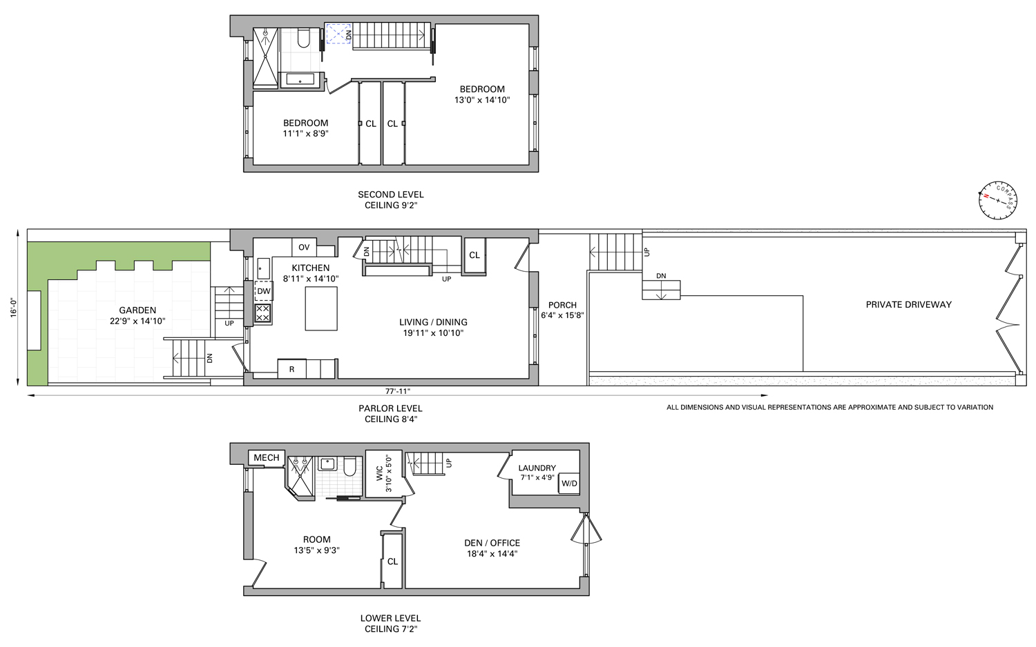
| 物件の詳細 | 3 寝室, 2 バスルーム, 食器洗い機, 洗濯機, 乾燥機, 内装: 1552 ft2, 144m2 (DOM): 17 days |
| 建築年 | 1955 |
| 税金(年間) | $6,060 |
| バス | 3 分: B24 |
| 5 分: Q54, Q59 | |
| 8 分: B43 | |
| 地下鉄 | 7 分: L |
| LIRR | 1.8 マイル: "Hunterspoint Avenue" |
| 2 マイル: "Long Island City" | |
![]() |
オープンハウス(要予約) - 日曜日 12時〜13時30分
ウィリアムズバーグの公園側にある建築家設計の家
ブルックリンのウィリアムズバーグでの洗練された現代的な生活へようこそ。137マスペス大道は、建築家オーナーによって隅々まで丁寧にリノベーションされた稀有な機会を提供します。3階にわたり、面積は1,552平方フィートで、この一戸建ては3つの寝室、2つのバスルーム、プライベートガーデンと駐車スペース2台分(電気自動車用充電器付き)を備えています。
1階: 公園の眺めが楽しめるモダンなリビング
入ると、広々とした窓がクーパー公園の穏やかな景色を切り取り、自然光で空間を満たしています。エレガントなオークのヘリンボーンの床が洗練された雰囲気を演出します。エントランスホールにはカスタム木工の壁ユニットと収納スペースがあり、アートやコレクションを展示するのに最適です。
家の中心には、1960年代のスカンジナビアの建築家のキッチンにインスパイアされた、Reformの美しいキッチンとセンターアイランドがあります。真の料理性能を考えられたこのキッチンには、深いコーナーの引き出し、器具収納、エコフレンドリーなコセントーノのシラストーンのカウンタートップが含まれています。プレミアム家電には、組み込み式のフィッシャー&パイケル冷蔵庫、ミーレの誘導調理器、キッチンエイドの壁掛けオーブン/レンジコンボ、ボッシュの食器洗い機があります。
ガーデン: アウトドアの聖域
大きなガラスのドアと固定パネルが、内装とプライベートガーデンとの間にシームレスなつながりを作り出します。これは、屋外での食事や夏の集まりに完璧な静かなアウトドアスペースです。横方向の木のプライバシーフェンスと成熟した木々に囲まれたこの庭には、メンテナンスが少ない楽しみのためのスチールデッキとコンクリートの舗装があります。ガーデンはローワーレベルからもアクセス可能です。
2階: 安らぎのリトリート
大胆な黄色の階段を上がると、2つの寝室とフルバスルームがあります。主寝室は元々2つの部屋が結合されたもので、家全体の幅を占めていて、公園の眺めを妨げるものはありません。2番目の寝室は庭に面しており、十分な収納スペースがあります。
ローワーレベル: 多目的で光に満ちた空間
柔軟で機能的なローワーレベルは、作業、創作、エンターテインメント、宿泊客のホスティングに最適なスペースを提供します。前面および背面のアクセスがあり、プライベートスイートやクリエイティブスタジオとして機能します。南向きの一面のガラスが豊富な光を取り入れ、もう一つの部屋は複数のクローゼットとフルバスルームを完備した快適なゲストスペースとなっています。磨かれたコンクリートの床と木製ビームの天井がこの適応可能なフロアに特徴を与えています。さらに、積層型の洗濯機と乾燥機を整然と収納する機械室があります。
バスルーム: スパのような仕上げ
両方のバスルームは、豪華なナスコストーンとタイル、デュラビットおよびコーラーの器具、モダンな洗面台、壁掛けトイレで仕上げられ、クリーンでスパのような雰囲気を演出しています。
リノベーションのハイライトと持続可能性
これは真のトップダウンのリノベーションであり、以下を含んでいます:
新しい構造ビーム(1階と2階)
すべて新しい配管、下水、暖房、電気、屋根、窓
カムテックによって新しく設置されたカノピーソーラーパネルは、相当な光熱費の節約を提供し、今後4年間のソーラー税控除があります。
ロケーション
クーパー公園の向かいに位置するこの家は、緑地、テニスコート、バスケットボール、バレーボール、スケートパーク、子供の遊び場からすぐの距離にあります。朝のジョギング、犬の散歩、またはアウトドアでのリラックスした午後を過ごすのに最適な場所です。これにより、ウィリアムズバーグの最も大切にされている隠れた宝物の一つとなっています。
ブルックリンで最も魅力的なエリアの一つにある、ユニークにデザインされた、即入居可能な建築家が手がけた家を所有するこの限られた機会をお見逃しなく。137マスペス大道へようこそ—洗練されたデザインと公園の側の生活が出会う場所です。
機械設備のハイライト
給湯器 - タンクレスリンナイスーパー高効率160,000 BTUガス
窓 - アンダーソンの開閉窓
窓のトリートメント - プレミアムライティングフィルタリングロール
Open House By Appointment - Sunday 12pm-1:30pm
Architect-Designed Parkside Home in Williamsburg
Welcome to elevated contemporary living in Williamsburg, Brooklyn. 137 Maspeth Ave is a rare opportunity to own a meticulously reimagined home, masterfully renovated from top to bottom by its architect-owner. Spread over three levels and measuring 1,552 square feet, this single family consists of three bedrooms, two bathrooms, a private garden and front yard with parking for two vehicles complete with electric car charger.
First Level: Modern Living with Park Views
Upon entry, you're greeted by oversized windows framing peaceful views of Cooper Park and bathing the space with natural light. Elegant oak herringbone floors set a sophisticated tone. A custom millwork wall unit and entry closet in the foyer offer both storage and display, ideal for showcasing art or collected objects.
At the heart of the home is a stunning kitchen and center island by Reform, inspired by Scandinavian architect kitchens of the 1960s and adapted for contemporary life. Designed for true culinary performance, the kitchen includes deep corner pullouts, utensil organizers, and eco-friendly Cosentino Silestone countertops. Premium appliances include a built-in Fisher & Paykel refrigerator, Miele induction cooktop, KitchenAid wall oven/microwave combo, and a Bosch dishwasher.
Garden: An Outdoor Sanctuary
An oversized glass door and fixed panel create a seamless connection between the interior and the private garden—a serene outdoor space perfect for alfresco dining or summer gatherings. Surrounded by a horizontal wood privacy fence and mature trees, the garden features steel decking and concrete pavers for low-maintenance enjoyment. The garden is also accessible from the Lower Level.
Second Level: Restful Retreats
Ascend the bold yellow staircase to find two bedrooms and a full bath. The primary bedroom, originally two rooms combined, spans the entire width of the home and offers unobstructed park views. A second bedroom faces the garden and includes generous storage.
Lower Level: Versatile and Light-Filled
Flexible and functional, the Lower Level offers space to work, create, entertain, or host overnight guests. With front and rear access, it functions as a private suite or creative studio. A wall of south-facing glass brings in abundant light, while a second room provides a comfortable guest space complete with multiple closets and a full bath. Polished concrete floors and wood-beamed ceilings enhance the character of this adaptable level. Plus, a mechanical room that neatly conceals a stacked washer and dryer.
Bathrooms: Spa-Like Finishes
Both bathrooms are finished in luxurious Nasco stone and tile with Duravit and Kohler fixtures, modern vanities, and wall-mounted toilets, creating a clean, spa-like atmosphere.
Renovation Highlights & Sustainability
This is a true top-down renovation, including:
New structural beams (first and second floors)
All new plumbing, sewer, heating, electrical, roof, and windows
Newly installed Canopy solar panels by Kamtech, offering substantial utility savings and a Solar Tax Abatement for the next four years
Location
Set directly across from Cooper Park, this home places you steps from green space, tennis courts, basketball, volleyball, a skate park, and children’s playground. It's the perfect spot for morning jogs, dog walks, or relaxing afternoons outdoors—making this one of Williamsburg’s most treasured hidden gems.
Don’t miss this limited opportunity to own a uniquely designed, move-in ready, architect-crafted home in one of Brooklyn’s most desirable neighborhoods. Welcome to 137 Maspeth Avenue—where elevated design meets parkside living.
Mechanical Highlights
Water Heater - Tankless Rinnai Super High Efficiency 160,000 BTU Gas
Windows - Anderson casement
Window treatments - Premium Light Filtering Rolle
This information is not verified for authenticity or accuracy and is not guaranteed and may not reflect all real estate activity in the market. ©2025 The Real Estate Board of New York, Inc., All rights reserved.







