| ID # | RLS20080407 |
| 物件の詳細 | 5 寝室, 5 バスルーム, 2 ハーフバス, 洗濯機, 乾燥機, 内装: 11000 ft2, 1022m2 (DOM): 1 days |
| 建築年 | 2001 |
| 管理費 | $47,263 |
| 税金(年間) | $261,852 |
| 地下鉄 | 7 分: 1 |
| 10 分: A, C, E, B, D, F, M | |
![]() |
非常に限られた見学のみのご案内
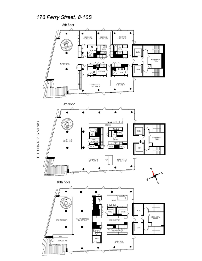
176ペリー・ストリートは、国際的に評価されている建築家リチャード・マイヤーによって設計されたモダニストの傑作です。この壮観なトリプレックスアパートメントは、8階、9階、10階を含み、11,000平方フィート以上のリビングスペースがあります。
この住居の際立ったミニマリストデザインは、マンハッタンで最もドラマティックなアパートの一つにしています。
8階にはハドソン川を見渡す広大なレクリエーションルームや4つの寝室(専用バス付き)、ライブラリー/ゲスト寝室(半バス付き)があります。
9階には、ハドソン川を見渡す窓の壁を持つ劇的な51フィート×26フィートのダブルハイトのグレートルームがあります。この階にはデンとラウンジエリア、エタノール製の暖炉、プロフェッショナルグルメキッチン、ダイニングルーム/ギャラリーもあります。
10階全体はプライマリーベッドルームスイート、スタジオ/エクササイズエリア、豪華なスパバス、サウナ、ドレッシングエリアで構成されています。各階にはテラスがあり、渦巻く階段でつながっています—それ自体がアート作品であり、実に美しいです!!
176ペリー・ストリートは、最新のフィットネスセンター、常駐のドアマン、コンシェルジュを備えたフルサービスのコンドミニアムです。ダイニングサービスは、建物内に便利に位置するジャン=ジョルジュ・ヴォンゲリヒテンのペリー・ストリート・レストランによって提供できます。176ペリーは、ウエストビレッジの中心にある石畳の通りに位置し、ハドソン川公園や自転車道、ハイラインパーク、リトルアイランド、ミートパッキング・ディストリクト、ホイットニーミュージアム、ブリーカー・ストリート、および市内の最高のショッピングやレストランの一部の向かいに便利にあります。評価額:月額6,208.33ドル(地方法11および窓洗浄装置)。譲渡手数料(フリップ税):購入価格の1.5%が買主によって支払われます。
見学は限られており、1週間前の通知が必要です。
VERY LIMITED SHOWINGS AT THIS TIME
176 Perry Street is a modernist masterpiece designed by internationally acclaimed architect Richard Meier. This spectacular triplex apartment comprises the 8th, 9th and 10th Floors and over 11,000 square feet of living space.
The residence's striking minimalist design makes it one of the most dramatic apartments in Manhattan.
The 8th floor features a huge recreation room with terrace overlooking the Hudson, 4 bedrooms with ensuite baths and a library/guest bedroom with half bath.
The 9th floor features a dramatic 51' x 26' double height great room with walls of windows overlooking the Hudson River. This floor also has a den and lounge area, ethanol fireplace, professional gourmet kitchen and dining room/gallery.
The entire 10th floor consists of the primary bedroom suite, a studio/exercise area, luxurious spa bath, sauna and dressing areas. Each floor has a terrace and is connected by a swirling staircase - a work of art in its own right and it's truly breathtaking!!
176 Perry Street is a full-service condominium with a state-of-the-art fitness center, full-time doorman, and concierge. Dining service can be provided by Jean-Georges Vongerichten's Perry Street Restaurant, conveniently located inside the building. 176 Perry is situated on a cobblestone street in the heart of the West Village and is conveniently located across from The Hudson River Park and bike paths, to The Highline Park, Little Island, Meatpacking District, the Whitney Museum, Bleecker Street, and some of the City's best shopping and restaurants. Assessments: $6,208.33 per month (Local Law 11 and window washing rig). Transfer fee (flip tax): 1.5% of the purchase price payable by the Buyer.
Showings Are Limited and REQUIRE a week's notice
This information is not verified for authenticity or accuracy and is not guaranteed and may not reflect all real estate activity in the market. © 2026 The Real Estate Board of New York, Inc., All rights reserved.







