| ID # | RLS20080511 |
| 物件の詳細 | 3 寝室, 3 バスルーム, 2 ハーフバス, 洗濯機, 乾燥機, ガレージ, 内装: 3300 ft2, 307m2 (DOM): 29 days |
| 税金(年間) | $11,196 |
| バス | 0 分: B52 |
| 1 分: B48 | |
| 2 分: B38 | |
| 6 分: B26, B44, B44+ | |
| 7 分: B25 | |
| 9 分: B54, B69 | |
| 10 分: B45, B49 | |
| 地下鉄 | 2 分: G |
| 8 分: C | |
| 10 分: S | |
| LIRR | 0.9 マイル: "Atlantic Terminal" |
| 0.9 マイル: "Nostrand Avenue" | |
![]() |
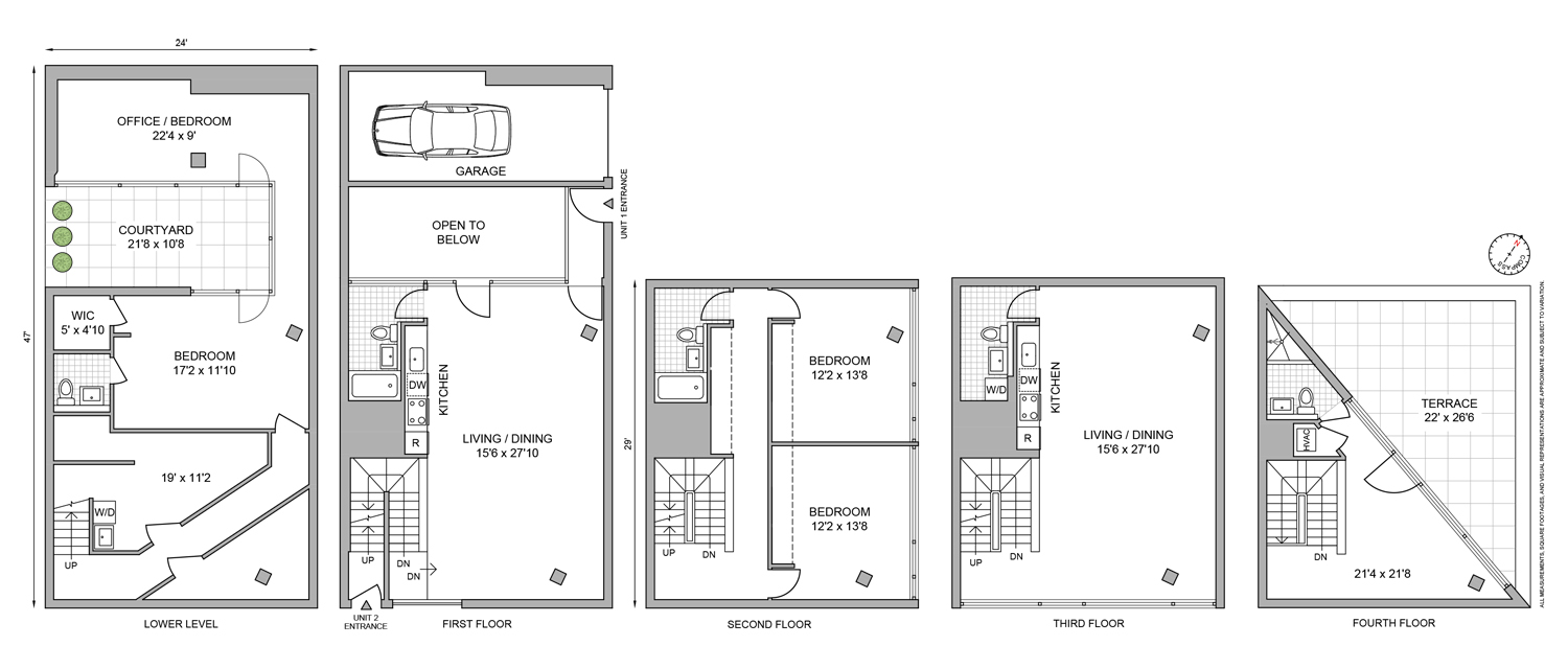
新しいタウンハウスがプライムクリントンヒルに駐車場付きで登場します。この魅力的な5階建ての2ファミリータウンハウス+ガレージは、著名なスイスの建築家イネス・ラムニエールによって設計され、3300平方フィート以上の現代的な居住空間を提供し、クラスン通りとグリーン通りのダイナミックな街並みと美しく調和しています。上のトリプレックスで生活し、下のデュプレックスを賃貸することで収入を得ることも、家全体を1ファミリーとして住むことも可能です。
このユニークな住宅は、各階に広がる大きな窓を備えた印象的な真っ白なスタッコファサードが特徴で、自然光をミニマリストのインテリアに招き入れます。コンクリートの床と階段は洗練された白いエポキシ仕上げで、白い石膏壁と天井までの大きな窓がデザインされ、新鮮なギャラリーのようなスペースを生み出しています。
1900平方フィートの上部トリプレックスユニットは、クラスン通り側の入り口を持ち、3つの寝室と3つのバスルームがあります。1階にはグリーン通りの景色を望む2つの寝室とフルバスがあります。次の階には、クラスン通りの都市景観をフレームする窓の壁を備えた広々としたリビングエリア、ミニマリストのキッチン、ハーフバス、洗濯機/乾燥機があります。最上階には、彫刻的でユニークな三角形の寝室とフルバスがあり、プライベートな屋上テラスへとつながっています。
1400平方フィートの下部デュプレックスユニットは、グリーン通りからアクセス可能で、自身のプライベートコートヤードを持つ穏やかな隠れ家です。この2ベッドルーム、2.5バスユニットは、コートヤードを見渡す28フィート×15フィートのリビングエリア、洗練されたキッチン、フルバスを備えています。下の階には天井から床までの窓があり、寝室やホームスタジオ/オフィスに最適な多目的スペースを提供し、ウォークインクローゼット、ハーフバス、洗濯機/乾燥機を完備しています。
このエネルギー効率の高いタウンハウスは、中央空調と暖房が備わったオール電気のスプリットシステムを採用しています。三重ガラスの窓は効率を高め、優れた音の吸収を実現します。グリーン通り入り口に隣接するガレージは便利な駐車場または追加のストレージを提供します。2つのユニットを組み合わせることで、スペーシャスな単独ファミリー住宅を作ることができ、ニーズに応じた柔軟性を提供します。
272グリーン通りでは、現代的なデザインと都市生活の完璧な融合を発見し、すべての要素が卓越した居住体験を提供するように配慮されています。
272グリーン通りは、クリントンヒルの魅力的な樹木が並ぶ交差点の角に位置しています。このタウンハウスは、トレンディなレストラン、カフェ、バー、ショップ、プラット研究所に囲まれており、GとCの地下鉄路線は数ブロック先です。この素晴らしい21世紀のブルックリンのブラウンストーンを最初に手に入れましょう。
Brand New townhouse in Prime Clinton Hill with parking. This stunning 5-story, 2-family townhouse + garage, designed by the acclaimed Swiss architect Inès Lamunière, offers over 3,300 square feet of modern living space, beautifully integrating with the dynamic streetscape of Classon and Greene Avenues. Live in the upper triplex and rent out the lower duplex for income, or live in the whole house as a 1-family.
This unique residence has a striking all-white stucco facade featuring expansive windows spanning across each floor, inviting natural light into the minimalist interiors. The home is designed with concrete floors and stairs finished in sleek white epoxy, complemented by white plaster walls and floor-to-ceiling windows, creating fresh gallery-like spaces.
The 1900sf upper triplex unit, with its entrance on Classon Avenue, comprises 3 bedrooms and 3 baths. The first level features two bedrooms with views over Greene Avenue and a full bath. The next floor offers a large living area with a wall of windows framing the cityscape of Classon Avenue, a minimalist kitchen, half bath, and washer/dryer. The top floor presents a sculptural and unique triangular bedroom and full bath, leading to a private rooftop terrace.
The 1400sf lower duplex unit, accessible from Greene Avenue, offers a serene retreat with its own private courtyard. This 2-bedroom, 2.5-bath unit features a 28’ x 15’ living area with a streamlined kitchen and a full bathroom, all overlooking the courtyard. The lower level, with its floor-to-ceiling windows, provides versatile spaces perfect for sleeping or a home studio/office, complete with a walk-in closet, half bath, and washer/dryer.
This energy efficient townhouse has an all-electric split system with central air and heat. Triple glazed windows enhance the efficiency and add excellent sound reduction. The garage adjacent to the Greene Avenue entrance provides convenient parking or additional storage. The two units can be combined to create a spacious single-family home, offering versatility to meet your needs.
Discover the perfect blend of modern design and urban living at 272 Greene Avenue, where every element has been thoughtfully crafted to offer an exceptional living experience.
272 Greene Avenue anchors a corner position on a charming tree-lined intersection in Clinton Hill. The townhouse is surrounded by trendy restaurants, cafes, bars, shops, Pratt Institute and the G and C subway lines are a few blocks away. Be the first to own this stunning 21st century addition to brownstone Brooklyn.
This information is not verified for authenticity or accuracy and is not guaranteed and may not reflect all real estate activity in the market. © 2026 The Real Estate Board of New York, Inc., All rights reserved.







