| ID # | 860355 |
| 建築年 | 1960 |
| 税金(年間) | $32,000 |
| 燃料の種類 | オイル暖房 Oil |
| 地下室 | 部分地下室 Partial |
![]() |
重要な物件情報:
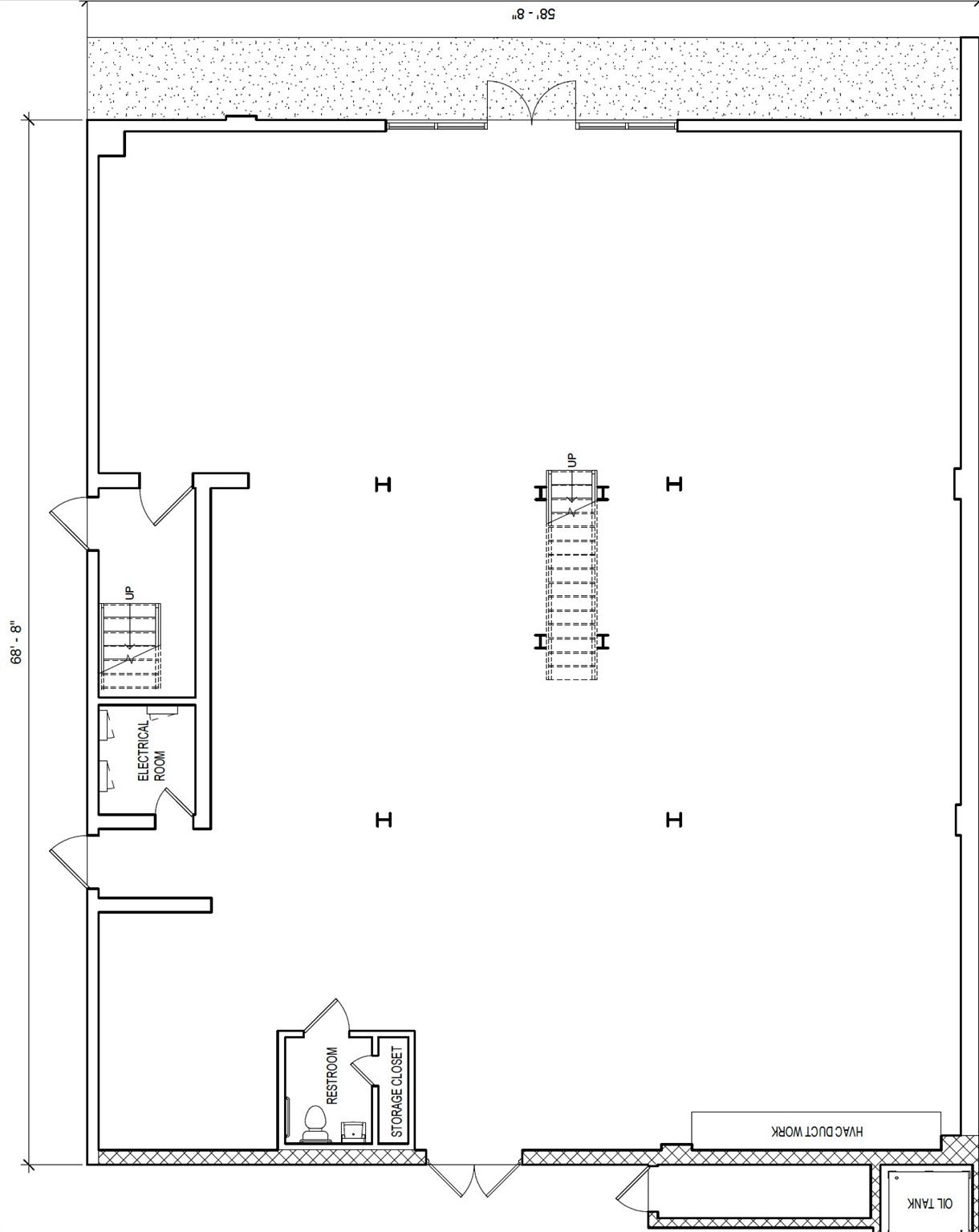
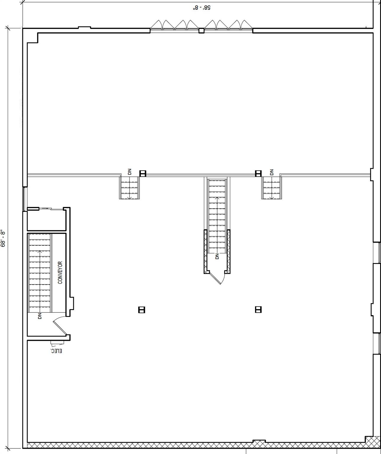
8,620平方フィートの独立型ビル
前面および裏面に駐車場あり
主要な交通量の多い場所に位置
75フィートのポストロードに面したゾーニング
ビジネス・レジデンシャル(B-R)
電車と町へのアクセスが便利
KEY PROPERTY INFORMATION:
8,620SF Freestanding Building
Front and Rear Onsite Parking
Located in Prime high traffic count
75 Foot Post Road frontage Zoning
Business Residential(B-R)
Convenient to Train and Town © 2025 OneKey™ MLS, LLC







