| MLS # | 894961 |
| 建築年 | 1962 |
| 税金(年間) | $57,326 |
| 燃料の種類 | 天然ガス Gas |
| 暖房タイプ | 温風 Hot air |
| エアコン | セントラルエアコン Central Air |
| 地下室 | なし None |
| バス | 2 分: B57 |
| 4 分: B38, Q54, Q59 | |
| 5 分: Q39 | |
| LIRR | 2.1 マイル: "Woodside" |
| 2.5 マイル: "Hunterspoint Avenue" | |
![]() |
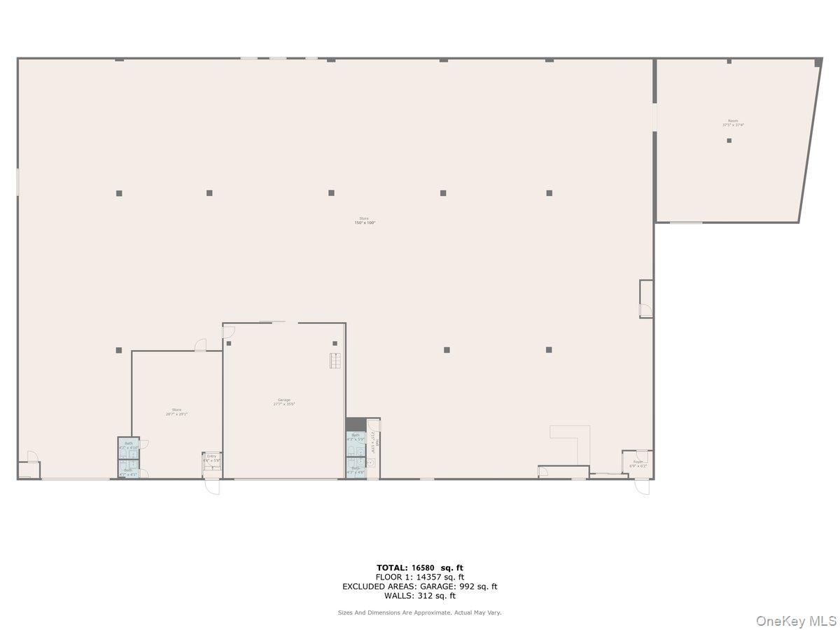
マスペスにライト製造業を戻そう!この優れたマスペスの工業機会を利用して、新しく可決された「アメリカ製」連邦税優遇措置を活用しましょう。M1-1ゾーニングで16,000平方フィート以上にわたるこの物件は、完璧に維持されており、すぐに使用できます。特徴としては、5ゾーン100トンのセントラルエアコン、2000アンペアの3相電力、2台のトラックに対応するオーバーヘッドドア付きの荷積みドック、さらに2,000平方フィートの囲まれた駐車場に隣接するオーバーヘッドドアが室内駐車の選択肢を提供します。主要高速道路や複数の公共交通ルートの近くに位置しており、この税優遇措置付きの購入は、マスペスのベストな機会の一つに投資する希少なチャンスを提供します。
Bring Light Manufacturing Back to Maspeth! Take advantage of the newly passed “Made in the USA” FEDERAL TAX INCENTIVES” with this exceptional Maspeth industrial opportunity. Zoned M1-1 and spanning OVER 16,000 square feet, this property has been impeccably maintained and is ready for immediate use. Features include 5 ZONE 100 TONS, central air conditioning, 3-phase power with 2000 amps, a loading dock with overhead doors accommodating two trucks, plus an additional overhead door adjacent to the 2,000-square-foot fenced parking lot provides indoor parking options. Ideally located near major highways and multiple public transportation routes, this tax-incentivized purchase presents a rare chance to invest in one of Maspeth’s best opportunities. © 2025 OneKey™ MLS, LLC







