| ID # | RLS20047161 |
| 物件の詳細 | 3 寝室, 2 バスルーム, 1 ハーフバス, 食器洗い機, 内装: 2466 ft2, 229m2 (DOM): 100 days |
| 建築年 | 1910 |
| 税金(年間) | $26,244 |
| 地下鉄 | 2 分: 1 |
| 4 分: A, C, E, B, D, F, M | |
| 9 分: 2, 3 | |
| 10 分: L | |
![]() |
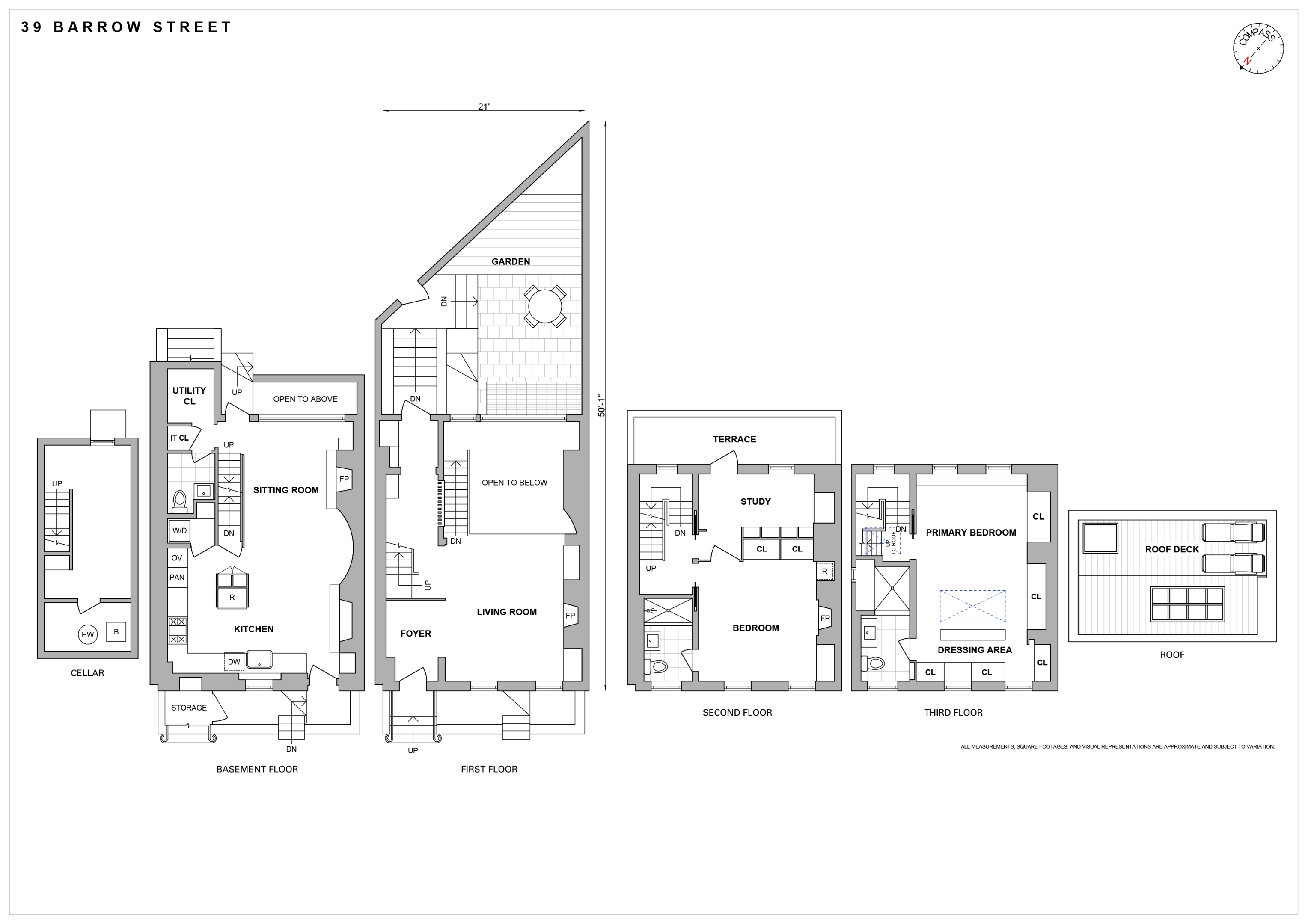
ウェストビレッジの中心にあるアーキテクトによって改装された連邦様式のタウンハウス
歴史的なウェストビレッジのブロックにあるクラシックなレンガのファサードの後ろにひっそりと佇む39バーローストリートは、洗練されたデザイン、意義ある歴史、そして現代の生活に適した卓越した間取りを兼ね備えた、稀なアーキテクト改装の連邦様式タウンハウスです。
元々1826年に建てられ、建築家リード・A・モリソンによって丁寧に再設計されたこの家は、4階建てで約2,466平方フィート、2つの寝室、フルフロアのオフィスまたはゲストスイート、2.5のバスルームを持っています。最近のアップグレードには、フルリヤルファサードとストープの修復、新しいボイラー、温水貯蔵タンク、完全に取り替えられたHVACシステム、新しい洗濯機と乾燥機、新しい食洗機が含まれます。
パーラー階は、木製の暖炉と、リビングルームに劇的な光をもたらすオーバーサイズの窓によって支えられています。天井高は11フィート以上です。ダイニングエリアは、最上級の家電を備えたシェフのキッチンへと流れ込み、Gaggenauのレンジとウォールオーブン、追加のGaggenauオーブン、Subzero冷蔵庫、Bosch食洗機、Dornbrachtの器具があります。家のもう一つの入口は、プライベートな裏庭を通じてアクセス可能で、そこは直接セヴンスアベニューにつながっています。
ガーデンレベルには、もう一つのリビングスペースがあり、別の木製の暖炉と整備された屋外庭園へのアクセスがあります — 蔦に覆われた聖域で、娯楽、食事、植物を植えるスペースがあります。
上階の3階は、カスタム造作が施されたフルフロアのオフィスまたはメディアルームとして配置され、Sub-Zero冷蔵庫、追加の木製暖炉、スイートバス、近隣の屋根を見渡すテラスを備えています。最上階はプライマリースイートに割り当てられ、天窓、大きなクローゼット、デュアルバスがあります。
建築的に重要で文化的に象徴的な39バーローの裏ファサードは、ザ・ニューヨーカーの表紙に取り上げられました。19世紀初頭の家々の残り少ない列の一部であり、この物件はウェストビレッジの建築的な布の中で際立った存在であり、この地域で最高のレストラン、ショップ、文化的機関からすぐの場所にあります。
An Architect-Renovated Federal-Style Townhouse in the Heart of the West Village
Tucked behind a classic brick façade on a landmarked West Village block, 39 Barrow Street is a rare, architect-renovated Federal-style townhouse offering refined design, meaningful history, and an exceptional layout for modern living.
Originally built in 1826 and thoughtfully redesigned by architect Reed A. Morrison, the home spans four stories and approximately 2,466 square feet, with two bedrooms, a full-floor office or guest suite, and two-and-a-half baths. Recent upgrades include a full rear façade and stoop restoration, a new boiler, hot water storage tank, an entirely replaced HVAC system, new washer/dryer, and new dishwasher.
The parlor floor is anchored by a wood-burning fireplace and oversized casement windows that bring dramatic light into the living room, with ceiling heights over 11 feet. The dining area flows into a chef’s kitchen equipped with top-of-the-line appliances including a Gaggenau range and wall oven, an additional Gaggenau oven, Subzero refrigerator, Bosch dishwasher, and Dornbracht fixtures. A second entrance to the home is accessible through the private rear garden, which opens directly onto Seventh Avenue.
The garden level offers a second living space with another wood-burning fireplace and access to the landscaped outdoor garden — an ivy-draped sanctuary with space for entertaining, dining, and planting.
Upstairs, the third floor is configured as a full-floor office or media room with custom millwork, Sub-Zero refrigerator, and additional wood burning fireplace, an en-suite bath, and a terrace overlooking the neighborhood rooftops. The top floor is dedicated to the primary suite, featuring a skylight, generous closets, and dual baths.
Architecturally significant and culturally iconic, the rear façade of 39 Barrow was featured on the cover of The New Yorker. Part of a rare surviving row of early 19th-century homes, the property is a distinguished part of the West Village’s architectural fabric — moments from the area’s best restaurants, shops, and cultural institutions.
This information is not verified for authenticity or accuracy and is not guaranteed and may not reflect all real estate activity in the market. ©2025 The Real Estate Board of New York, Inc., All rights reserved.







