| ID # | RLS20052230 |
| 物件の詳細 | 5 寝室, 3 バスルーム, 内装: 3500 ft2, 325m2 (DOM): 187 days |
| 建築年 | 1882 |
| 税金(年間) | $10,248 |
| バス | 1 分: B61, B67, B69 |
| 7 分: B63 | |
| 8 分: B68 | |
| 10 分: B103 | |
| 地下鉄 | 1 分: F, G |
| 10 分: R | |
| LIRR | 1.2 マイル: "Atlantic Terminal" |
| 1.9 マイル: "Nostrand Avenue" | |
![]() |
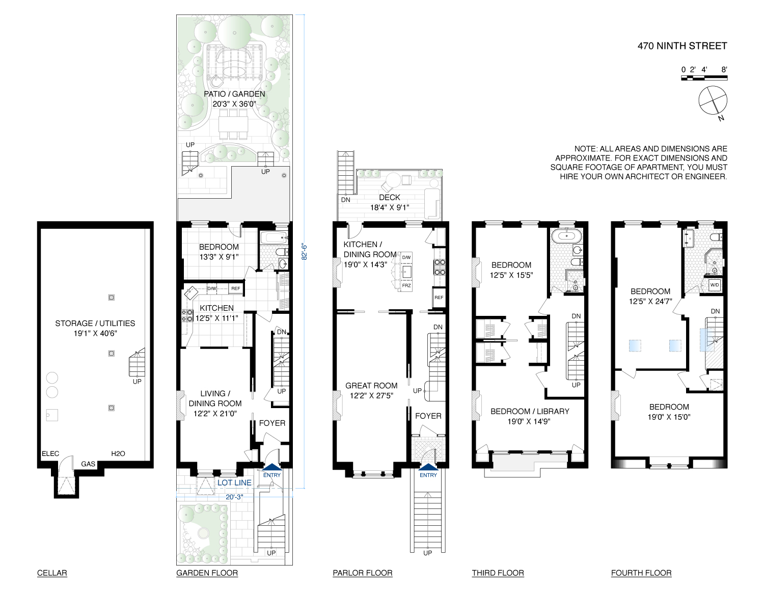
1882年に建てられた470 9番街は、プロスペクトパークの近くにある、幅20フィートの美しく改装されたレンガとブラウンストーンのタウンハウスです。この二世帯住宅は、広々とした4ベッドルームのトリプルックスと、フロアスルーのガーデンアパートメントで構成されており、簡単に単一家族用として使用することもできます。
この歴史的な家は、パークスロープの最も古く美しいクイーンアン様式のタウンハウスの一つであり、このスタイルの特徴をすべて示しています:ロマネスクアーチ、形や形状の質量、異なるサイズの窓、ログジア、装飾的な鋳鉄やプレス金属、テラコッタ、ステンドグラスなどです。多様な屋根ライン、ドーマー、オリエル、フード付きの窓枠は魅力的です。
多くのパークスロープのブラウンストーンとは異なり、470 9番街は分割されて複数の住居ユニットにされることはなかったため、オリジナルの詳細が豊富に残っています。これには6つの暖炉のマントル、精巧な木工、見事なステンドグラスの窓、クラウンモールディング、パーケットフロア、美しい階段などが含まれます。現在の所有者は、シームレスな改装を行う際にこれらの歴史的な詳細を保つために大変な努力をしました。
470 9番街に帰ると、高い玄関の階段を上り、木製のパネルで装飾されたロビーを通り抜け、天井が10フィート以上の高さにそびえるパーラー階に到着します。エレガントな空間の流れは、部屋のオリジナルの歴史的な詳細と見事に融合した完全装備のシェフのキッチンへと導きます。ダイニングエリアは、裏庭の上の高い位置にある日当たりの良い南向きのデッキへと続きます。階段を下ると、ブルックリンの喧騒からの静かで緑豊かな避難所に到着します。そこはリラックスしたり、エンターテインメントを楽しんだり、日常生活を楽しんだりするのに完全な場所です。上階には4つの広々とした日当たりの良いベッドルーム、2つの広い窓付きバスルーム、様々なオリジナルの詳細が見つかります。3階の前面ベッドルームは、広いアーチ型のログジアを通して物語のような景色を楽しむことができ、すべてのオリジナルの鉄細工とタイルが完備されています。
下階のガーデンアパートメントは、前庭と主階段から独自のアクセスを持ち、高収入の賃貸物件、ゲストスイート、ホームオフィス、または家のシームレスな拡張としてそのまま利用可能です。地下室には、更新された機械設備とたくさんの収納スペースがあります。
470 9番街はパークスロープの中心に位置しており、この素晴らしい街を有名にしたレストラン、ブティック、アメニティの近くにあります。プロスペクトパークはほぼ玄関先で、F線とG線の電車は半ブロック以内で、マンハッタンや他の地域への短い通勤が可能です。この歴史的な宝石を見に来て、ブルックリンの次の章の背景にしてください。
Built in 1882, 470 9th Street is a beautifully renovated 20-foot wide brick and brownstone townhouse on an extra wide, treelined street close to Prospect Park. This two-family home is configured with a spacious 4-bedroom triplex over a floor-through garden apartment, and could easily be used as a single-family.
This historic home is one of Park Slope’s earliest and most beautiful Queen Anne townhouses and displays all the hallmarks of the style: the Romanesque arches, the massing of shapes and forms, as well as the use of different sized windows, loggias, ornamental cast iron and pressed metal, and terra-cotta and stained glass. The varying rooflines, dormers, oriels and hooded window frames are delightful.
Unlike many Park Slope brownstones, 470 9th Street was never carved up into multiple dwelling units, so original details abound, including six fireplace mantles, exquisite woodwork, stunning stained glass windows, crown moldings, parquet floors, a gorgeous staircase, and much more. The current owners went to great lengths to preserve these historic details while completing a seamless renovation.
Coming home to 470 9th Street you’ll ascend a tall stoop, pass through a wood paneled foyer and arrive at the parlor floor, where the ceilings soar over 10-feet high. An elegant procession of spaces leads to a fully equipped chef’s kitchen skillfully melded with the room’s original historic details. The dining area steps out to a sun-drenched south-facing deck perched high over the backyard. Steps lead down to this tranquil and verdant refuge from the bustle of Brooklyn, which is a perfect place to relax, entertain, and enjoy everyday life. Upstairs you’ll find four large sunny bedrooms, two spacious windowed bathrooms, and an array of original details. The third floor front bedroom features a story-book view through a wide-arched loggia, complete with all its original ironwork and tiles.
Downstairs the garden apartment features its own access from the front garden and from the main stair, and is turn-key as a high-income rental, guest suite, home office, or as a seamless extension of the house. The cellar is equipped with updated mechanicals and lots of storage space.
470 9th Street sits in the heart of Park Slope, and is close to the restaurants, boutiques, and amenities that have made this great neighborhood famous. Prospect Park is practically at your doorstep, and the F & G trains are less than half a block away for a short commute to Manhattan and the rest of the city. Come see this historic gem and make it the backdrop for your next chapter in Brooklyn.
This information is not verified for authenticity or accuracy and is not guaranteed and may not reflect all real estate activity in the market. ©2025 The Real Estate Board of New York, Inc., All rights reserved.







