| ID # | RLS20046161 |
| 物件の詳細 | 4 寝室, 4 バスルーム, 2 ハーフバス, 食器洗い機, 洗濯機, 乾燥機, 内装: 2794 ft2, 260m2 (DOM): 253 days |
| 建築年 | 1901 |
| 税金(年間) | $6,084 |
| バス | 1 分: B54 |
| 4 分: B38, B62, B69 | |
| 6 分: B48 | |
| 7 分: B57 | |
| 8 分: B52 | |
| 地下鉄 | 6 分: G |
| LIRR | 0.8 マイル: "Atlantic Terminal" |
| 1.4 マイル: "Nostrand Avenue" | |
![]() |
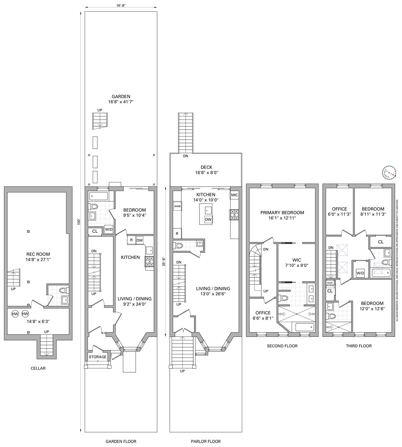
174ホールストリートへようこそ。1901年に建てられたこのツーファミリーのクリントンヒルタウンハウスは、歴史的な魅力と現代的な多用途性を絶妙に融合させています。ガーデンフロアには収益を生む1ベッドルームの賃貸物件があり、その上にはオーナー用の3ベッドルームと2つのオフィスを備えたトリプレックスが配置されています。この住宅は、ブルックリンでも最も望ましい地域の1つで、快適さと機会を提供します。
クラシックな玄関ホールがパーラー階へと続いており、高い天井、ヘリングボーンのホワイトオークの床、豊富な自然光が家の中心を照らしています。後方には、シェフのキッチンがあります。大きなアイランド、広々としたカスタムキャビネット、カウンタートップを備えたこのスペースは、パネル付きのボッシュ製冷蔵庫や食器洗い機、ポットフィラー付きの6バーナーのウルフレンジ、マイクロ波ドロワー、ワインフрижを含むプレミアム家電セットで完成されています。全面ガラスドアは広々としたデッキに開き、静かな庭を見ながら屋外での食事に最適です。
2階の庭向きの主寝室には、広々としたウォークスルークローゼットとダブルバニティ、ボストン・カメレオンタイルで囲まれたガラス製のシャワーと浸かることのできるバスタブを備えた贅沢な専用バスルームが付いています。この階には、プライベートスタディやナーサリー、静かな隠れ家として理想的な別のオフィスがあります。
最上階には、2つのベッドルーム、2つのフルバスルーム、追加のオフィス、便利な洗濯機/乾燥機が設置されています。3つのスカイライトがこの階に光を注ぎ、明るく風通しの良い部屋を一日中提供しています。
仕上げられた地下室は、オーナーユニットから直接アクセスできることができ、大きな娯楽室と十分な収納スペースを提供しており、プレイルーム、フィットネススペース、またはメディアルームとして理想的です。
ガーデンフロアには、フルバスとユニット内の洗濯機/乾燥機を備えた別の1ベッドルームのアパートがあります。裏庭への直接アクセスがあるこのユニットは、優れた収入の可能性を提供し、簡単にインロー用スイートとしても利用できます。
樹木に囲まれたホールストリートに位置するこのタウンハウスは、ペックズ、ルラ・メイ、エヴェリナ、セーラー、ディーノなど、クリントンヒルの最高の場所に囲まれています。文化的名所や葉の茂った公園へのアクセスも容易で、174ホールストリートは、収益の可能性と卓越した住みやすさを兼ね備えた完全に改装されたタウンハウスを所有する希少な機会です。
Welcome to 174 Hall Street, a two-family Clinton Hill townhouse built in 1901 that seamlessly balances historic charm with modern versatility. Configured with an income-producing one-bedroom rental on the garden floor and an owner’s three-bedroom plus two-office triplex above, this residence offers both comfort and opportunity in one of Brooklyn’s most desirable neighborhoods.
A classic vestibule entry opens into the parlor level, where tall ceilings, herringbone white oak floors, and abundant natural light highlight the heart of the home. At the rear, the chef’s kitchen is a true showpiece. Designed with a large island, generous custom cabinetry, and countertops, the space is completed with a premium appliance suite, including a paneled Bosch refrigerator and dishwasher, a six-burner Wolfe range with a pot filler, a microwave drawer, and a wine fridge. Full-glass doors open onto a spacious deck, perfect for dining al fresco while overlooking the tranquil garden below.
The second floor’s garden-facing primary bedroom is complemented by a spacious walk-through closet and a luxurious en-suite bathroom with a double vanity and a glass-enclosed shower and soaking tub wrapped in Boston Chameleon tile. A separate office completes this level, ideal for a private study, nursery, or quiet retreat.
The top floor hosts two bedrooms, two full bathrooms, an additional office, and a washer/dryer for added convenience. Three skylights flood the floor with light, creating bright and airy rooms throughout the day.
The finished cellar, accessible directly from the owner’s unit, provides a large recreation room and ample space for storage, making it ideal as a playroom, fitness space, or media room.
The garden level features a separate one-bedroom apartment with a full bath and in-unit washer/dryer. With direct access to the rear garden, this unit offers excellent income potential or can easily serve as an in-law suite.
Located on tree-lined Hall Street, this townhouse is surrounded by the best of Clinton Hill, including Peck’s, Lula Mae, Evelina, Sailor, and Dino. With easy access to cultural landmarks and leafy parks, 174 Hall Street is a rare opportunity to own a fully-renovated townhouse with income potential and exceptional livability.
This information is not verified for authenticity or accuracy and is not guaranteed and may not reflect all real estate activity in the market. © 2026 The Real Estate Board of New York, Inc., All rights reserved.







