| ID # | RLS20048336 |
| 物件の詳細 | 6 寝室, 9 バスルーム, 3 ハーフバス, 内装: 13000 ft2, 1208m2 (DOM): 50 days |
| 建築年 | 1899 |
| 税金(年間) | $288,192 |
| 地下鉄 | 5 分: 6 |
| 9 分: Q, F | |
![]() |
ルイスター邸へようこそ
1808年にロバート・レノックスによって初めて取得された土地に、かつてのルイスター邸が立っています。35年ぶりに市場に出されました。後期金ぴか時代の建築に触発され、1899年に著名なデザイナー、ジョン・ダンカンによって完成されました。手彫りの石灰岩で耐久性の美しさを追求し、2階建ての高い銅のマンセードで頂かれたこの7階建て、13,000平方フィートの邸宅は、ネオフレンチクラシック様式の優雅さを体現しています。
25フィートの広さを誇るこの邸宅は、71丁目の多くの壮大な家々の中でその存在感を発揮し、マディソン街とフィフス街の間に立ち、セントラルパークやマンハッタンのアイコニックなミュージアムマイルの真向かいに位置しています。
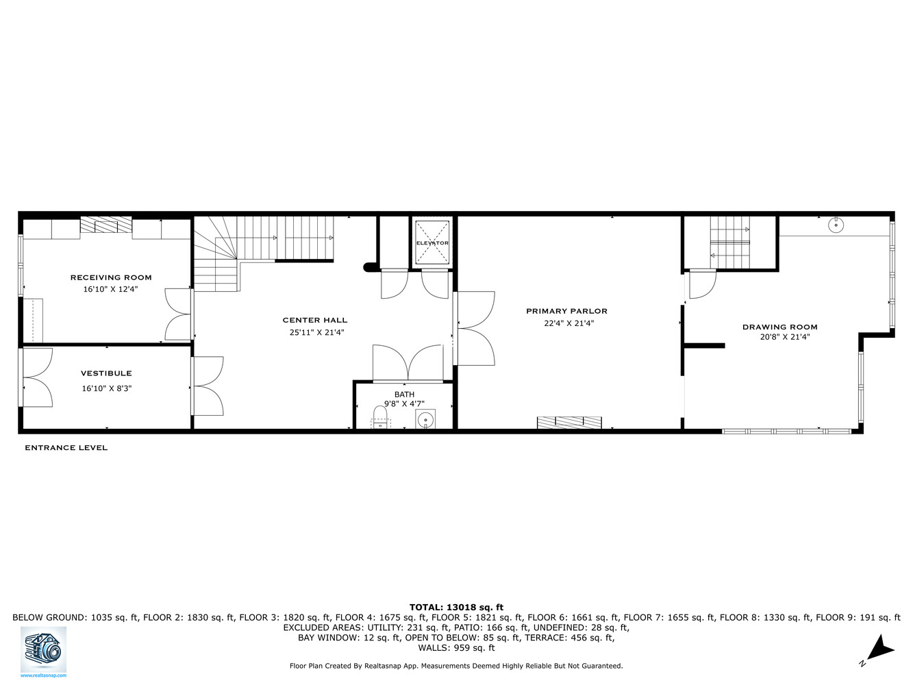
エントランスホールフロア
カララ大理石のベスティビュールが、15フィートの天井を持つセンターホールへとつながります。500平方フィートの主パーラーには、インレイされたマホガニーの床、クラウンモールディング、11の暖炉のうちの1つがあります。レセプションルームのフレンチドアは71丁目に開いています。元のマホガニーとブロンズのエレベーターは、ほぼ全ての階と接続しています。ダイニングルームは、20フィートのバル vaulted 天井、元のヘリンボーンパーケットフロア、豊かな自然光が特徴的な劇的な2階建ての部屋です。控えめなサービスキッチンは、カジュアルな食事、コーヒー、カクテルを楽しむための便利さを提供し、フルキッチンの再設計に柔軟性を持たせています。
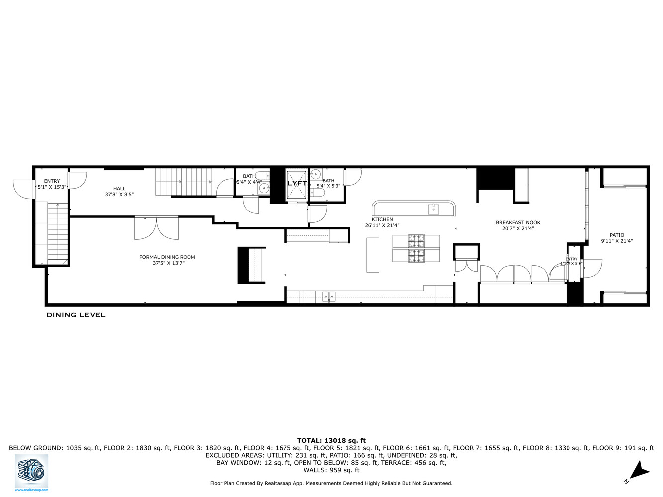
ダイニングレベル
一階下には、快適に30人が座れるフォーマルなダイニングルームがあります。隣接するキッチンは、スイスの職人アンドレ・リアルデによってリセー校からの転用時に設計され、テラコッタタイル、ワainsコーティング、先鋭グラス、そして30フィートを超えるキャビネットとカウンタースペースを備えています。ロティサリーオーブンと追加の冷蔵庫が付いた両面レストラングレードのストーブがあり、家族の食事にも大規模なエンターテイメントにも適したキッチンとなっています。
パーラー レベル
かつて「美しいマントルピースを持つパーラーのスイート」として宣伝されたこの階には、大きなパーラーが2つあり、大理石の暖炉とマホガニーフロアが特徴です。広いホールがスペースをつなぎ、効率的なキッチンがよりカジュアルなエンターテイメントをサポートします。パーラーレベルにアクセスするため、カララ大理石の階段がマホガニーバンisterで上がり、踏み台には安全性と美しさを提供する鍛鉄のバーで強化されています—家全体に施された職人技を反映する建築的なディテールです。
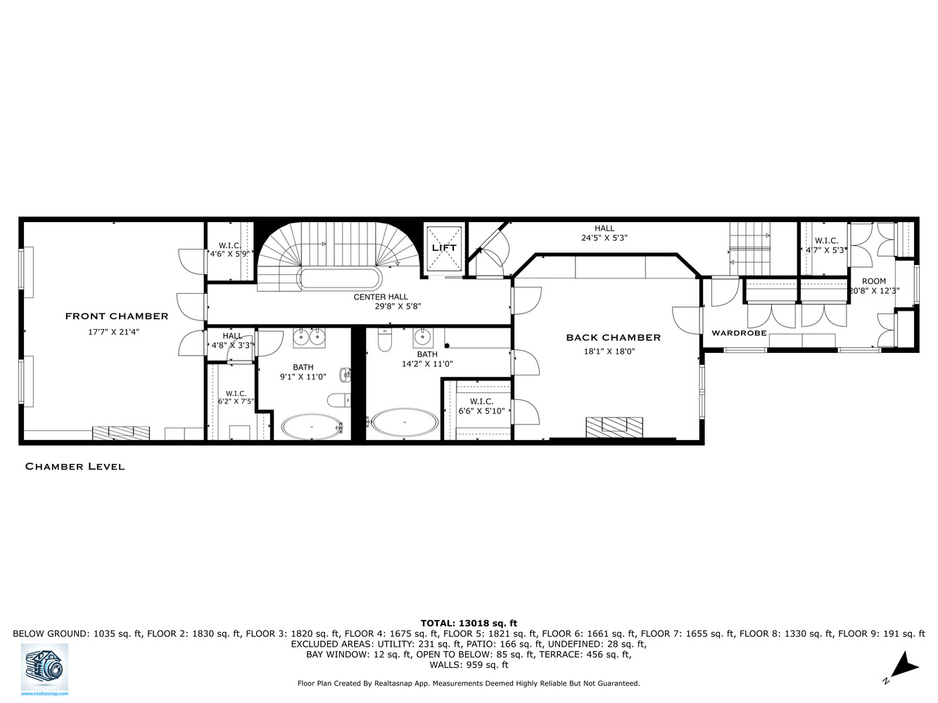
チャンバー レベル
主寝室には、パネル式のマホガニードアが付いたヒノキのクローゼットと広々とした収納があります。2つのフルバスルームがこの階を完成させています:1つはロッソ・レヴァント大理石、浸漬用バスタブ、ダブルシンクを備え、もう1つは独自の浸漬用バスタブ、ダブルバニティ、およびガラスで囲まれた多方向シャワーヘッドを持っています。南西に向けたボールトの天窓ホールが、フロア全体を明るくします。
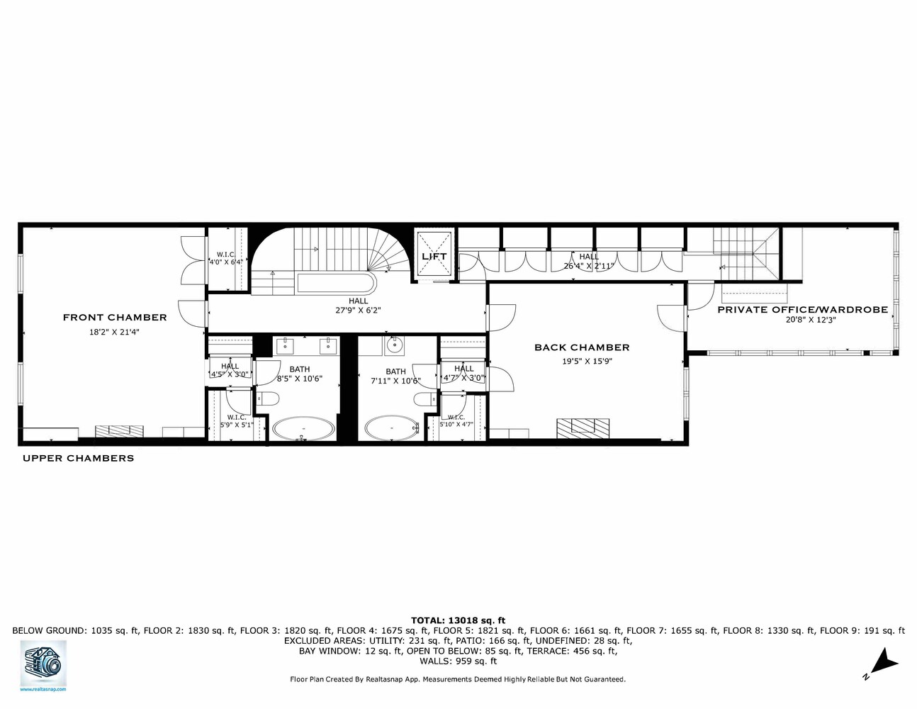
上層チャンバー レベル
追加のリビングスイート、ヒノキ収納、大きなバスルームに加え、ドレッシングルームとオフィスのオプションがあります。大きなスカイビュウの窓が空間に光を注ぎ、豪華に詳細な下層フロアよりもオープンで風通しの良い雰囲気を提供します。
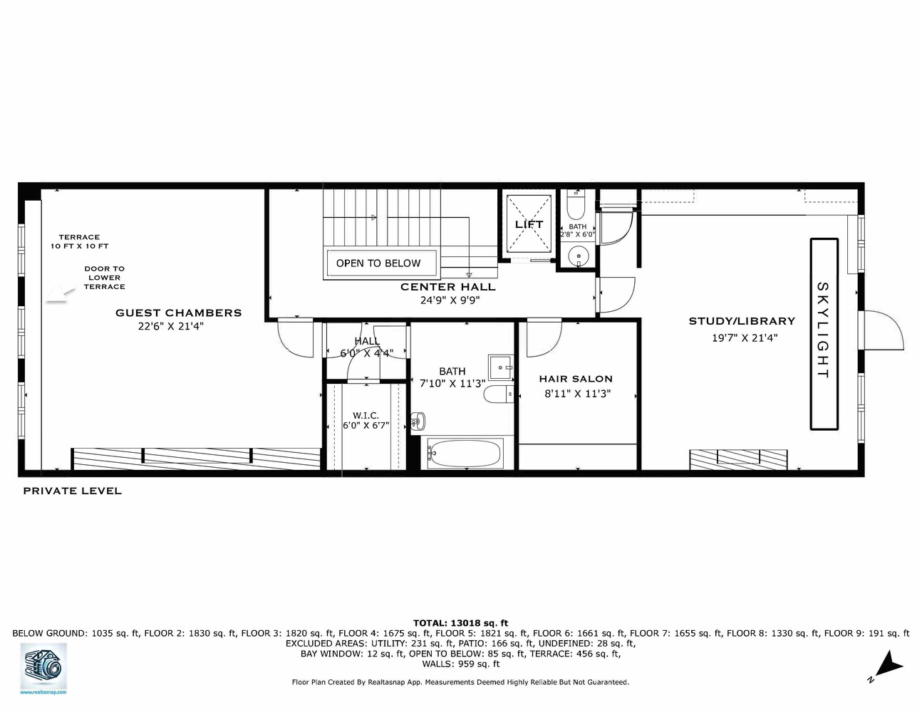
プライベート レベル
邸宅の最上部には、スタディとゲストルーム/オフィスがあり、幅広のパインの床と2つの暖炉があります。天窓とゲストルームからのプライベートテラスが、親密で静かなリトリートを提供し、6つのフロアの華麗な特徴とは明らかに異なる完璧な空間です。
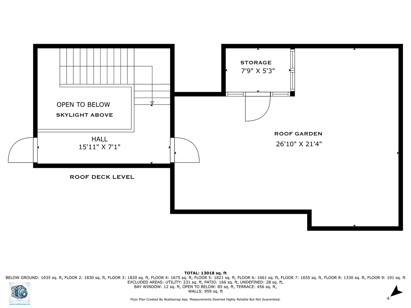
屋上庭園レベル
邸宅の頂部には、500平方フィートのプライベートテラスがあり、日光浴やガーデニング、静かな集まりに最適な貴重な屋外スペースを提供します。収納室には季節のアイテムやガーデニングツールが収められ、この最上階のリトリートに実用性を加えています。
Welcome to the Luyster Mansion
On land first acquired by Robert Lenox in 1808 - stands the former Luyster Mansion; now offered for the first time in 35 Years. Inspired by late Gilded Age architecture and completed in 1899 by the celebrated designer John Duncan. Built for durable beauty in hand-carved limestone and crowned with soaring two-story copper mansards, the 7-Floor, 13,000-square-foot residence embodies the elegance of the neo-French Classic style.
The 25FT wide mansion easily holds its place among the many grand homes of 71st Street - straddling Madison and Fifth Avenue, directly across from Central Park and Manhattan's iconic Museum Mile.
Entrance Hall Floor
A Carrara marble vestibule leads into a center hall with 15-foot ceilings. The 500-square-foot primary parlor features inlaid mahogany floors, crown moldings, and the first of eleven fireplaces. French doors in the reception room open to 71st Street. The original mahogany-and-bronze elevator connects nearly every level of the house. The Drawing Rooma dramatic double-height room offers 20-foot vaulted ceilings, original herringbone parquet floors, and abundant natural light. A discreet service kitchen provides convenience for casual dining, coffee, or cocktails, with flexibility for a full kitchen redesign.
The Dining Level
One Floor below is the home's formal dining room able to comfortably seat thirty. The adjoining kitchen, designed by Swiss craftsman André Liardet during the home's conversion from the Lycée School, features terra cotta tile, wainscoting, beveled glass, and more than 30 feet of cabinetry and counter space. A double-sided restaurant-grade stove with rotisserie oven and additional refrigeration makes this a kitchen equally suited for family meals or large-scale entertaining.
Parlor Level
Once advertised as a "suite of parlors with handsome mantelpieces," this floor includes two large parlors with marble fireplaces and mahogany floors. A wide hall links the spaces, and an efficiency kitchen supports less formal entertaining. Accessing the Parlor Level, Carrara marble stairs rise with mahogany bannisters, reinforced at the landings with wrought iron bars that provide both safety and beauty-an architectural detail that reflects the craftsmanship carried throughout the home.
Chamber Level
The primary suite includes a cedar-lined wardrobe with paneled mahogany doors and generous storage. Two full bathrooms complete the level: one with Rosso Levanto marble, soaking tub, and double sink; the other with its own soaking tub, double vanity, and glass-enclosed multi-directional shower heads. A vaulted skylight hall facing southwest brightens the entire floor.
The Upper Chambers Levels
Additional living suites, cedar storage, and grand bathrooms are complemented by a dressing room and office option. Large sky-view windows fill the space with light, offering a more open, airy feel than even the huge richly detailed lower levels.
The Private Level
At the top of the residence, the Private Level includes a study and guest room/office with wide-plank pine floors and two fireplaces. Skylights and a private terrace off the guest room make this an intimate and tranquil retreat, as perfect as it is distinct from the ornate character of the six floors below.
The Roof Garden Level
Crowning the mansion, a 500-square-foot private terrace provides rare outdoor space, perfect for sunbathing, gardening, or quiet gatherings. A storage room accommodates seasonal items and gardening tools, adding practicality to this top-floor retreat.
This information is not verified for authenticity or accuracy and is not guaranteed and may not reflect all real estate activity in the market. ©2025 The Real Estate Board of New York, Inc., All rights reserved.







