| ID # | RLS11033329 |
| 物件の詳細 | 2 寝室, 2 バスルーム, 食器洗い機, 内装: 1067 ft2, 99m2 (DOM): 271 days |
| 建築年 | 2003 |
| 管理費 | $1,162 |
| 税金(年間) | $240 |
| 地下鉄 | 4 分: 2, 3 |
| 6 分: 6 | |
| 10 分: B, C | |
![]() |
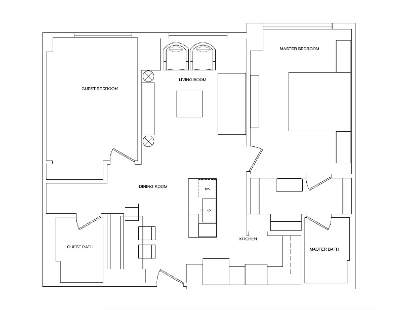
家にようこそ!これは、フィフス・アベニューに位置するフルサービスのビル内にある、壮観な完全改装済みのスプリット2ベッド2バスの物件です。アパート全体は完全に改装され、クォーツのカウンタートップ、ステンレス製のアプライアンス、たくさんのキャビネット、料理をするための広々としたカウンタースペースを備えたオープンキッチンが含まれています。8人が座れるテーブルが楽に置ける別のダイニングエリアもあります。2つの広々としたベッドルームは、どちらもキングサイズのベッドを置くことができます。主寝室には、靴、セーター、ドレス、スーツ、ネクタイをすべて収納できるようカスタマイズされたウォークインクローゼットがあります。リビングルームには埋め込み式の壁スピーカーがあります。アパート全体には、GoogleまたはAlexaに対応したスマートライトスイッチ、各部屋にカスタムブラインド(リビングルームはモーター式)、セントラルエアコンおよび暖房にはNestサーモスタットが制御し、リセス照明、天井ファン、すべての照明器具が購入者に提供されます。
このアパートには、購入時に世帯あたりの所得制限が40万5000ドルとなっています。
1400 フィフス・アベニューは、NYCの最初のグリーンビルの一つです。ビルのアメニティには、常駐のドアマン、各フロアにあるランドリー、常駐のスーパーバイザー、プレイルーム、図書館/コミュニティルーム、有料のストレージ、自転車室、各フロアのキーカードランドリー、美しい屋外庭園が含まれます。屋外駐車場は、時折プライベートオーナーからレンタル可能です。
コロンビア大学、マウントサイナイ、ハーレムタバーン、ブリンクフィットネス、素晴らしいレストラン、ホールフーズ、CVS、ウォルgreensの近くに便利に位置しています。セントラルパークとマーカス・ガーヴィー公園の両方に近くなっています。交通手段には、B、C、2、3、6号線の電車、M116、M102、M1のバスが角にあり、シティバイクも利用できます。このコンドミニアムは、125丁目駅からメトロノースまで数ブロックの距離にもあります。
このビルは2031年まで421-A税控除を受けています。なお、3%のフリップ税は購入者が負担します。1400フィフス・アベニューはペット可のビルです。
Welcome home to this spectacular fully renovated split 2 bed and 2 bath located in a full-service building on Fifth Avenue. The entire apt was fully gutted and now includes an open kitchen with Quartz countertops, stainless steel appliances lots of cabinets, and plenty of counter space for the cook. There is a separate dining area that can easily fit a table of 8. Two oversized bedrooms, both can fit King beds. The primary bedroom has a walk-in closet that has been customized to fit all your shoes, sweaters, dresses, suits, and ties. The living room has built-in wall speakers. The entire apartment includes smart light switches compatible with Google or Alexa, Custom blinds in every room (motorized in the living room), central A/C, and heat controlled by a Nest thermostat along with recess lighting, ceiling fans, and all lighting fixtures staying for the buyer.
This apartment has an Income Cap Restriction of $405,000 per household at time of purchase.
1400 5th Avenue was one of the first green buildings in NYC. Building Amenities includes a full-time doorman, laundry on each floor, live-in super, playroom, library/community room, storage for a fee, bike room, keycard laundry on each floor, live-in super, and beautiful outdoor garden. Outdoor parking is available to rent from private owners from time to time.
Conveniently located near Columbia University, Mount Sinai, Harlem Tavern, Blink Fitness, many terrific restaurants, Whole Foods, CVS and Walgreens. You will be close to both Central Park and Marcus Garvey Park. Transportation options include: The B, C, 2, 3, and 6 trains, the M116, M102, and M1 buses on the corner and Citi bike. This Condo is also located a few blocks away from Metro-North at the 125th Street Station.
The building has a 421-A Tax Abatement until 2031. Please note the 3% flip tax is paid by the buyer. 1400 Fifth Avenue is a pet-friendly building.
This information is not verified for authenticity or accuracy and is not guaranteed and may not reflect all real estate activity in the market. ©2025 The Real Estate Board of New York, Inc., All rights reserved.







